Type
Bien immobilierTarif
260 000 €Chambres
2Salles de bain
0Vente Maison/villa 6 pièces
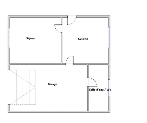
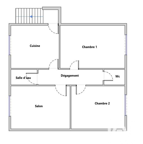
Iad France - Deborah Poquet vous propose : Maison à fort potentiel – Plusieurs scénarios possibles : résidence ou projet locatif Bien rare offrant de nombreuses possibilités d’aménagement, aussi bien pour une maison familiale sur plusieurs niveaux que pour un projet d’investissement locatif. La maison se compose actuellement de deux niveaux totalement indépendants, sans communication intérieure. l'étage est accessible par escaliers extérieurs. Chaque niveau développe une surface d’environ 46 à 48 m², permettant d’envisager deux logements distincts dans l’existant. La dalle béton existante permet la création d’un niveau supplémentaire dans les combles, avec environ 45 m² au sol, soit 30 m² habitables minimum, ouvrant la possibilité de porter le projet à trois logements. En fond de parcelle, une dépendance à réhabiliter intégralement offre un potentiel supplémentaire pour créer un 4ème logement ou du stockage. Des travaux de rénovation énergétique, de remise au goût du jour ainsi que de mise aux normes électriques sont à prévoir. Assainissement conforme, un atout non négligeable dans le cadre d’un projet de transformation. Le bien bénéficie d’une situation pratique, avec commerces de proximité et transports accessibles, un vrai plus pour la vie quotidienne comme pour la location. Visite virtuelle disponible pour une première découverte à distance. Un bien à fort potentiel d’évolution, idéal pour investisseurs, marchands de biens ou projet familial avec valorisation. Honoraires d'agence à la charge du vendeur. Information d'affichage énergétique sur ce bien : classe ENERGIE G indice 420 et classe CLIMAT G indice 132. Les informations sur les risques auxquels ce bien est exposé, y compris l'obligation légale de débroussaillement, sont disponibles sur le site Géorisques : http://www.georisques.gouv.fr. La présente annonce immobilière a été rédigée sous la responsabilité éditoriale de Mme Deborah Poquet mandataire indépendant en immobilier (sans détention de fonds), agent commercial de la SAS I@D France immatriculé au RSAC de EVRY sous le numéro 841420557, titulaire de la carte de démarchage immobilier pour le compte de la société I@D France SAS.
Ce mois
Cette annonce est récente
À proximité
Recherche des commodités à proximité...
Détails de l'annonce
Localisation
Ville
Morsang-sur-Orge
Pays
FR
Diagnostics / Énergie
Diagnostic DPE
420
Diagnostic GES
132
Surfaces / Pièces / Composition
Nombre d’étages
2
Chauffage et diagnostics
Diagnostic de performance énergétique (DPE)
a
b
c
d
e
f
g
Indice d'émission de gaz à effet de serre (GES)
a
b
c
d
e
f
g
