Vente Appartement 4 pièces
Type
Bien immobilierTarif
310 000 €Chambres
3Salles de bain
0Vente Appartement 4 pièces
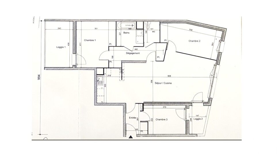
Iad France - Jonathan Khalfa vous propose : Appartement 4 pièces - 3 chambres - une terrasse et un balcon - résidence récente. Dans un secteur familial, réputé pour ses écoles, découvrez ce spacieux appartement de 92 m² Carrez / 105 m² au sol, au premier étage avec ascenseur. Sur cour intérieure, cet appartement traversant offre un cadre de vie calme et sécurisé. Il se compose d’un espace séjour - salle à manger, avec balcon ensoleillé, d’une cuisine ouverte, entièrement équipée, et de trois chambres avec double exposition Sud-Est / Nord-Ouest, dont une avec une terrasse. Vous apprécierez également la grande salle de bain, le WC indépendant, ainsi que les nombreux rangements. Pas de travaux à prévoir. Local à vélo. Place de parking PMR en sus du prix. Les atouts : traversant double exposition, double vitrage, 1 terrasse et 1 balcon, radiateurs connectés, système d’alarme, excellent DPE. Les charges à 288€ par mois incluent l'eau, le chauffage collectif, et tout le reste des charges de copropriété. Un bien idéal pour une vie de famille sereine et confortable ! À visiter sans tarder ! Les trois premières photos sont une proposition de home staging. La presente annonce immobiliere vise 2 lots situés dans une copropriété de 106 lots au total et ne faisant l'objet d'aucune procédure en cours citée à l'article L. 721-1 du code de la construction et de l'habitation. Montant moyen mensuel de charges déclaré par le vendeur : 288.33€ par mois (soit 3460 € annuel). Honoraires d'agence à la charge du vendeur. Information d'affichage énergétique sur ce bien : classe ENERGIE C indice 68 et classe CLIMAT C indice 12. Les informations sur les risques auxquels ce bien est exposé, y compris l'obligation légale de débroussaillement, sont disponibles sur le site Géorisques : http://www.georisques.gouv.fr. La présente annonce immobilière a été rédigée sous la responsabilité éditoriale de M Jonathan Khalfa mandataire indépendant en immobilier (sans détention de fonds), agent commercial de la SAS I@D France immatriculé au RSAC de Paris sous le numéro 909893380, titulaire de la carte de démarchage immobilier pour le compte de la société I@D France SAS.
Détails de l'annonce
Localisation
Ville
Aubervilliers
Pays
FR
Diagnostics / Énergie
Diagnostic DPE
68
Diagnostic GES
12
Surfaces / Pièces / Composition
Nombre d’étages
3
Chauffage et diagnostics
Diagnostic de performance énergétique (DPE)
a
b
c
d
e
f
g
Indice d'émission de gaz à effet de serre (GES)
a
b
c
d
e
f
g
