Vente Maison traditionnelle 6 pièces
Type
Bien immobilierTarif
276 000 €Chambres
4Salles de bain
0Vente Maison traditionnelle 6 pièces
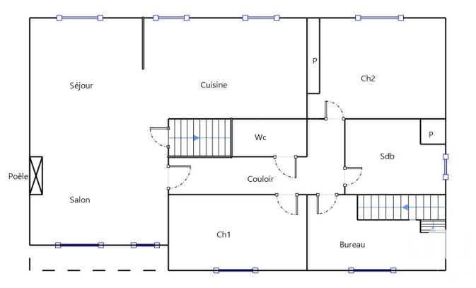
Iad France - Mathilde Griaud vous propose : À vendre : maison familiale au calme avec grand jardin – Saint-Herblon, proche Ancenis Idéalement située à moins de 10 minutes d’Ancenis, cette charmante maison traditionnelle de 117 m² habitables (124 m² au sol) bénéficie d’un environnement calme et verdoyant. Installée sur un terrain clos et arboré de plus de 2 200 m², elle allie confort et tranquillité, tout en restant proche des commodités. Les atouts de cette maison : Rez-de-chaussée lumineux et fonctionnel : Une pièce de vie spacieuse et baignée de lumière, avec une cuisine aménagée et équipée, ouvrant sur une terrasse exposée plein sud, dotée d’un store banne. Un bureau rénové, parfait pour le télétravail ou une activité professionnelle. Deux chambres confortables. Une salle de bain et des WC séparés. À l’étage : Deux grandes chambres supplémentaires. Une salle d’eau avec WC, pratique pour toute la famille. Sous-sol complet : Garage, cave, et buanderie, offrant de nombreux espaces de rangement. Confort et modernité : Équipée de panneaux aérovoltaïques pour des performances énergétiques optimales. Ouvertures et volets récents. Façade extérieure impeccable, électricité refaite récemment. Chauffage au poêle à bois pour un intérieur chaleureux. Une maison idéale pour une vie de famille ou pour les amoureux des grands espaces verts. N’attendez plus pour découvrir cette belle opportunité. Contactez-moi dès aujourd’hui pour plus d’informations ou pour organiser une visite. Honoraires d'agence à la charge du vendeur. Information d'affichage énergétique sur ce bien : classe ENERGIE D indice 197 et classe CLIMAT B indice 6. Les informations sur les risques auxquels ce bien est exposé, y compris l'obligation légale de débroussaillement, sont disponibles sur le site Géorisques : http://www.georisques.gouv.fr. La présente annonce immobilière a été rédigée sous la responsabilité éditoriale de Mme Mathilde Griaud mandataire indépendant en immobilier (sans détention de fonds), agent commercial de la SAS I@D France immatriculé au RSAC de Nantes sous le numéro 948644471, titulaire de la carte de démarchage immobilier pour le compte de la société I@D France SAS.
Détails de l'annonce
Localisation
Ville
Vair-sur-Loire
Pays
FR
Diagnostics / Énergie
Diagnostic DPE
197
Diagnostic GES
6
Surfaces / Pièces / Composition
Nombre d’étages
3
Chauffage et diagnostics
Diagnostic de performance énergétique (DPE)
a
b
c
d
e
f
g
Indice d'émission de gaz à effet de serre (GES)
a
b
c
d
e
f
g
