Vente Appartement 3 pièces
Type
Bien immobilierTarif
385 000 €Chambres
0Salles de bain
0Vente Appartement 3 pièces
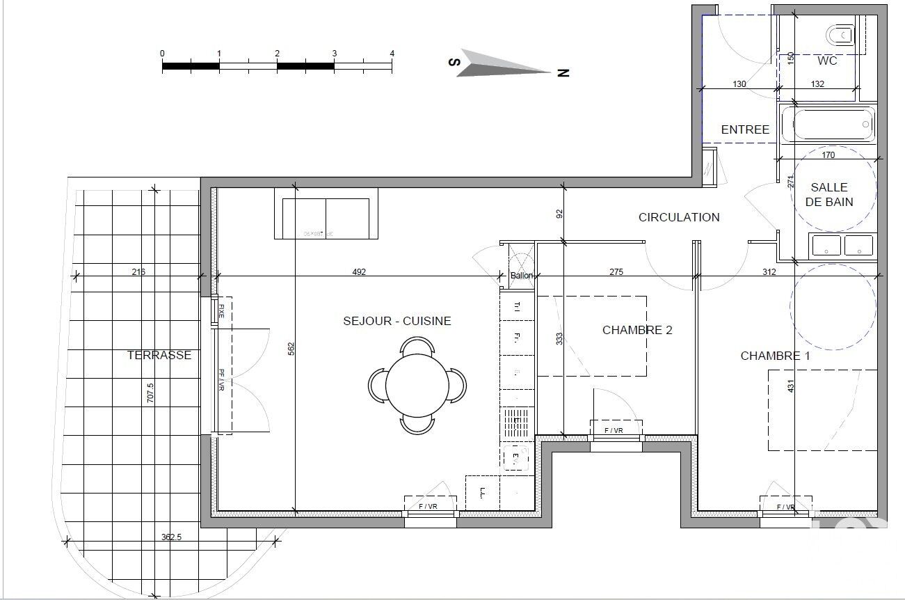
Iad France - Jamey Costantini Gregory (07 83 56 39 14) vous propose : Appartement T3 à Cagnes-sur-Mer – Coeur d'Azur Découvrez ce magnifique appartement de type T3 situé au cOEur d'une résidence moderne et sécurisée à Cagnes-sur-Mer. Idéalement situé à l'adresse Coeur d'Azur, Avenue Maurice Donat, cet appartement au deuxième étage, numéroté A207, offre un cadre de vie exceptionnel avec des prestations de qualité. Caractéristiques principales : Séjour-Cuisine : Un espace lumineux et spacieux de 31,01 m² environ, idéal pour vos moments en famille ou entre amis. Entrée : Une entrée accueillante de 2,88 m² environ. Circulation : Un couloir pratique avec placard intégré de 4,89 m² environ. Chambre 1 : Une première chambre confortable de13,91 m² environ. Chambre 2 : Une deuxième chambre de 9,16 m² environ, parfaite pour un enfant ou un bureau. Salle de bains : Une salle de bains moderne de 4,61 m² environ. WC : Des toilettes séparées de 1,98 m² environ. Terrasse : Une grande terrasse de 16,64 m² environ pour profiter des belles journées ensoleillées et des vues dégagées. Superficie : Surface habitable totale : 68,44 m² environ Surface de la terrasse : 16,64 m² environ Équipements inclus : Fenêtres et portes-fenêtres avec vo roulants (VR). Ballon thermodynamique pour une gestion efficace de l'eau chaude. Espaces prévus pour lave-linge (L. L) et lave-vaisselle (L. V). Plaque de cuisson (C.), réfrigérateur (Fr.), évier (Ev.) et placards (Pl.) intégrés. Cet appartement est une véritable perle rare, offrant des espaces bien agencés et des équipements modernes. Ne manquez pas cette opportunité unique de vivre dans un cadre privilégié, proche de toutes les commodités et des transports en commun. Pour plus d'informations ou pour organiser une visite, veuillez contacter notre équipe dès maintenant. Honoraires d’agence à la charge du vendeur. Bien non soumis au DPE. Les informations sur les risques auxquels ce bien est exposé sont disponibles sur le site Géorisques : www.georisques.gouv.fr. La présente annonce immobilière a été rédigée sous la responsabilité éditoriale de M. Jamey Costantini Gregory EI (ID 78092), mandataire indépendant en immobilier (sans détention de fonds), agent commercial de la SAS I@D France immatriculé au RSAC de ANTIBES sous le numéro 883222135, titulaire de la carte de démarchage immobilier pour le compte de la société I@D France SAS. Retrouvez tous nos biens sur notre site internet. www.iadfrance.fr.
Détails de l'annonce
Localisation
Ville
Cagnes-sur-Mer
Pays
FR
Surfaces / Pièces / Composition
Nombre d’étages
Chauffage et diagnostics
Diagnostic de performance énergétique (DPE)
a
b
c
d
e
f
g
Indice d'émission de gaz à effet de serre (GES)
a
b
c
d
e
f
g
