Trouver...

Language: FR

Devise: EUR

Type
Bien immobilier
Tarif
390 000 €
Chambres
0
Salles de bain
0

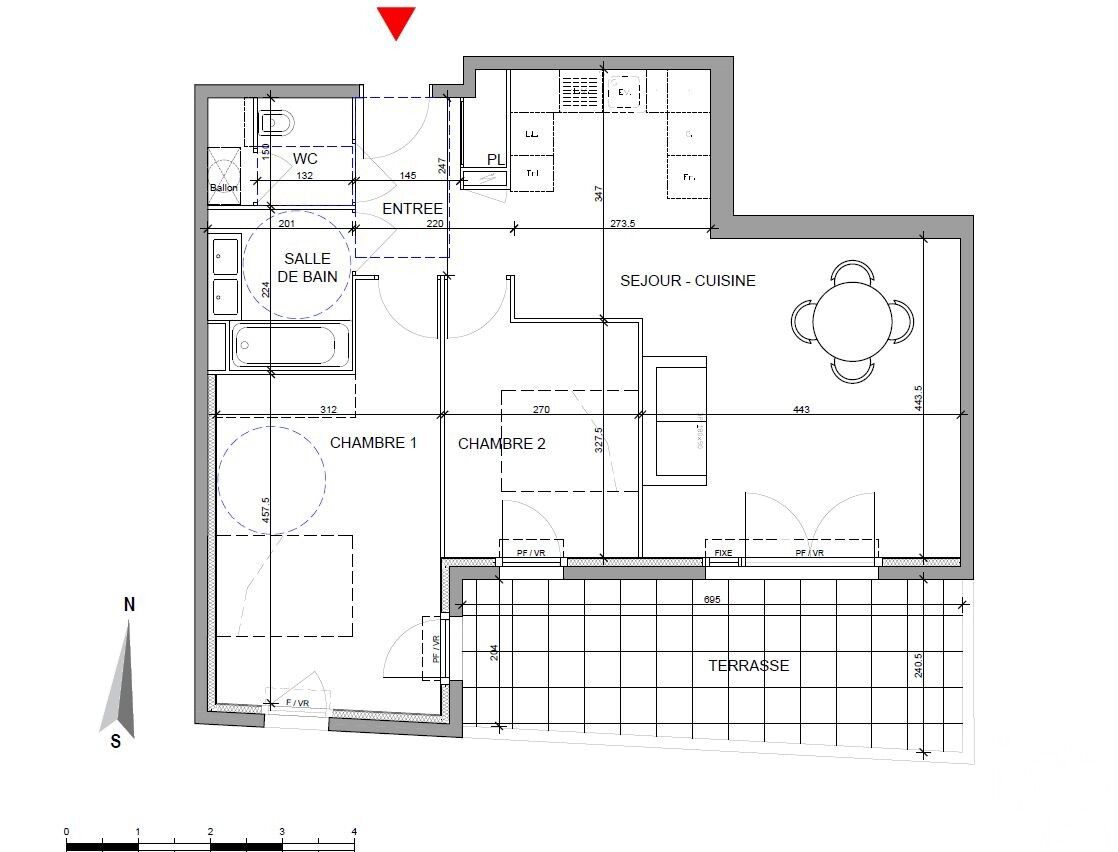
Vente Appartement 3 pièces

Iad France - Jamey Costantini Gregory (07 83 56 39 14) vous propose : Découvrez votre futur espace de vie avec cet appartement bien conçu, offrant un séjour-cuisine spacieux de 28,22 m² environ, une entrée accueillante de 5,36 m² environ, deux chambres confortables mesurant respectivement 16,09 m² environ et 9,39 m² environ, un WC pratique de 1,98 m² environ, et une salle de bains optimisée de 4,29 m² environ. Profitez également d'une terrasse ensoleillée de 15,45 m² environ. Veuillez noter que les informations graphiques sont indicatives et peuvent être sujettes à des modifications techniques. Les dimensions et surfaces sont approximatives, susceptibles d'être ajustées en fonction des nécessités de construction. Le mobilier et les appareils électroménagers ne sont pas inclus. Honoraires d’agence à la charge du vendeur. Bien non soumis au DPE. Les informations sur les risques auxquels ce bien est exposé sont disponibles sur le site Géorisques : www.georisques.gouv.fr. La présente annonce immobilière a été rédigée sous la responsabilité éditoriale de M. Jamey Costantini Gregory EI (ID 78092), mandataire indépendant en immobilier (sans détention de fonds), agent commercial de la SAS I@D France immatriculé au RSAC de ANTIBES sous le numéro 883222135, titulaire de la carte de démarchage immobilier pour le compte de la société I@D France SAS. Retrouvez tous nos biens sur notre site internet. www.iadfrance.fr.

Détails de l'annonce

Localisation

Ville
Cagnes-sur-Mer
Pays
FR

Surfaces / Pièces / Composition

Nombre d’étages
Étage
2

Chauffage et diagnostics

Diagnostic de performance énergétique (DPE)
a
b
c
d
e
f
g
Indice d'émission de gaz à effet de serre (GES)
a
b
c
d
e
f
g
Rappelez-moi
Nos partenaires