Maison à rénover proche de Brou – Parfaite pour un investissement locatif ou un projet immobilier - Près de Brou et Illiers-Combray & 1h40 de Paris
Publié le 12 March 2026
Type
Bien immobilierTarif
58 000 €Chambres
4Salles de bain
2Maison à rénover proche de Brou – Parfaite pour un investissement locatif ou un projet immobilier - Près de Brou et Illiers-Combray & 1h40 de Paris
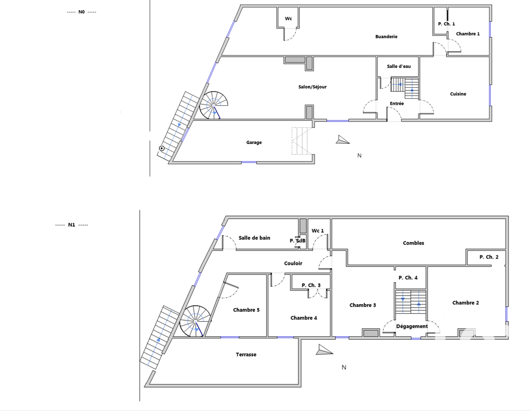
Maison à rénover – 104 m² habitables – Opportunité d'investissement entre Brou et Illiers-Combray
INVESTISSEMENT À SAISIR !
Vous souhaitez valoriser votre patrimoine, réaliser un projet de défiscalisation ou faire un bon placement locatif ? Cette maison à fort potentiel de 104 m², à rénover selon vos envies, est une opportunité rare dans une zone recherchée.
Agencement modulable :
- Rez-de-chaussée : possibilité d'aménager un salon, une cuisine, une chambre, une salle d'eau et une buanderie,
- Étage : 2 à 3 chambres supplémentaires, avec salle d'eau envisageable selon votre projet.
Extérieur et terrain :
- Parcelle de 223 m² avec jardin agréable, idéal pour moments de détente,
- Environnement calme et bien desservi,
- Place de parking incluse.
Travaux déjà réalisés – Bases solides pour vos projets :
- Toiture refaite,
- Raccordement au tout-à-l'égout effectué,
- Menuiseries du rez-de-chaussée.
Pourquoi investir ?
- Rentabilité locative potentielle dans une zone prisée,
- Idéal pour achat-revente, résidence secondaire ou premier projet locatif,
- Parfait pour un profil investisseur ou bricoleur averti.
Localisation stratégique
- À 10 min de Brou (gare SNCF : Paris-Montparnasse en 40 minutes),
- À 10 min d'Illiers-Combray (commerces, écoles, commodités),
- À 40 min de Chartres, centre économique et culturel,
- À 1h40 de Paris.
Cette maison représente une belle opportunité d'investissement, à personnaliser entièrement selon vos objectifs : rendement locatif, projet familial ou achat-revente.
Vous souhaitez organiser une visite ou obtenir des informations complémentaires ?
Je vous invite à me contacter au 06.01.96.06.28 (disponible tous les jours de 9h à 20 - le dimanche sur rendez-vous).
--------------------------------------------------------------------------------------------------------------------------
Vous envisagez de vendre votre bien ?
Je vous propose une estimation gratuite et personnalisée en fonction de votre projet !
Thomas,
Votre conseiller immobilier à vos côtés, du premier contact jusqu'à la signature.
La présente annonce immobilière a été rédigée sous la responsabilité éditoriale de M. Thomas GRÉARD, agent commercial, EI enregistrée au tribunal de commerce de Chartres sous le numéro RSAC 883773087.
Montant estimé des dépenses annuelles d'énergies pour un usage standard : Bien non soumis au DPE (Article R134-1 du CCH).
Les informations sur les risques auxquels ce bien est exposé sont disponibles sur le site Géorisques : https://www.georisques.gouv.fr
Référence agence : 11301
Ce mois
Cette annonce est récente
À proximité
Recherche des commodités à proximité...
Détails de l'annonce
Finances / Mandat / Références
Charges
€
Localisation
Ville
Illiers Combray
Pays
France
Surfaces / Pièces / Composition
Surface habitable
99 m²
Nombre de pièces
5
Nombre de chambres
4
Caractéristiques / Équipements
Ascenseur
Digicode
Interphone
Meublé
Chauffage et diagnostics
Diagnostic de performance énergétique (DPE)
a
b
c
d
e
f
g
Indice d'émission de gaz à effet de serre (GES)
a
b
c
d
e
f
g
