Vente Appartement 3 pièces
Type
Bien immobilierTarif
578 000 €Chambres
2Salles de bain
0Vente Appartement 3 pièces
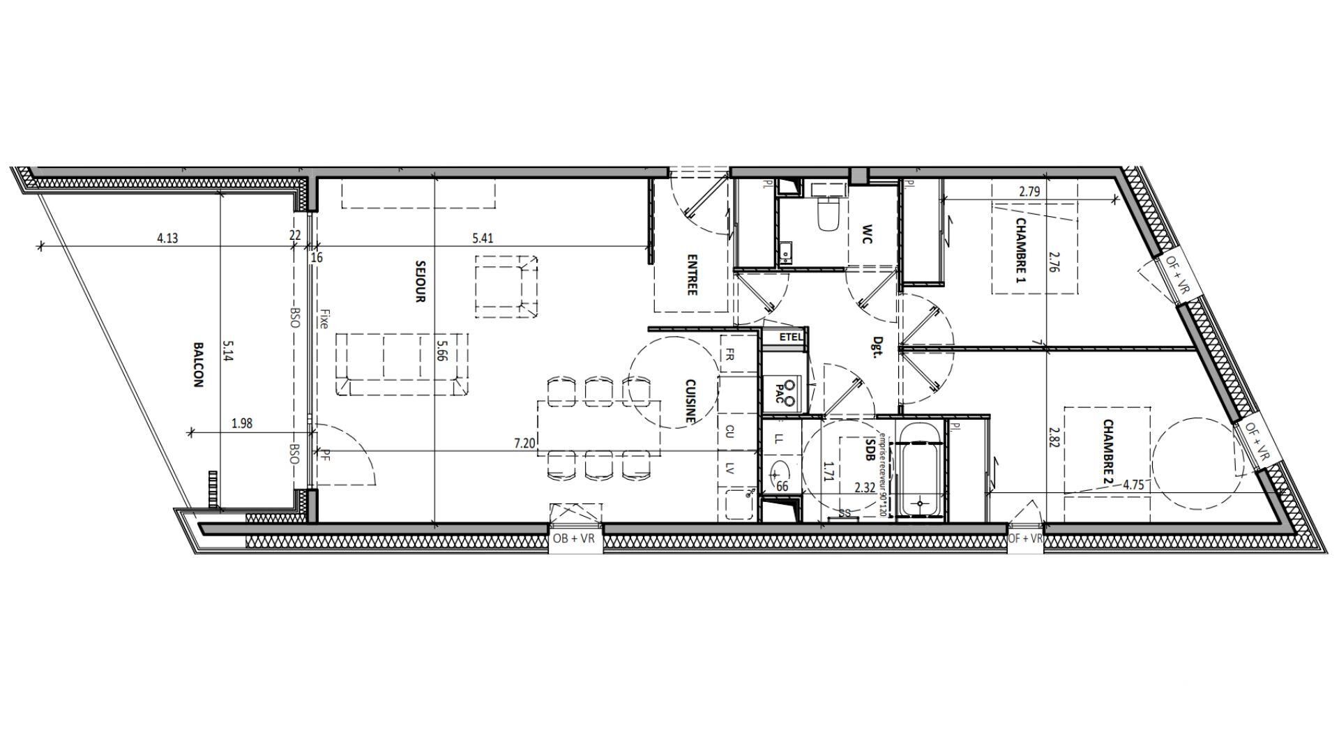
Iad France - Sarah Rozière (06 99 86 19 42) vous propose : Appartement T3 avec balcon à Aix-les-Bains. Située dans un environnement privilégié, au cOEur d’un secteur naturel et dynamique des Bords du Lac, la résidence contemporaine Rives d’Aix conjugue élégance architecturale et confort de vie. À proximité immédiate de l’esplanade du lac du Bourget, des commerces, des transports et des espaces verts, cette adresse offre un cadre paisible et recherché. Livraison 2028. Un appartement raffiné : Situé au 3 ème étage, cet appartement T3 de 78 m² environ habitables se prolonge par un balcon de 15 m² environ. - Séjour / cuisine de 36 m² environ. - Deux chambres confortables. - Salle de bains moderne. - Annexes incluses : Garage box et cellier. De belles prestations : - Chauffage par pompe à chaleur individuelle avec plancher chauffant. - Volets roulants électriques, brise-soleil orientables selon orientations, menuiseries aluminium à double vitrage. - Résidence sécurisée avec visiophone, digicode Vigik et ascenseur. - Terrasses avec dalles sur plots, points lumineux et prises étanches, espaces extérieurs paysagers, locaux vélos sécurisés. L’art de vivre à Aix-les-Bains : - À 3 minutes de l’esplanade du lac et des berges aménagées. - À 5 minutes des commerces de proximité et du centre-ville. - Proche des thermes, écoles, transports et accès autoroute A41. N’hésitez pas à me contacter pour plus d’informations ou pour un accompagnement sur mesure. Honoraires d’agence à la charge du vendeur. Bien non soumis au DPE. Les informations sur les risques auxquels ce bien est exposé sont disponibles sur le site Géorisques : www.georisques.gouv.fr. La présente annonce immobilière a été rédigée sous la responsabilité éditoriale de Mlle Sarah Rozière EI (ID 83696), mandataire indépendant en immobilier (sans détention de fonds), agent commercial de la SAS I@D France immatriculé au RSAC de Clermont-Ferrand sous le numéro 978616993, titulaire de la carte de démarchage immobilier pour le compte de la société I@D France SAS. Retrouvez tous nos biens sur notre site internet. www.iadfrance.fr.
Détails de l'annonce
Localisation
Ville
Aix-les-Bains
Pays
FR
Surfaces / Pièces / Composition
Nombre d’étages
6
Étage
3
Chauffage et diagnostics
Diagnostic de performance énergétique (DPE)
a
b
c
d
e
f
g
Indice d'émission de gaz à effet de serre (GES)
a
b
c
d
e
f
g
