Vente Duplex 4 pièces
Type
Bien immobilierTarif
345 000 €Chambres
3Salles de bain
0Vente Duplex 4 pièces
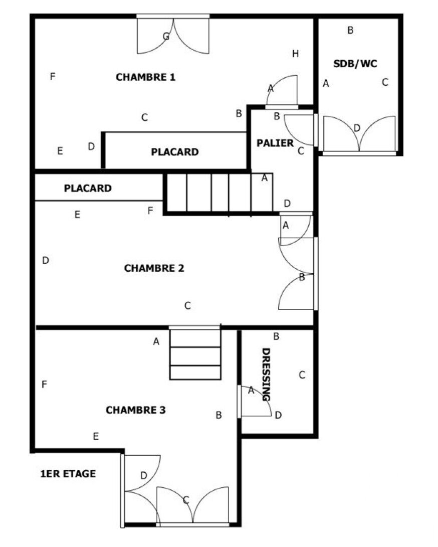
Iad France - Stéphane Chhor vous propose : À vendre – Beau duplex 4 pièces avec terrasse, comme une maison, à Bois-Colombes Découvrez ce charmant duplex situé au sein d’une résidence calme datant de 1948, à seulement 750 mètres de la gare de Bois-Colombes. Avec son entrée totalement indépendante, cet appartement offre une vraie sensation de maison. Il se compose d’un séjour lumineux avec cuisine ouverte, prolongé par une véranda baignée de lumière, entièrement ouverte sur une agréable terrasse privative – idéale pour profiter des beaux jours. À l’étage, un palier dessert une première chambre avec placard, une salle de bains avec WC, ainsi que deux autres chambres en enfilade et un dressing. Exposé ouest, le logement bénéficie d’une belle luminosité naturelle tout au long de la journée, créant une ambiance chaleureuse et conviviale. Information importante : Isolation par l'extérieur et ravalement votés (et payés par l'ancien propriétaire), le DPE cible est C. L’emplacement est idéal : proche des commerces, des écoles et des espaces verts du centre-ville. Un bien rare, fonctionnel et plein de charme, à visiter sans tarder ! Visite possible le dimanche. La presente annonce immobiliere vise 7 lots situés dans une copropriété de 45 lots au total et ne faisant l'objet d'aucune procédure en cours citée à l'article L. 721-1 du code de la construction et de l'habitation. Montant moyen mensuel de charges déclaré par le vendeur : 74.63€ par mois (soit 895.56 € annuel). Honoraires d'agence à la charge du vendeur. Information d'affichage énergétique sur ce bien : classe ENERGIE G indice 530 et classe CLIMAT C indice 17. Les informations sur les risques auxquels ce bien est exposé, y compris l'obligation légale de débroussaillement, sont disponibles sur le site Géorisques : http://www.georisques.gouv.fr. La présente annonce immobilière a été rédigée sous la responsabilité éditoriale de M Stéphane Chhor mandataire indépendant en immobilier (sans détention de fonds), agent commercial de la SAS I@D France immatriculé au RSAC de NANTERRE sous le numéro 478740111, titulaire de la carte de démarchage immobilier pour le compte de la société I@D France SAS.
Détails de l'annonce
Localisation
Ville
Bois-Colombes
Pays
FR
Diagnostics / Énergie
Diagnostic DPE
530
Diagnostic GES
17
Surfaces / Pièces / Composition
Nombre d’étages
2
Chauffage et diagnostics
Diagnostic de performance énergétique (DPE)
a
b
c
d
e
f
g
Indice d'émission de gaz à effet de serre (GES)
a
b
c
d
e
f
g
