Vente Maison traditionnelle 8 pièces
Type
Bien immobilierTarif
399 000 €Chambres
4Salles de bain
0Vente Maison traditionnelle 8 pièces
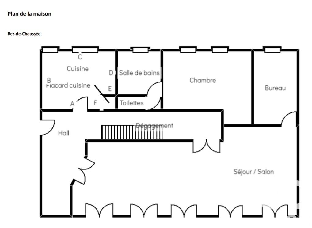
Iad France - Daniel Marques vous propose : Nichée en toute intimité, au sein d'un secteur et résidence tres prisée, cette demeure de 230 m² habitables, posée sur un beau terrain avec piscine. Cette maison dans un véritable havre de paix offre un cadre de vie idyllique avec des prestations de qualité. Proche des commodités : arrêts de bus, écoles, commerces, centre-ville, nouveau groupe scolaire. En entrant, un hall spacieux avec rangements vous accueille. La cuisine fermée et lumineuse, une vaste chambre parentale de 25 m² avec dressing, une grande salle de bains ainsi qu'un bureau ou 2e chambre se trouvent au rez-de-chaussée. Le double séjour, avec salle à manger, salon et cheminée, s'ouvre sur une grande terrasse. À l'étage, trois chambres avec parquet, une salle d'eau et un WC complètent l’espace nuit. Un grand grenier isolé offre un potentiel de stockage. Le sous-sol total abrite un garage double, un atelier, une salle de jeux / home cinéma, une cave à vins et une buanderie. À l'extérieur, une grande terrasse et un pool-house promettent de beaux moments en famille ou entre amis autour de la piscine couverte par un dôme. Equipements et confort de ce bien : - double vitrage - volets électriques - alarme - digicode - adoucisseur - chaudière gaz à condensation Pas 1 minute à perdre pour planifier une visite pour votre nouveau chez-vous ! Honoraires d'agence à la charge du vendeur. Information d'affichage énergétique sur ce bien : classe ENERGIE D indice 210 et classe CLIMAT D indice 33. Les informations sur les risques auxquels ce bien est exposé, y compris l'obligation légale de débroussaillement, sont disponibles sur le site Géorisques : http://www.georisques.gouv.fr. La présente annonce immobilière a été rédigée sous la responsabilité éditoriale de M Daniel Marques mandataire indépendant en immobilier (sans détention de fonds), agent commercial de la SAS I@D France immatriculé au RSAC de Valenciennes sous le numéro 987710332, titulaire de la carte de démarchage immobilier pour le compte de la société I@D France SAS.
Détails de l'annonce
Localisation
Ville
Marly
Pays
FR
Diagnostics / Énergie
Diagnostic DPE
210
Diagnostic GES
33
Chauffage et diagnostics
Diagnostic de performance énergétique (DPE)
a
b
c
d
e
f
g
Indice d'émission de gaz à effet de serre (GES)
a
b
c
d
e
f
g
