Vente Surface diverse 1 450 m²
Type
Bien immobilierTarif
1 365 000 €Chambres
0Salles de bain
0Vente Surface diverse 1 450 m²
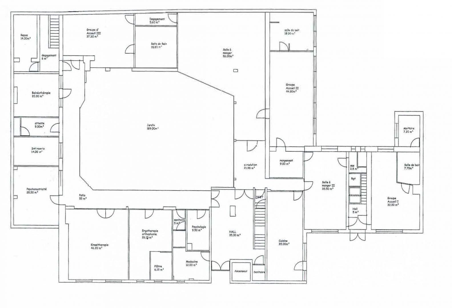
Iad France - Sylvie Dieu (07 81 31 35 43) vous propose : Ensemble immobilier à fort potentiel – 1450 m² environ habitables – Amiens centre À Amiens, à proximité immédiate du centre-ville et à seulement 300 mètres de la gare, découvrez cet ensemble immobilier aux volumes généreux, offrant un fort potentiel de transformation. Implanté sur une parcelle de 1196 m² environ, cet ancien établissement se compose de deux bâtiments attenants, développant une surface totale d’environ 1450 m² environ habitables, répartis sur : Deux niveaux principaux, Un sous-sol partiel, Des combles partiels exploitables. L’ensemble bénéficie d’un espace extérieur comprenant une cour et un jardin, pour une surface d’environ 290 m² environ. Les locaux nécessitent une rénovation complète, offrant ainsi la liberté de repenser entièrement l’aménagement selon les projets envisagés. Situé en zone UBa du PLU d’Amiens, le bien permet une grande variété d’usages : habitat, services, professions libérales, artisanat ou activité hôtelière. Son emplacement stratégique, sa surface et ses possibilités d’exploitation en font une opportunité rare pour : Investisseurs ou marchands de biens, Entreprises du secteur tertiaire ou hôtelier, Artisans à la recherche d’un site de caractère en cOEur de ville. Prix de vente : 1 365 000 € FAI (soit 1 300 000 € hors honoraires, honoraires de 5 % TTC à la charge de l’acquéreur) Dossier complet et visite sur demande. Information d'affichage énergétique sur le bien associé à cette annonce : DPE NS indice 0 et GES NS indice 0. La présente annonce immobilière a été rédigée sous la responsabilité éditoriale de Mme Sylvie Dieu (ID 14570), Agent Commercial mandataire en immobilier immatriculé au Registre Spécial des Agents Commerciaux (RSAC) du Tribunal de Commerce de AMIENS sous le numéro 809 697 246 Retrouvez tous nos biens sur notre site internet. www.iadfrance.fr.
Détails de l'annonce
Localisation
Ville
Amiens
Pays
FR
Surfaces / Pièces / Composition
Nombre d’étages
Chauffage et diagnostics
Diagnostic de performance énergétique (DPE)
a
b
c
d
e
f
g
Indice d'émission de gaz à effet de serre (GES)
a
b
c
d
e
f
g
