Type
Bien immobilierTarif
434 700 €Chambres
2Salles de bain
0Maison
MAISON DE CARACTÈRE AVEC RENOVATION RECENTE ET JARDIN ARBORÉ
efficity, l'agence qui estime votre bien en ligne, vous propose cette belle maison de caractère, située dans un hameau de Sonchamp, à proximité de Rambouillet (10 minutes !!) . Ce bien saura capter votre intérêt grâce à ses grandes pièces de vie, dont l'une est agrémentée d'une élégante verrière. Il bénéficie d'une rénovation récente qui lui confère tout le confort moderne tout en préservant son charme.
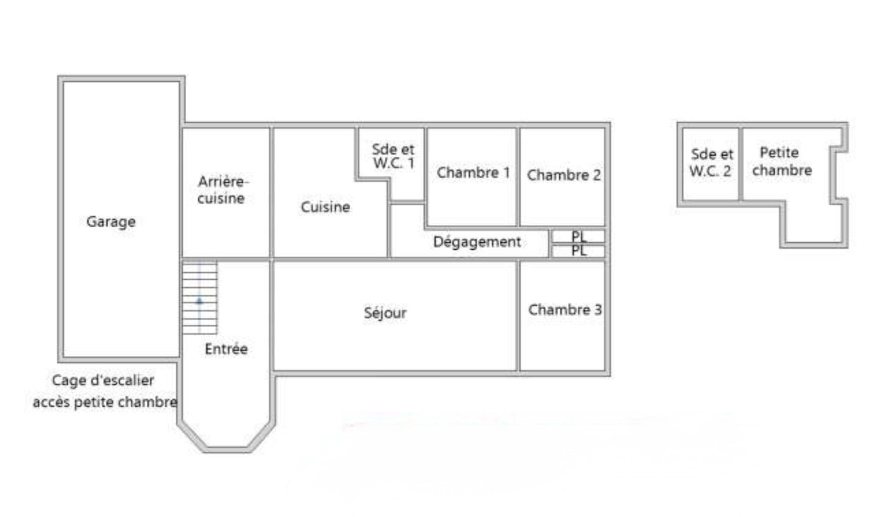
Le rez-de-chaussée se compose d'une entrée accueillante, d'une buanderie pratique, d'une salle d'eau avec toilettes, d'une cuisine équipée avec un espace dînatoire et un petit salon sans oublier un spacieux séjour de 32 m².
À l'étage, vous découvrirez des chambres confortables et une mezzanine aménagée en coin lecture.
La maison bénéficie d'un jardin arboré et de murs d'enceinte en pierres.
Un atout supplémentaire de ce bien est sa dépendance de 26 m², offrant des possibilités d'aménagement supplémentaires selon vos envies.
N'hésitez pas à nos contacter pour plus d'informations ou simplement pour visiter.
Les informations sur les risques auxquels ce bien est exposé sont disponibles sur le site Georisque : georisques. gouv. fr
Géraldine Dehondt - EI - est Agent Commercial mandataire en immobilier, immatriculé au Registre Spécial des Agents Commerciaux du Tribunal de Commerce de Versailles sous le n°878016187.
Siège social du mandant : effiCity, 48 avenue de Villiers - 75017 PARIS - Société par Actions Simplifiée, société au capital de 132 373,05 euros, immatriculée au RCS Paris 497 617 746 et titulaire de la Carte professionnelle CPI 7501 2015 000 002 025 - CCI Paris IDF - Caisse de Garantie : GALIAN Assurances 89 rue de la Boétie 75008 Paris
Détails de l'annonce
Finances / Mandat / Références
Charges
€
Localisation
Ville
Sonchamp
Pays
France
Surfaces / Pièces / Composition
Surface habitable
114 m²
Caractéristiques / Équipements
Ascenseur
Digicode
Interphone
Diagnostics / Énergie
Diagnostic DPE
C
Diagnostic GES
A
Chauffage et diagnostics
Diagnostic de performance énergétique (DPE)
a
b
c
d
e
f
g
Indice d'émission de gaz à effet de serre (GES)
a
b
c
d
e
f
g
