Trouver...

Language: FR

Devise: EUR

Type
Bien immobilier
Tarif
215 087 €
Chambres
2
Salles de bain
0

Vente Appartement 3 pièces

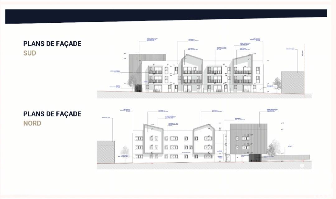
Iad France - Amandine Raguideau (06 46 22 37 05) vous propose : Construction d'une résidence Neuve sur le campus universitaire de proche du CHU de POITIERS avec une livraison prévue pour le 2ème trimestre 2025. Cette résidence avec ascenseur se compose de 29 appartements dont 12 T1,3 T2 et 14 T3 avec un stationnement privatif pour chacun. La résidence est sécurisée par un portail automatique. Description des appartements T3 : Chauffage individuel au sol avec chaudière Gaz, isolation aux dernières normes donc faibles charges d'énergie, huisserie double vitrage isolant, volets roulants électriques, peinture blanche lisse sur les murs, WC suspendu de la marque 'Grohé', cuisine aménagée et équipée (réfrigérateur, four, plaque de cuisson et hotte), placards aménagés, salle d'eau équipée (séche serviette, double vasque avec miroir panoramique). Les logements sont vendus 'clés en mains', à vous de choisir comment meubler le mieux possible, 3 choix de couleur possible concernant le sol. Les avantages de l'achat dans le Neuf : Frais de notaire réduits, éxonératon taxe foncière les premières années, aucun travaux à prévoir pendant de nombreuses années, Bâtiment aux dernières normes énergétiques (DPE en A), Facilité de location : aucune objection possible sur l'état du logement de la part des futurs locataires. Bâtiment sous garantie décennale (10 ans). Contactez-moi pour plus d'information ! Honoraires d’agence à la charge du vendeur. Bien non soumis au DPE. Les informations sur les risques auxquels ce bien est exposé sont disponibles sur le site Géorisques : www.georisques.gouv.fr. La présente annonce immobilière a été rédigée sous la responsabilité éditoriale de Mme Amandine Raguideau EI (ID 85718), mandataire indépendant en immobilier (sans détention de fonds), agent commercial de la SAS I@D France immatriculé au RSAC de POITIERS sous le numéro 841190978, titulaire de la carte de démarchage immobilier pour le compte de la société I@D France SAS. Retrouvez tous nos biens sur notre site internet. www.iadfrance.fr.

Détails de l'annonce

Localisation

Ville
Mignaloux-Beauvoir
Pays
FR

Surfaces / Pièces / Composition

Nombre d’étages
2

Chauffage et diagnostics

Diagnostic de performance énergétique (DPE)
a
b
c
d
e
f
g
Indice d'émission de gaz à effet de serre (GES)
a
b
c
d
e
f
g
Rappelez-moi
Nos partenaires