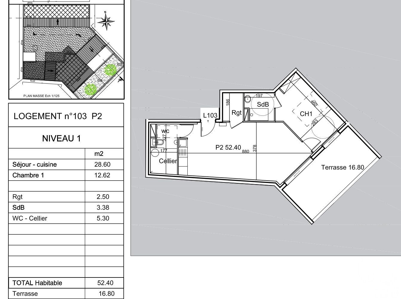
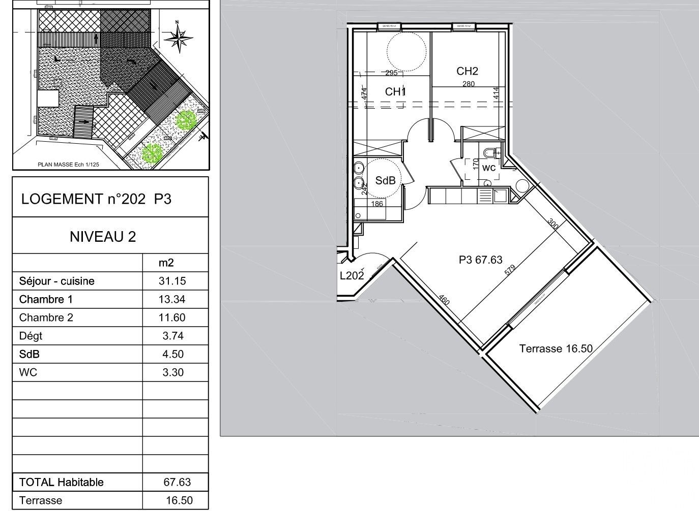
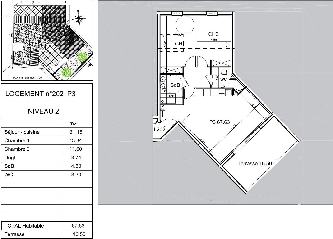
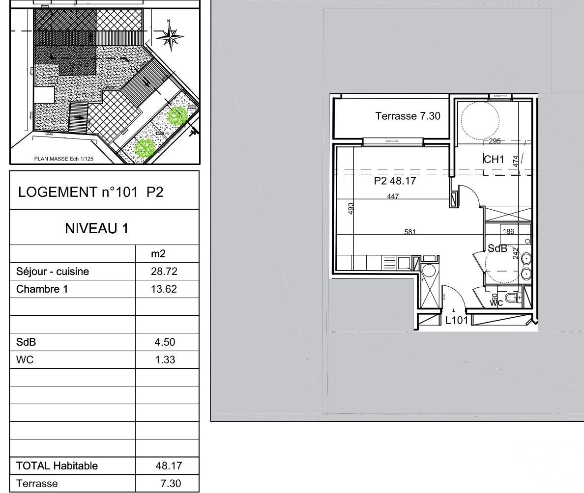
Vente Maison de campagne 6 pièces
Type
Bien immobilierTarif
440 000 €Chambres
4Salles de bain
0Vente Maison de campagne 6 pièces
Iad France - Céline Inaudi vous propose : À vendre à Saignon – Un ancien moulin à chaux du 19e siècle. Transformé en maison de charme de 239 m² environ avec 6 chambres, sur 2226 m² environ de terrain sans vis-à-vis, avec piscine et appartement indépendant. Au cOEur du Luberon, à Saignon, l’un des plus beaux villages perchés de Provence, découvrez cette propriété de caractère de 239 m² environ habitables, chargée d’histoire et de sérénité. Ancien moulin à chaux du XIXe siècle, cette bâtisse en pierre a su conserver son authenticité tout en bénéficiant de prestations modernes. Situation idéale : à seulement quelques minutes d’Apt, avec accès direct à une piste cyclable (ancienne voie ferrée), parfait pour les balades jusqu’au marché provençal du samedi matin. La propriété en détail : -Terrain de 2226 m² environ, arboré et entièrement clôturé, sans vis-à-vis -Piscine 10x5m, au calme absolu, avec vue panoramique sur les collines -Véranda plein sud, idéale pour profiter du soleil toute l’année -Grande pièce de vie de 42 m² environ avec cheminée monumentale -Cuisine indépendante, cellier, buanderie-chaufferie de 28 m² environ Deux espaces de vie indépendants : -4 chambres confortables au rez-de-chaussée + salle de bain avec grand dressing -À l'étage : Chambre / bureau de 11 m² environ (ancienne chambre du meunier) -Appartement indépendant de 45 m² environ : salon, chambre, salle d’eau – idéal pour recevoir ou créer un gîte / location saisonnière Prestations & équipements : -Double vitrage TRYBA -Volets roulants électriques -Porte d’entrée neuve -Chaudière à pellets récente – confort moderne et performance énergétique -Abri de jardin pour rangement et outillage Une maison pleine d’âme, un cadre exceptionnel : Vous rêvez d’un havre de paix en Provence, entouré de nature, chargé d’histoire, et prêt à accueillir vos projets de vie ou d’hospitalité ? Cette maison est bien plus qu’un bien immobilier : c’est un lieu de mémoire et de transmission, prêt à écrire son nouveau chapitre. Contactez-moi dès maintenant pour une visite et laissez-vous séduire par ce bien unique au cOEur du Luberon. Honoraires d'agence à la charge du vendeur. Information d'affichage énergétique sur ce bien : classe ENERGIE D indice 221 et classe CLIMAT B indice 6. Les informations sur les risques auxquels ce bien est exposé, y compris l'obligation légale de débroussaillement, sont disponibles sur le site Géorisques : http://www.georisques.gouv.fr. La présente annonce immobilière a été rédigée sous la responsabilité éditoriale de Mme Céline Inaudi mandataire indépendant en immobilier (sans détention de fonds), agent commercial de la SAS I@D France immatriculé au RSAC de Avignon sous le numéro 532514403, titulaire de la carte de démarchage immobilier pour le compte de la société I@D France SAS.
Détails de l'annonce
Localisation
Ville
Saignon
Pays
FR
Diagnostics / Énergie
Diagnostic DPE
221
Diagnostic GES
6
Chauffage et diagnostics
Diagnostic de performance énergétique (DPE)
a
b
c
d
e
f
g
Indice d'émission de gaz à effet de serre (GES)
a
b
c
d
e
f
g
