Vente Maison/villa 3 pièces
Type
Bien immobilierTarif
270 000 €Chambres
2Salles de bain
0Vente Maison/villa 3 pièces
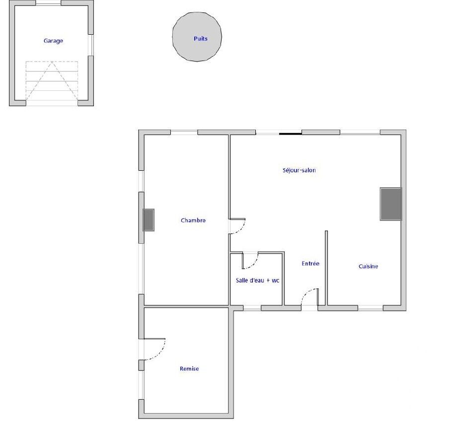
Iad France - Mélanie Mazeret vous propose : LA PLAINE SUR MER - MAISON A RENOVER - CACHET DE LA PIERRE - BEAUX VOLUMES - GARAGE - JARDIN À seulement 2 km du centre-ville et 1 km des plages, découvrez cette maison offrant à la fois authenticité et beau potentiel évolutif. Elle se compose d’une entrée, d’un vaste séjour lumineux avec cheminée, d’une cuisine ouverte aménagée, d’une salle d’eau avec WC, ainsi que d’une grande chambre de plus de 27 m², facilement divisible en deux espaces distincts. À l’extérieur, vous trouverez une dépendance en pierre, un garage, ainsi qu’une terrasse donnant sur un beau terrain constructible de 810 m² exposé plein sud, agrémenté d’un puits. La constructibilité du terrain permet d’envisager une extension selon vos besoins. Côté travaux, le faîtage de la toiture et l’entourage de la cheminée sont à reprendre, la charpente et les tuiles étant en bon état. Quelques améliorations (isolation, électricité, VMC) permettront de mettre davantage en valeur ce bien déjà doté de plusieurs ouvertures en PVC double vitrage. Un bien rare qui combine charme, authenticité et potentiel à proximité immédiate de l’océan. SES ATOUTS : charme de la pierre - potentiel évolutif - belle exposition A DECOUVRIR RAPIDEMENT ! Honoraires d'agence à la charge du vendeur. Information d'affichage énergétique sur ce bien : classe ENERGIE E indice 266 et classe CLIMAT C indice 16. Les informations sur les risques auxquels ce bien est exposé, y compris l'obligation légale de débroussaillement, sont disponibles sur le site Géorisques : http://www.georisques.gouv.fr. La présente annonce immobilière a été rédigée sous la responsabilité éditoriale de Mme Mélanie Mazeret mandataire indépendant en immobilier (sans détention de fonds), agent commercial de la SAS I@D France immatriculé au RSAC de NANTES sous le numéro 949186704, titulaire de la carte de démarchage immobilier pour le compte de la société I@D France SAS.
Détails de l'annonce
Localisation
Ville
La Plaine-sur-Mer
Pays
FR
Diagnostics / Énergie
Diagnostic DPE
266
Diagnostic GES
16
Chauffage et diagnostics
Diagnostic de performance énergétique (DPE)
a
b
c
d
e
f
g
Indice d'émission de gaz à effet de serre (GES)
a
b
c
d
e
f
g
