Maison de Plain-Pied sur 3049 M2 de terrain ideal investisseur
Publié le 25 March 2026
Type
Bien immobilierTarif
199 000 €Chambres
3Salles de bain
1Maison de Plain-Pied sur 3049 M2 de terrain ideal investisseur
A 3 minutes des écoles et de la gare SNCF, 10 minutes du collège, du centre ville de Coutras et de ses commodités, 30 minutes de Libourne et un peu plus d'une heure de Bordeaux.
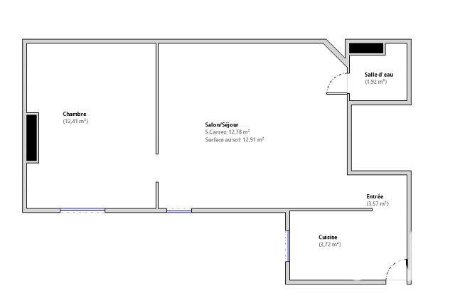
Venez découvrir cette maison de plain-pied de 107 m², particulièrement agréable à vivre, implantée sur un grand terrain entièrement clôturé, avec de multiple possibilités.
En arrivant, vous pénétrez par une belle entrée qui distribue harmonieusement les espaces.
Sur la partie nuit, vous trouverez d'abord deux chambres confortables : une première d'environ 11 m², puis une seconde de plus de 16 m², spacieuse et lumineuse, disposant de son dressing.
Dans le prolongement, la salle de bain offre de beaux volumes et un vrai espace bien-être, avec une baignoire d'angle balnéo, une grande douche, une double vasque, et le cumulus discrètement installé dans un renfoncement prévu à cet effet. Les WC sont séparés.
En avançant, on découvre ensuite le cœur de la maison : un séjour d'environ 27 m², chaleureux, doté d'une cheminée ouverte. Un espace de rangement intégré vient compléter la pièce, tandis que la vue s'ouvre naturellement sur le jardin, apportant une vraie sensation de calme et d'espace.
La cuisine, ouverte sur le séjour, est aménagée et équipée. Spacieuse et fonctionnelle, elle permet de cuisiner tout en restant en lien avec l'espace de vie, idéale pour les moments en famille ou entre amis.
La visite se poursuit avec une suite parentale (actuellement à usage de bureau), composée d'une chambre et d'une salle d'eau faisant également office de buanderie, avec WC. Un espace indépendant, pratique et confortable.
À l'extérieur, le terrain, entièrement clôturé, offre de nombreuses possibilités. Il dispose de trois accès indépendants, ce qui est un véritable atout. Vous profiterez également d'une très grande terrasse, parfaite pour les beaux jours, ainsi que de plusieurs dépendances : un abri en dur, un carport, et un double garage avec portes manuelles.
Côté confort, la maison est équipée de double vitrage partout, d'une pompe à chaleur gainable réversible assurant chauffage et climatisation, d'une isolation récente, de la fibre optique, et d'un assainissement collectif conforme. Les volets roulants sont électriques côté jardin, et battants sur la façade d'entrée.
UN PROJET VIRTUEL A ETE REALISE SUR CERTAINES PHOTOS DES EXTERIEURS ET SUR LA PHOTO DU BUREAU.
Vous pouvez me contacter 7 jours sur 7, je vous en dirai plus sur le terrain Les honoraires sont à la charge du vendeur.
Les informations sur les risques auxquels ce bien est exposé sont disponibles sur le site Géorisques : www. georisques. gouv. fr.
Réseau Immobilier CAPIFRANCE - Votre agent commercial (RSAC N°852 635 648 - Greffe de LIBOURNE) Véronique GÉRARD Entrepreneur Individuel à Responsabilité Limitée 06 87 97 65 81 - Réf.941158
À proximité
Recherche des commodités à proximité...
Détails de l'annonce
Finances / Mandat / Références
Charges
€
Localisation
Ville
Les Eglisottes Et Chalaures
Pays
France
Surfaces / Pièces / Composition
Surface habitable
107 m²
Nombre de pièces
4
Nombre de chambres
3
Caractéristiques / Équipements
Ascenseur
Digicode
Interphone
Piscine
Diagnostics / Énergie
Diagnostic DPE
C
Diagnostic GES
A
Chauffage / Énergie
Type de chauffage
Énergie : climatisation réversible - Mécanisme : Climatisation réversible
Cuisine
Type de cuisine
aménagée
Chauffage et diagnostics
Diagnostic de performance énergétique (DPE)
a
b
c
d
e
f
g
Indice d'émission de gaz à effet de serre (GES)
a
b
c
d
e
f
g
