Vente Appartement 3 pièces
Type
Bien immobilierTarif
383 000 €Chambres
2Salles de bain
0Vente Appartement 3 pièces
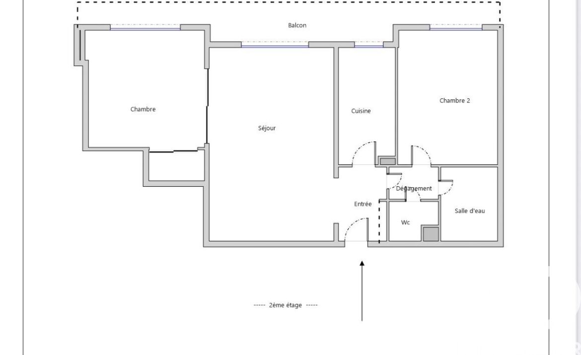
Iad France - Yuan Xue vous propose : Appartement 3 pièces avec balcon, cave et parking – Le Kremlin-Bicêtre (94) – à deux pas de la Porte d’Italie À vendre, charmant appartement 3 pièces de 61 m² situé au 2ᵉ étage avec ascenseur d’une résidence bien entretenue, construite en 1982, récemment rénovée (ascenseur, interphone, parties communes). L’appartement, très calme et lumineux, donne sur la cour intérieure arborée et bénéficie d’une excellente distribution : •Séjour avec accès direct au balcon filant, •Deux chambres également ouvertes sur le balcon, •Cuisine indépendante, •Salle de bains et WC séparés. Un parking en sous-sol et une cave complètent ce bien rare dans le secteur. Localisation idéale : •À seulement 5 minutes à pied du métro 7 Le Kremlin-Bicêtre, •600 m du métro 7 / tram T3 Porte d’Italie, •900 m du métro 14 / 7 Maison Blanche (nouvel accès rapide à Paris). Proche de toutes commodités : supermarchés LIDL, AUCHAN, centre commercial OKABE, restaurants, écoles… DPE : C Charges : 200 € / mois Taxe foncière : 1 719 € / an La presente annonce immobiliere vise 4 lots situés dans une copropriété de 650 lots au total et ne faisant l'objet d'aucune procédure en cours citée à l'article L. 721-1 du code de la construction et de l'habitation. Montant moyen mensuel de charges déclaré par le vendeur : 206.67€ par mois (soit 2480 € annuel). Honoraires d'agence à la charge du vendeur. Information d'affichage énergétique sur ce bien : classe ENERGIE C indice 144 et classe CLIMAT A indice 4. Les informations sur les risques auxquels ce bien est exposé, y compris l'obligation légale de débroussaillement, sont disponibles sur le site Géorisques : http://www.georisques.gouv.fr. La présente annonce immobilière a été rédigée sous la responsabilité éditoriale de Mme Yuan Xue mandataire indépendant en immobilier (sans détention de fonds), agent commercial de la SAS I@D France immatriculé au RSAC de Nanterre sous le numéro 828526004, titulaire de la carte de démarchage immobilier pour le compte de la société I@D France SAS.
Détails de l'annonce
Localisation
Ville
Le Kremlin-Bicêtre
Pays
FR
Diagnostics / Énergie
Diagnostic DPE
144
Diagnostic GES
4
Surfaces / Pièces / Composition
Nombre d’étages
8
Étage
2
Chauffage et diagnostics
Diagnostic de performance énergétique (DPE)
a
b
c
d
e
f
g
Indice d'émission de gaz à effet de serre (GES)
a
b
c
d
e
f
g
