Vente Maison traditionnelle 9 pièces
Type
Bien immobilierTarif
550 000 €Chambres
5Salles de bain
0Vente Maison traditionnelle 9 pièces
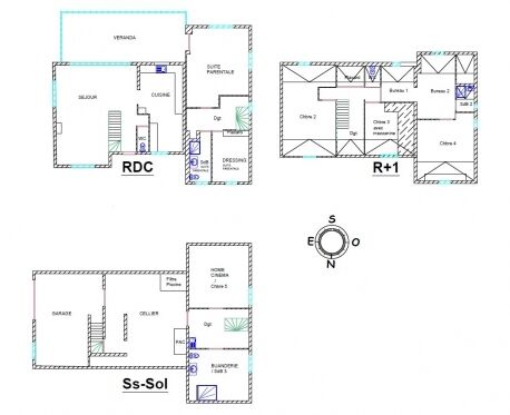
Iad France - Juliette Dauchy vous propose : Juliette Dauchy vous propose cette maison de caractère construite en 1980, alliant espace, charme et modernité. Située sur un terrain clos et paysagé de 2 300 m², elle offre un cadre de vie exceptionnel pour les familles. Points forts : •Pompe à chaleur air / eau (DPE B) : confort thermique et économies d’énergie •Piscine 5 × 10 m au cOEur du jardin arboré •Véranda climatisée de 35 m² exposée plein sud •4 chambres dont une suite parentale avec salle d’eau privative •2 bureaux pour le télétravail ou les enfants •Sous-sol aménagé avec garage, salle d’eau et un espace loisirs modulable, parfait pour créer une chambre supplémentaire, un bureau ou une salle de jeux •Stationnements extérieurs pour 6 à 7 véhicules •Proximité des écoles, commerces et gare Intérieur : Au rez-de-chaussée, un vaste séjour lumineux avec poutres apparentes s’ouvre sur une cuisine américaine conviviale, idéale pour partager des moments en famille. La suite parentale avec salle d’eau privative et la véranda climatisée complètent ce niveau. À l’étage, trois chambres spacieuses dont une de 28 m² et deux bureaux offrent de beaux volumes adaptés à la vie familiale. Extérieur : Le jardin clos et paysagé entoure la maison et ses terrasses avant et arrière. La piscine, nichée au cOEur de la verdure, constitue un véritable havre de détente. Deux abris de jardin viennent compléter l’ensemble. Vie pratique : •Boulangerie à 5 minutes en voiture •Commerces et supermarché à 7 minutes en voiture •Écoles maternelle et primaire à 10 minutes à pied •Collège à 4 km •Gare à 15 minutes en voiture Cette maison spacieuse, fonctionnelle et prête à vivre est idéale pour une famille souhaitant concilier confort, volumes généreux et cadre de vie agréable. Honoraires d'agence à la charge du vendeur. Information d'affichage énergétique sur ce bien : classe ENERGIE B indice 106 et classe CLIMAT A indice 3. Les informations sur les risques auxquels ce bien est exposé, y compris l'obligation légale de débroussaillement, sont disponibles sur le site Géorisques : http://www.georisques.gouv.fr. La présente annonce immobilière a été rédigée sous la responsabilité éditoriale de Mme Juliette Dauchy mandataire indépendant en immobilier (sans détention de fonds), agent commercial de la SAS I@D France immatriculé au RSAC de MELUN sous le numéro 984442244, titulaire de la carte de démarchage immobilier pour le compte de la société I@D France SAS.
Détails de l'annonce
Localisation
Ville
Villemaréchal
Pays
FR
Diagnostics / Énergie
Diagnostic DPE
106
Diagnostic GES
3
Surfaces / Pièces / Composition
Nombre d’étages
2
Chauffage et diagnostics
Diagnostic de performance énergétique (DPE)
a
b
c
d
e
f
g
Indice d'émission de gaz à effet de serre (GES)
a
b
c
d
e
f
g
