Maison individuelle
Type
Bien immobilierTarif
649 000 €Chambres
4Salles de bain
0Maison individuelle
LUYNES CENTRE - MAISON FAMILIALE INDIVIDUELLE DE 140m2 + Combles aménagés de 30m2
efficity, en collaboration avec Sylvie ROUGIER, vous propose cette maison d'une surface au sol de 170m2 sur un terrain de 450m2 située dans un quartier calme de Luynes.
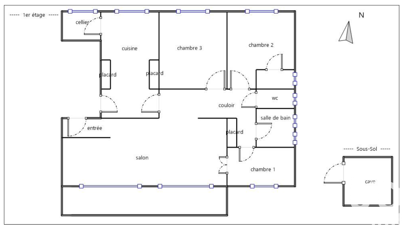
Cette maison baignée de lumière offre 140m2 habitables sur 2 niveaux, avec combles aménagés de 30m2, idéale pour une famille ou un projet locatif, elle permet de créer 2 logements indépendants.
Au Rez-de-chaussée:
En entrant, vous découvrez une pièce de vie chaleureuse avec cuisine ouverte sur le jardin, une chambre avec sa salle d'eau et toilettes
Nous accédons à l'étage par un bel escalier intérieur qui dessert :
Une grande pièce supplémentaire avec cuisine ouverte et un accès sur un balcon de 10m2
Ce niveau comprend également 3 chambres spacieuses et lumineuses ainsi qu'une seconde salle d'eau avec toilettes.
Nous accédons également par la pièce principale aux combles aménagés qui offrent un espace supplémentaire modulable, avec une chambre et un bureau tous deux éclairés grâce à deux VELUX apportant une lumière naturelle.
Extérieur & terrain :
le terrain exposé SUD OUEST est un véritable atout, facilement aménageable, il pourra y accueillir une piscine, un cabanon de + de 6m2 permet un rangement pratique
Stationnement facile sur la propriété
Les atouts de ce bien :
possibilité de créer 2 logements indépendants
quartier calme
toiture entièrement rénovée
localisation idéale à quelques minutes à pied du centre de Luynes, des écoles telles que l'IBS, le Lycée International, à 10mn d'Aix-en-Provence et de la gare TGV
mode de chauffage : climatisation réversible et poele à bois
Ne manquez pas l'opportunité de visiter ce bien d'exception. Contactez-moi dès maintenant pour organiser une visite et découvrir tous les atouts de cette maison
L'annonce a été rédigée sous la responsabilité éditoriale de Sylvie ROUGIER, EI - Agent Commercial enregistré au Tribunal de Commerce d'Aix-en-Provence sous le numéro RSAC 895 153 443 -
Les informations sur les risques auxquels ce bien est exposé sont disponibles sur le site Georisque : georisques. gouv. fr
Sylvie Rougier - EI - est Agent Commercial mandataire en immobilier, immatriculé au Registre Spécial des Agents Commerciaux du Tribunal de Commerce de Aix-en-Provence sous le n°895153443.
Siège social du mandant : effiCity, 48 avenue de Villiers - 75017 PARIS - Société par Actions Simplifiée, société au capital de 132 373,05 euros, immatriculée au RCS Paris 497 617 746 et titulaire de la Carte professionnelle CPI 7501 2015 000 002 025 - CCI Paris IDF - Caisse de Garantie : GALIAN Assurances 89 rue de la Boétie 75008 Paris
Détails de l'annonce
Finances / Mandat / Références
Charges
€
Localisation
Ville
Aix En Provence
Pays
France
Surfaces / Pièces / Composition
Surface habitable
140 m²
Caractéristiques / Équipements
Ascenseur
Digicode
Interphone
Diagnostics / Énergie
Diagnostic DPE
D
Diagnostic GES
B
Chauffage et diagnostics
Diagnostic de performance énergétique (DPE)
a
b
c
d
e
f
g
Indice d'émission de gaz à effet de serre (GES)
a
b
c
d
e
f
g
