Type
Bien immobilierTarif
398 000 €Chambres
5Salles de bain
1Maison
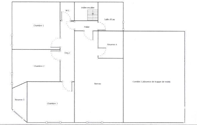
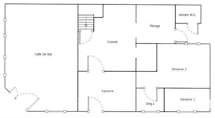
Bienvenue dans cette spacieuse maison de 180 m² habitables, proche du centre-ville. Elle est idéalement conçue pour les familles ou pour ceux souhaitant deux logements distincts. Avec ses 5 chambres, elle offre amplement d'espace pour chacun, tandis que sa configuration permet une vie en toute indépendance. Matériaux de qualité.
**Caractéristiques principales :**
- Séjour/salle à manger généreux : avec une surface de 55 m², idéal pour les rassemblements familiaux et les moments de convivialité.
- Cuisine moderne et équipée de marque Schmidt (indépendante, avec possibilité de l'ouvrir).
- 5 chambres avec placard dont une avec cheminée (ancien salon/salle à manger).
- 2 dressings spacieux : 2 espaces de 6 m² pour organiser et ranger vos effets personnels.
- Salle de bain de près de 10 m², avec baignoire jacuzzi.
- Salle d'eau avec WC
**Équipements supplémentaires :**
- Climatisation réversible dans toutes les pièces: pour un confort thermique optimal toute l'année.
- Isolation de qualité : garantissant des températures agréables et des économies d'énergie.
- Garage avec porte motorisée, d'une superficie de 21 m², avec en plus un coin buanderie/rangement.
- Volets roulants électriques et moustiquaires.
- Connexion fibre.
- Façade rénovée.
- Visiophone.
** Côté jardin:**
- Terrain clos et arboré de 527 m²
- Grand barbecue couvert : idéal pour des repas en plein air et une cuisine d'été conviviale.
- Forage qui permet l'arrosage automatique. - Nombreuses places de parking sur la propriété.
- Portail motorisé.
Ne manquez pas l'opportunité de faire de cette maison votre foyer, où confort, praticité et convivialité se conjuguent pour répondre aux besoins de votre famille. Contactez-moi dès aujourd'hui pour organiser une visite ! Votre conseillère, Christelle MAITRE - Efficity Crau, Arles & Alpilles, au 06 47 24 15 34.
Les informations sur les risques auxquels ce bien est exposé sont disponibles sur le site Georisque : georisques. gouv. fr
Christelle Maitre - EI - est Agent Commercial mandataire en immobilier, immatriculé au Registre Spécial des Agents Commerciaux du Tribunal de Commerce de Tarascon sous le n°918833864.
Siège social du mandant : effiCity, 48 avenue de Villiers - 75017 PARIS - Société par Actions Simplifiée, société au capital de 132 373,05 euros, immatriculée au RCS Paris 497 617 746 et titulaire de la Carte professionnelle CPI 7501 2015 000 002 025 - CCI Paris IDF - Caisse de Garantie : GALIAN Assurances 89 rue de la Boétie 75008 Paris
Détails de l'annonce
Finances / Mandat / Références
Charges
€
Localisation
Ville
Saint Martin De Crau
Pays
France
Surfaces / Pièces / Composition
Surface habitable
181 m²
Caractéristiques / Équipements
Ascenseur
Digicode
Interphone
Diagnostics / Énergie
Diagnostic DPE
B
Diagnostic GES
A
Chauffage et diagnostics
Diagnostic de performance énergétique (DPE)
a
b
c
d
e
f
g
Indice d'émission de gaz à effet de serre (GES)
a
b
c
d
e
f
g
