Trouver...

Language: FR

Devise: EUR

Type
Bien immobilier
Tarif
260 000 €
Chambres
3
Salles de bain
0

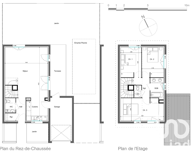
Vente Maison/villa 4 pièces

Iad France - Ingrid Robert vous propose : *Maison T4 récente – 92 m² – Garage – Jardin – Prestations de qualité – Aucun travaux à prévoir * À quelques minutes à pied du centre-ville et des écoles, dans un quartier résidentiel calme et sans vis-à-vis, découvrez cette maison T4 de 2017, alliant confort moderne, fonctionnalité et qualité de vie. Au rez-de-chaussée : La maison s’ouvre sur une entrée offrant un accueil confortable et pratique, dans laquelle se trouve un espace buanderie pouvant également faire office de zone de stockage selon vos besoins. La pièce de vie de 39 m², lumineuse et chaleureuse, comprend un séjour et une cuisine ouverte entièrement équipée, ouvrant directement sur le jardin pour une agréable continuité intérieur / extérieur. Un WC indépendant complète ce niveau. À l’étage : Le palier dessert trois chambres confortables, dont deux avec placards intégrés (10,05 m² et 10,67 m²), ainsi qu’une suite parentale de 15,21 m² avec dressing. Une salle de bain moderne, lumineuse et équipée d’un meuble double vasque, d’une baignoire et d’un sèche-serviette, ainsi qu’un second WC indépendant, complètent l’étage. À l’extérieur : Le jardin intime, sans vis-à-vis, sur un terrain piscinable, dispose d’une terrasse exposée Sud-Est, idéale pour la détente ou les repas en famille. Un garage isolé et attenant, accessible depuis la cuisine, ainsi qu’une place de stationnement privative viennent parfaire ce bien. Prestations et équipements : •Climatisations réversibles pilotables à distance •Volets roulants électriques •Fibre optique et prises Ethernet dans toutes les pièces •Entretien impeccable, aucun travaux à prévoir Située dans une copropriété à taille humaine avec charges faibles, cette maison offre un cadre de vie serein, moderne et fonctionnel, à proximité immédiate des commodités. Un bien rare sur le secteur, à visiter sans tarder ! NB : La dernière photo est une projection 3D à titre illustratif – aménagement non contractuel. La presente annonce immobiliere vise 1 lot situé dans une copropriété de 73 lots au total et ne faisant l'objet d'aucune procédure en cours citée à l'article L. 721-1 du code de la construction et de l'habitation. Montant moyen mensuel de charges déclaré par le vendeur : 31.72€ par mois (soit 380.64 € annuel). Honoraires d'agence à la charge du vendeur. Information d'affichage énergétique sur ce bien : classe ENERGIE C indice 98 et classe CLIMAT C indice 15. Les informations sur les risques auxquels ce bien est exposé, y compris l'obligation légale de débroussaillement, sont disponibles sur le site Géorisques : http://www.georisques.gouv.fr. La présente annonce immobilière a été rédigée sous la responsabilité éditoriale de Mme Ingrid Robert mandataire indépendant en immobilier (sans détention de fonds), agent commercial de la SAS I@D France immatriculé au RSAC de Toulouse sous le numéro 897760948, titulaire de la carte de démarchage immobilier pour le compte de la société I@D France SAS.

Détails de l'annonce

Localisation

Ville
Seysses
Pays
FR

Diagnostics / Énergie

Diagnostic DPE
98
Diagnostic GES
15

Chauffage et diagnostics

Diagnostic de performance énergétique (DPE)
a
b
c
d
e
f
g
Indice d'émission de gaz à effet de serre (GES)
a
b
c
d
e
f
g
Rappelez-moi
Nos partenaires