Vente Maison d'architecte 5 pièces
Type
Bien immobilierTarif
665 000 €Chambres
5Salles de bain
0Vente Maison d'architecte 5 pièces
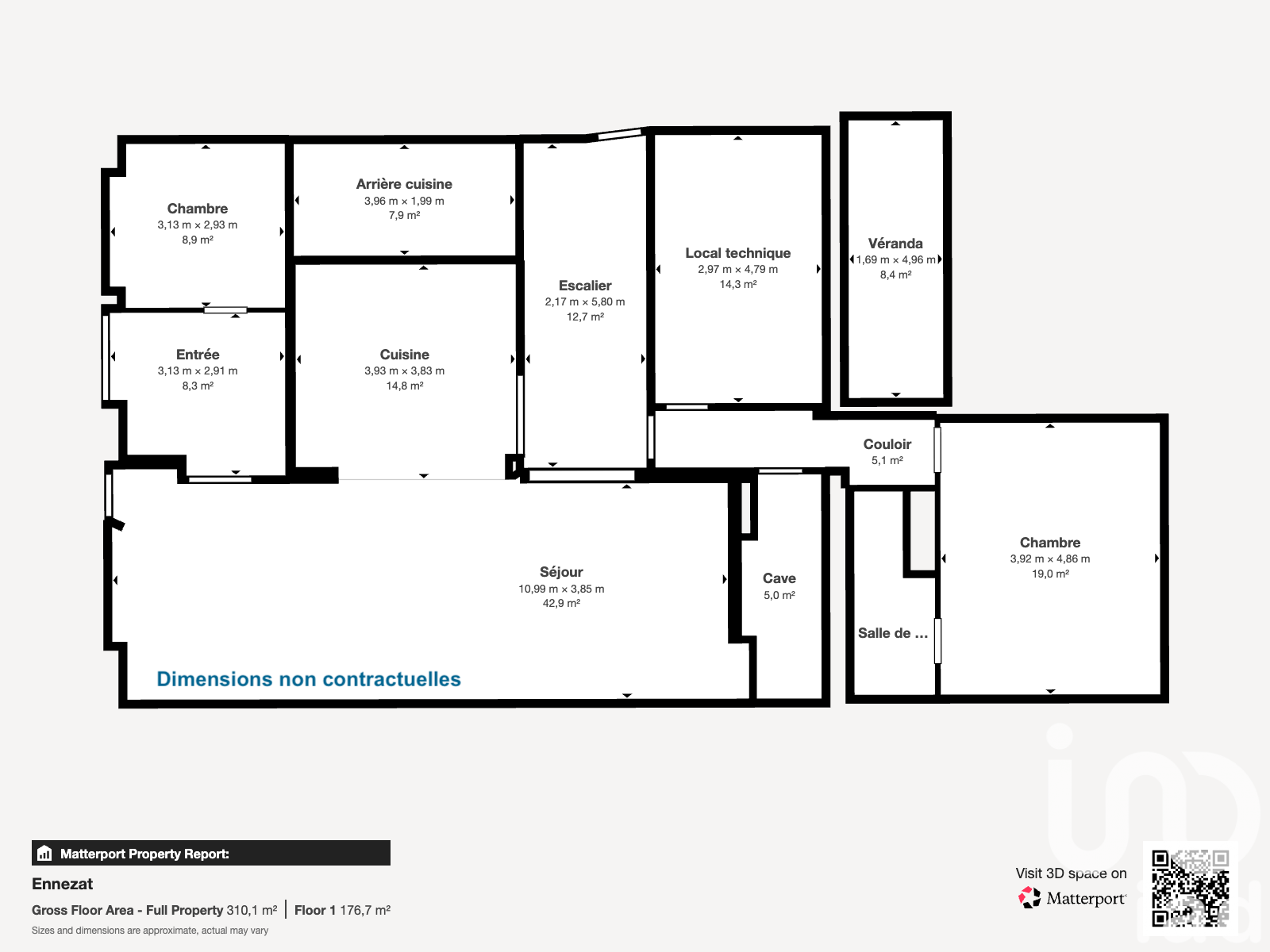
Iad France - Clément Fouilloux vous propose : À vendre à Ennezat, magnifique maison bourgeoise des années 50 entièrement rénovée avec des prestations de qualité. D'une superficie de 256 m² sur deux niveaux, cette demeure familiale bénéficie d’un jardin arboré de 1570 m² exposé plein sud, offrant une luminosité exceptionnelle tout au long de la journée. Le rez-de-chaussée accueille une vaste entrée, une cuisine contemporaine équipée de 16 m², un séjour lumineux de 46 m² idéal pour recevoir, un bureau indépendant parfait pour le télétravail, ainsi qu’une grande chambre d’amis. Vous trouverez également une salle de douche pour les visiteurs, un cellier, une chaufferie fonctionnelle et un garage fermé de plus de 26 m² directement accessible depuis la maison. À l’étage, la suite parentale de 40,5 m² avec dressing et salle de bain privative séduira par ses volumes et son confort. Trois chambres supplémentaires, spacieuses et lumineuses, ainsi qu’un dressing supplémentaire, une salle de douche familiale et des toilettes séparées viennent compléter cet espace nuit pensé pour toute la famille. La maison bénéficie d’un chauffage économique par chaudière à pellets avec chauffage au sol au rez-de-chaussée et radiateurs à l’étage. Entièrement isolée avec doublage périphérique et équipée de fenêtres bois double vitrage, elle offre de très bonnes performances énergétiques. Les volets roulants électriques sont commandables individuellement ou en centralisation pour plus de confort. À l'extérieur, vous profiterez d’un vaste jardin ainsi que d’une agréable terrasse orientée à l’est, idéale pour savourer vos petits-déjeuners ensoleillés. Le terrain, en grande partie encore aménageable et piscinable, offre de belles possibilités d’aménagement selon vos envies. Une cour intérieure complète les extérieurs en permettant le stationnement aisé de plusieurs véhicules. Située dans un environnement calme tout en restant proche des commodités, cette propriété séduira les familles en quête d’espace et de confort, tout comme ceux qui recherchent un cadre de vie privilégié. Honoraires d'agence à la charge du vendeur. Information d'affichage énergétique sur ce bien : classe ENERGIE C indice 146 et classe CLIMAT A indice 4. Les informations sur les risques auxquels ce bien est exposé, y compris l'obligation légale de débroussaillement, sont disponibles sur le site Géorisques : http://www.georisques.gouv.fr. La présente annonce immobilière a été rédigée sous la responsabilité éditoriale de M Clément Fouilloux mandataire indépendant en immobilier (sans détention de fonds), agent commercial de la SAS I@D France immatriculé au RSAC de Bourg-en-Bresse sous le numéro 900920497, titulaire de la carte de démarchage immobilier pour le compte de la société I@D France SAS.
Détails de l'annonce
Localisation
Ville
Ennezat
Pays
FR
Diagnostics / Énergie
Diagnostic DPE
146
Diagnostic GES
4
Surfaces / Pièces / Composition
Nombre d’étages
2
Chauffage et diagnostics
Diagnostic de performance énergétique (DPE)
a
b
c
d
e
f
g
Indice d'émission de gaz à effet de serre (GES)
a
b
c
d
e
f
g
