Vente Maison/villa 7 pièces
Type
Bien immobilierTarif
306 500 €Chambres
0Salles de bain
0Vente Maison/villa 7 pièces
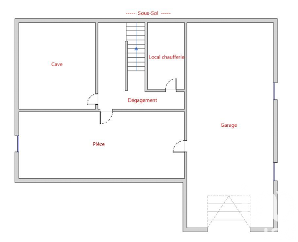
Iad France - Stephanie Dubreu vous propose : Proche des bords de Loire, cette maison de 166 m² sur sous-sol complet se compose : Au rdc d'une entrée avec de nombreux placards, d'un espace de vie climatisé de plus de 40 m²( un salon avec cheminée à foyer ouvert avec accès véranda et une salle à manger y accédant également), d'une cuisine séparée aménagée et équipée, d'une belle véranda, de 2 chambres avec placards dont une avec accès véranda, d'une salle d'eau et d'un wc séparé. À l'étage, un couloir dessert 3 chambres avec placards, une salle d'eau, un wv séparé et un grenier pouvant être aménagé selon ses besoins. Un grand sous-sol sur la totalité de la maison avec porte sectionnelle électrique permet le stationnement de 2 véhicules, une très grande pièce avec fenêtre, une cave et une chaufferie. L'extérieur possède une cabane permettant d'abriter une voiture, différents abris, places de stationnements et une mare. Le terrain est piscinable. L'ensemble de la maison est équipée de double vitrage, de volets électriques, d'un système d'alarme et d'un adoucisseur. Le terrain de 1850 m²est clos et arboré. de 1850 m². Honoraires d'agence à la charge du vendeur. Information d'affichage énergétique sur ce bien : classe ENERGIE D indice 236 et classe CLIMAT D indice 44. Les informations sur les risques auxquels ce bien est exposé, y compris l'obligation légale de débroussaillement, sont disponibles sur le site Géorisques : http://www.georisques.gouv.fr. La présente annonce immobilière a été rédigée sous la responsabilité éditoriale de Mme Stephanie Dubreu mandataire indépendant en immobilier (sans détention de fonds), agent commercial de la SAS I@D France immatriculé au RSAC de ORLEANS sous le numéro 889558748, titulaire de la carte de démarchage immobilier pour le compte de la société I@D France SAS.
Détails de l'annonce
Localisation
Ville
Tavers
Pays
FR
Diagnostics / Énergie
Diagnostic DPE
236
Diagnostic GES
44
Chauffage et diagnostics
Diagnostic de performance énergétique (DPE)
a
b
c
d
e
f
g
Indice d'émission de gaz à effet de serre (GES)
a
b
c
d
e
f
g
