Vente Appartement 6 pièces
Type
Bien immobilierTarif
379 000 €Chambres
4Salles de bain
0Vente Appartement 6 pièces
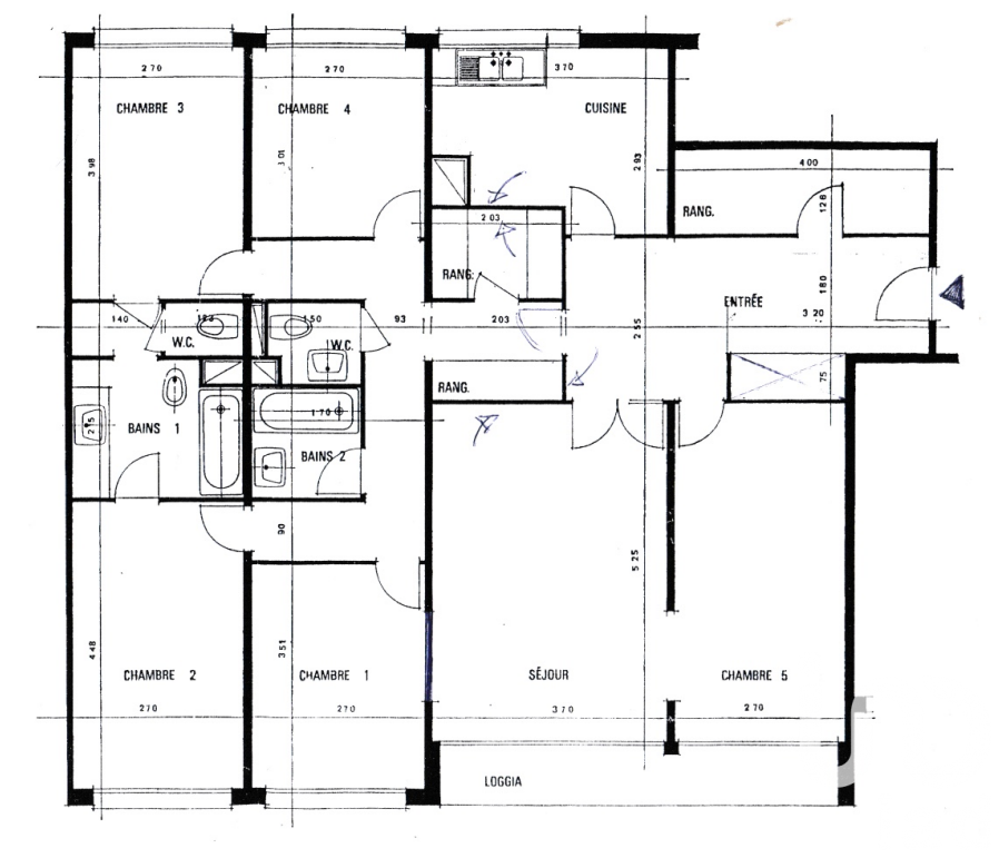
Iad France - Marie-Hélène Prima vous propose : * Appartement de 6 Pièces avec Balcon à Chevilly-Larue * Spacieux appartement de 128 m² situé à Chevilly-Larue dans une résidence familiale, offrant un cadre de vie agréable pour vous et votre famille. Au deuxième étage avec ascenseur, cet appartement idéalement distribué, s'ouvre sur une belle entrée desservant un grand salon ainsi qu'une salle à manger, une cuisine dinatoire et un cagibi. La partie nuit comprend 4 chambres lumineuses, 2 salles de bains, 2 WC, et un dressing. Le balcon offre une vue dégagée sur l'environnement extérieur et le parc. Le chauffage collectif et l'eau chaude sont compris dans les charges. L'ensemble repose dans une résidence sécurisée avec un agréable parc et une gardienne. De plus, la présence d'une place de parking privative en sous-sol et d'une cave est un véritable atout pour ce bien immobilier. La localisation de cet appartement est idéale, à proximité immédiate des écoles maternelle et primaire Pasteur, du collège, ainsi que du lycée, offrant un cadre éducatif parfait pour vos enfants. À proximité de nombreux bus n° 131 - 186 - 286 - 192 ainsi que de la ligne de métro n° 14 à 15 minutes à pied et les axes routiers A 86 et A6. Les atouts : - Ravalement avec isolation par l'extérieur voté et payé par le vendeur garantissant un meilleur confort thermique - Remplacement des menuiseries d'origines de simples vitrages en doubles vitrages votés et payés par le vendeur - 4 Chambres, possibilité 5 - Le cagibi peut être transformé facilement en buanderie ou en salle de douche. - Idéal pour investisseur, Coliving possible. Contactez-moi dès maintenant pour une visite ! La presente annonce immobiliere vise 3 lots situés dans une copropriété de 420 lots au total et ne faisant l'objet d'aucune procédure en cours citée à l'article L. 721-1 du code de la construction et de l'habitation. Montant moyen mensuel de charges déclaré par le vendeur : 430.33€ par mois (soit 5164 € annuel). Honoraires d'agence à la charge du vendeur. Information d'affichage énergétique sur ce bien : classe ENERGIE D indice 227 et classe CLIMAT D indice 13. Les informations sur les risques auxquels ce bien est exposé, y compris l'obligation légale de débroussaillement, sont disponibles sur le site Géorisques : http://www.georisques.gouv.fr. La présente annonce immobilière a été rédigée sous la responsabilité éditoriale de Mme Marie-Hélène Prima mandataire indépendant en immobilier (sans détention de fonds), agent commercial de la SAS I@D France immatriculé au RSAC de NANTERRE sous le numéro 839031994, titulaire de la carte de démarchage immobilier pour le compte de la société I@D France SAS.
Détails de l'annonce
Localisation
Ville
Chevilly-Larue
Pays
FR
Diagnostics / Énergie
Diagnostic DPE
227
Diagnostic GES
13
Surfaces / Pièces / Composition
Nombre d’étages
5
Étage
2
Chauffage et diagnostics
Diagnostic de performance énergétique (DPE)
a
b
c
d
e
f
g
Indice d'émission de gaz à effet de serre (GES)
a
b
c
d
e
f
g
