Type
Bien immobilierTarif
312 000 €Chambres
2Salles de bain
2Maison à vendre 3 pièces GROSLAY (95)
*Conseillère immobilier MONA MOFRIH vous présente !
-Une opportunité rare offrant confort de vie et espace complémentaire idéale pour un projet familial ou locatif, Un atout majeur pour premier achat ou un investissement.
@Nichée au cœur d'un quartier résidentiel prisé et au calme absolu, cette maison indépendante, non mitoyenne, séduit par sa luminosité et la qualité de ses prestations.
@L'habitation principale développe 59 m² parfaitement agencés et offre une pièce de vie élégante et traversante, baignée de lumière naturelle. La cuisine ouverte, moderne et conviviale, s'ouvre sur un espace salon–salle à manger donnant accès à une superbe terrasse exposée plein Sud, offrant une belle vue dégagée sur le jardin clos et plat.
@Un studio indépendant complète harmonieusement le bien, idéal pour accueillir un proche, créer un espace de télétravail ou envisager un revenu locatif complémentaire, tout en préservant l'intimité de chacun.
@À l'extérieur, vous bénéficiez également d'une place de stationnement privative à l'avant de la maison, un véritable atout en secteur pavillonnaire.
@Ses autres atouts : chauffage au gaz, porte d'entrée et fenêtres neuves en double vitrage, isolation de la toiture, exposition Sud-Est.
@Un bien rare sur le marché de Groslay, conjuguant indépendance, confort, idéal pour une clientèle en quête d'un cadre de vie serein et qualitatif.
Atouts du bien :
-Maison indépendante (non mitoyenne)
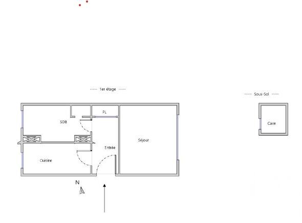
-Surface totale de 75 m², dont 59 m² pour la maison principale
-Studio indépendant offrant de nombreuses possibilités
-Terrasse exposée plein Sud avec vue dégagée sur jardin clos et plat
-Place de stationnement privative à l'avant de la maison
-Chauffage au gaz
-Porte d'entrée et fenêtres neuves en double vitrage
-Isolation récente de la toiture
-Exposition Sud-Est garantissant luminosité et confort thermique
-Situation idéale : à 8 minutes à pied de la gare (ligne H Transilien vers paris)
-Quartier résidentiel calme et recherché
@NE LAISSEZ PAS PASSER CETTE BELLE OPPORTUNITE!!!
@CONTACTEZ MOI DES AUJOURD'HUI POUR ORGANISER VOTRE VISITE !!!!!!
Les honoraires sont à la charge du vendeur.
Logement à consommation énergétique excessive : classe F
Les informations sur les risques auxquels ce bien est exposé sont disponibles sur le site Géorisques : www. georisques. gouv. fr.
Réseau Immobilier CAPIFRANCE - Votre agent commercial (RSAC N°494 760 325 - Greffe de PONTOISE) Mona MOFRIH Entrepreneur Individuel 06 20 54 73 28 - Réf.937641
À proximité
Recherche des commodités à proximité...
Détails de l'annonce
Finances / Mandat / Références
Charges
€
Localisation
Ville
Groslay
Pays
France
Surfaces / Pièces / Composition
Surface habitable
59 m²
Nombre de pièces
3
Nombre de chambres
2
Nombre de balcons
Caractéristiques / Équipements
Ascenseur
Digicode
Interphone
Nombre de parkings
Piscine
Diagnostics / Énergie
Diagnostic DPE
F
Diagnostic GES
F
Chauffage / Énergie
Type de chauffage
Énergie : gaz
Cuisine
Type de cuisine
américaine
Chauffage et diagnostics
Diagnostic de performance énergétique (DPE)
a
b
c
d
e
f
g
Indice d'émission de gaz à effet de serre (GES)
a
b
c
d
e
f
g
