Vente Appartement 3 pièces
Type
Bien immobilierTarif
399 000 €Chambres
2Salles de bain
0Vente Appartement 3 pièces
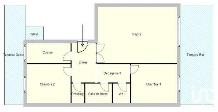
Iad France - Amandine Fornetti vous propose : OPPORTUNITE à saisir : ABBAYE de ROSELAND - 06200 Nice Nice Ouest / Archet- Fabron : (mandat à charge acquéreur, dans le cadre d'une succession, l'acheteur ne paiera pas de frais de notaire sur les honoraires d’agence) Appartement 3 pièces - 80,34 m² avec cave. Situé dans le domaine privé de l’Abbaye de Roseland à Nice Ouest, connu pour son environnement verdoyant et ses vues sur la mer. La résidence avec gardien dispose de courts de tennis, d'une piscine, de nombreuses places en stationnement libre, d'un restaurant, d'un centre-commercial et d'un club-house. Cet appartement de 80,34 m² offre un superbe potentiel après rénovation ! - Traversant Est - Ouest, - 1er étage avec ascenseur, - Composé d'une entrée de 8 m², un séjour lumineux de 28 m² ouvrant sur une terrasse de 15.45 m² avec vue mer, une cuisine indépendante de 9 m² donnant sur une seconde terrasse de 9.70 m² avec aperçu mer et nature ! - Dressing, salle de bains, un wc indépendant, - 2 chambres de 12.39 et 12.07 m² donnant sur les terrasses, une à l'Est et l'autre à l'Ouest. - Aucun vis à vis, - Climatisation réversible dans le salon, - Belle hauteur sous plafond. Ce bien est à rénover mais la base est saine. Son fort potentiel d’aménagement en fait une opportunité rare dans ce secteur prisé. Calme, il séduira les familles ou encore les investisseurs à la recherche d’un bien à valoriser. (Charges 250 / mois incluant toutes les prestations listées ci-dessus + chauffage et eau chaude en collectif, entretien des parties communes, entretien de l'ascenseur et charges de syndic professionnel ! / Taxe Foncière 1620 / an) Emplacement stratégique : Boulevard Napoléon III 06200 Nice. À quelques minutes des plages et de la promenade des Anglais, proche du centre-ville de Nice, à 2 pas de l’hôpital l’Archet, Accès rapide pour l’autoroute A8, à la voie rapide ou à l’aéroport Nice Côte d'Azur et Cap 3000 ! Plan sur simple demande / Visites et informations 7j / 7 ! La presente annonce immobiliere vise 2 lots situés dans une copropriété de 193 lots au total et ne faisant l'objet d'aucune procédure en cours citée à l'article L. 721-1 du code de la construction et de l'habitation. Montant moyen mensuel de charges déclaré par le vendeur : 250€ par mois (soit 3000 € annuel). Honoraires d'agence à la charge de l'acquéreur. Prix honoraires inclus : 399000 euros. Prix hors honoraires : 384000 euros. Honoraires TTC à la charge de l'acquéreur (3,91% du prix du bien hors honoraires) : 15000 euros. Information d'affichage énergétique sur ce bien : classe ENERGIE C indice 156 et classe CLIMAT C indice 29. Les informations sur les risques auxquels ce bien est exposé, y compris l'obligation légale de débroussaillement, sont disponibles sur le site Géorisques : http://www.georisques.gouv.fr. La présente annonce immobilière a été rédigée sous la responsabilité éditoriale de Mme Amandine Fornetti mandataire indépendant en immobilier (sans détention de fonds), agent commercial de la SAS I@D France immatriculé au RSAC de Antibes sous le numéro 878013432, titulaire de la carte de démarchage immobilier pour le compte de la société I@D France SAS.
Détails de l'annonce
Localisation
Ville
Nice
Pays
FR
Diagnostics / Énergie
Diagnostic DPE
156
Diagnostic GES
29
Surfaces / Pièces / Composition
Nombre d’étages
9
Chauffage et diagnostics
Diagnostic de performance énergétique (DPE)
a
b
c
d
e
f
g
Indice d'émission de gaz à effet de serre (GES)
a
b
c
d
e
f
g
