Type
Bien immobilierTarif
541 € /moisChambres
0Salles de bain
0BRAVES
// COLOCATION
Colocation - Quartier Patte d'Oie, à proximité immédiate du métro ligne A
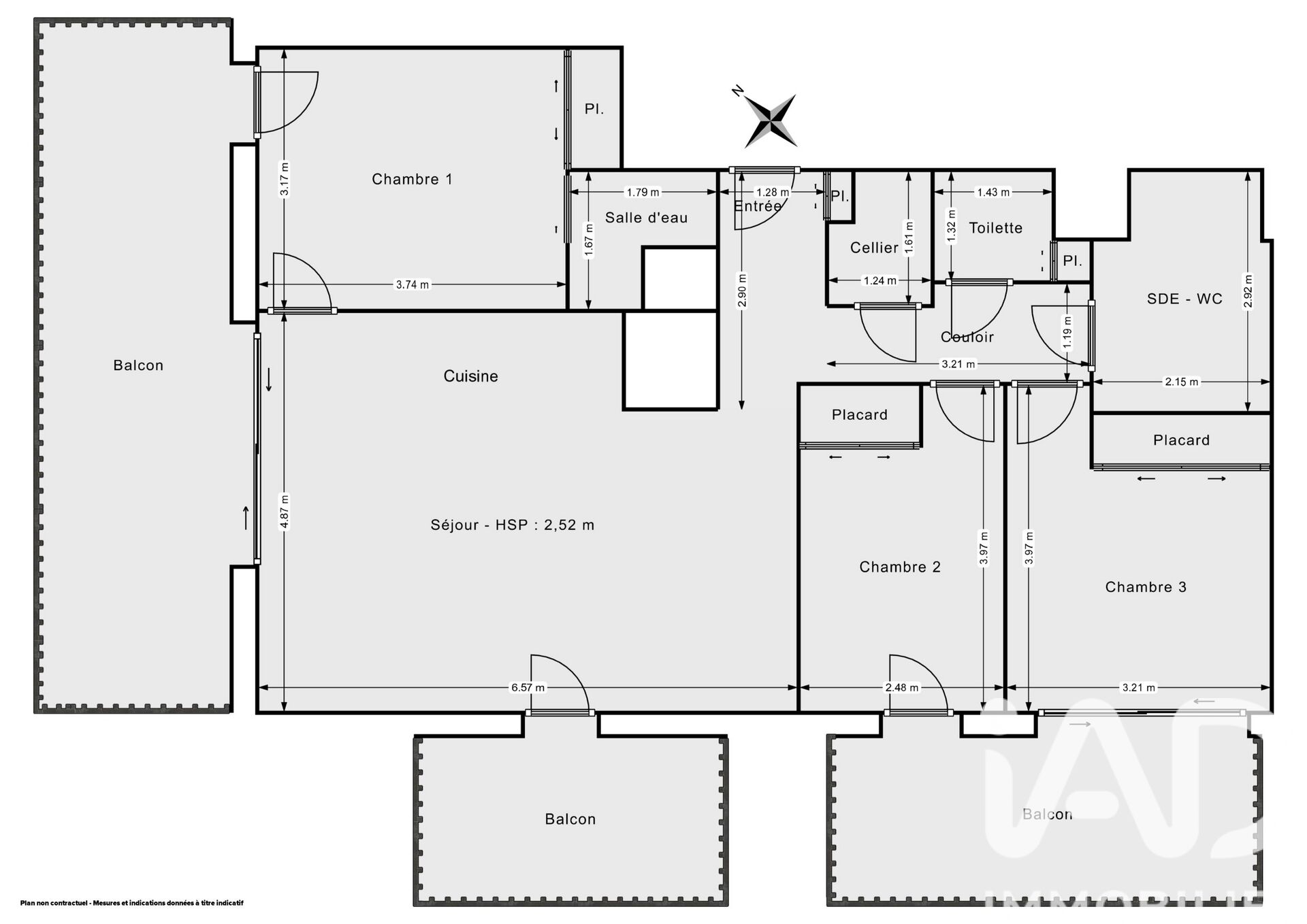
Bel appartement de 78.30 m², composé de quatre chambres, d'un salon cosy et d'une cuisine US. Entièrement meublé et équipé, ce bien est complété par un balcon ensoleillé.
De plus, chaque chambre dispose de sa propre salle d'eau privative, d'un lit double, d'un bureau, d'une TV écran plat et de nombreux rangements.
Informations complémentaires :
- Loyer : 541€ CC/ mois pour chambre les chambre 1 à 3 et 557€ CC/mois pour la chambre 4, incluant l'eau, l'électricité, internet, le chauffage et les charges de copropriété (provisions sur charges avec régularisation annuelle)
- Dépôt de garantie : un mois de loyer HC, soit 466€ pour les chambres 1 à 3 et 482€ pour la chambre 4
- Garantie VISALE acceptée
- Eligible aux aides au logement
- Pas de solidarité entre les colocataires
Diagnostic de performance énergétique (DPE) :
Consommation énergétique : E (241 kWh/m²/an)
Emission de gaz à effet de serre : C (11 kg CO2/m²/an)
Estimation des coûts annuels d'énergie du logement : entre 1121€ et 1370€
Les informations sur les risques auxquels ce bien est exposé sont disponibles sur le site Géorisques : www. georisques. gouv. fr
Frais à la charge du locataire : seulement 150€, comprenant les frais de dossier (100€) et d'état des lieux (50€).
Ref/ Braves
Détails de l'annonce
Finances / Mandat / Références
Charges
€
Localisation
Ville
Toulouse
Pays
France
Surfaces / Pièces / Composition
Surface habitable
78.3 m²
Caractéristiques / Équipements
Ascenseur
Digicode
Interphone
Chauffage et diagnostics
Diagnostic de performance énergétique (DPE)
a
b
c
d
e
f
g
Indice d'émission de gaz à effet de serre (GES)
a
b
c
d
e
f
g
