Trouver...

Language: FR

Devise: EUR

Maison à vendre 5 pièces LA ROQUEBRUSSANNE (83)

Publié le 21 February 2026
Type
Bien immobilier
Tarif
390 000 €
Chambres
4
Salles de bain
1

Maison à vendre 5 pièces LA ROQUEBRUSSANNE (83)

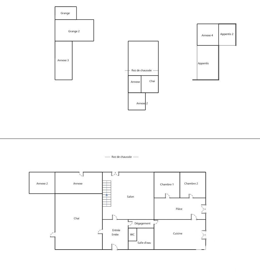
Élégante maison de plain-pied avec piscine, au calme absolu, ACCES PMR Découvrez cette maison de plain-pied, offrant 97 m² habitables (environ 120 m² de surface utile) et un confort de vie rare dans un environnement privilégié. Un espace de vie lumineux et chaleureux Vous serez séduit dès l'entrée par un spacieux salon-séjour climatisé, baigné de lumière, agrémenté d'une cheminée à insert et ouvert sur une cuisine américaine moderne. Un lieu idéal pour recevoir et partager des moments conviviaux. Espace nuit fonctionnel La maison propose 4 chambres dont une adaptée PMR, une salle d'eau adaptée PMR, une salle de bain, ainsi que 2 WC dont un séparé, offrant un agencement pratique pour la vie de famille. D'une dépendance accessible par l'extérieur comprenant une buanderie et un grand cellier (ou autre destination). Fosse septique à changer (non conforme). Après une remise en beauté, vous pourrez profitez pleinement du jardin et de sa piscine. Implantée sur un vaste terrain de 1 650 m², la propriété bénéficie d'un calme absolu et d'un bel espace de détente avec piscine, parfait pour profiter des beaux jours dans un cadre verdoyant. Les + qui font la différence Maison de plain-pied Grand séjour climatisé avec cheminée insert 4 chambres Salle d'eau PMR + salle de bain 2 WC, dont un indépendant Terrain 1650 m², au calme Piscine Environnement recherché, proche des commodités Une opportunité rare dans le secteur Idéale pour une famille ou pour ceux recherchant confort et tranquillité, cette maison combine prestations, espace et qualité de vie. Contactez-moi dès aujourd'hui pour organiser une visite. Les honoraires sont à la charge du vendeur. Les informations sur les risques auxquels ce bien est exposé sont disponibles sur le site Géorisques : www. georisques. gouv. fr. Réseau Immobilier CAPIFRANCE - Votre agent commercial (RSAC N°419 862 560 - Greffe de DRAGUIGNAN) Franck GRENIE Entrepreneur Individuel 06 18 31 70 25 - Réf.931171

À proximité

Recherche des commodités à proximité...

Détails de l'annonce

Finances / Mandat / Références

Charges

Localisation

Ville
La Roquebrussanne
Pays
France

Surfaces / Pièces / Composition

Surface habitable
97 m²
Nombre de pièces
5
Nombre de chambres
4

Caractéristiques / Équipements

Ascenseur
Digicode
Interphone

Diagnostics / Énergie

Diagnostic DPE
C
Diagnostic GES
A

Chauffage / Énergie

Type de chauffage
Énergie : climatisation réversible - Mécanisme : Climatisation réversible

Cuisine

Type de cuisine
américaine

Chauffage et diagnostics

Diagnostic de performance énergétique (DPE)
a
b
c
d
e
f
g
Indice d'émission de gaz à effet de serre (GES)
a
b
c
d
e
f
g
Rappelez-moi