Trouver...

Language: FR

Devise: EUR

Type
Bien immobilier
Tarif
235 000 €
Chambres
2
Salles de bain
0

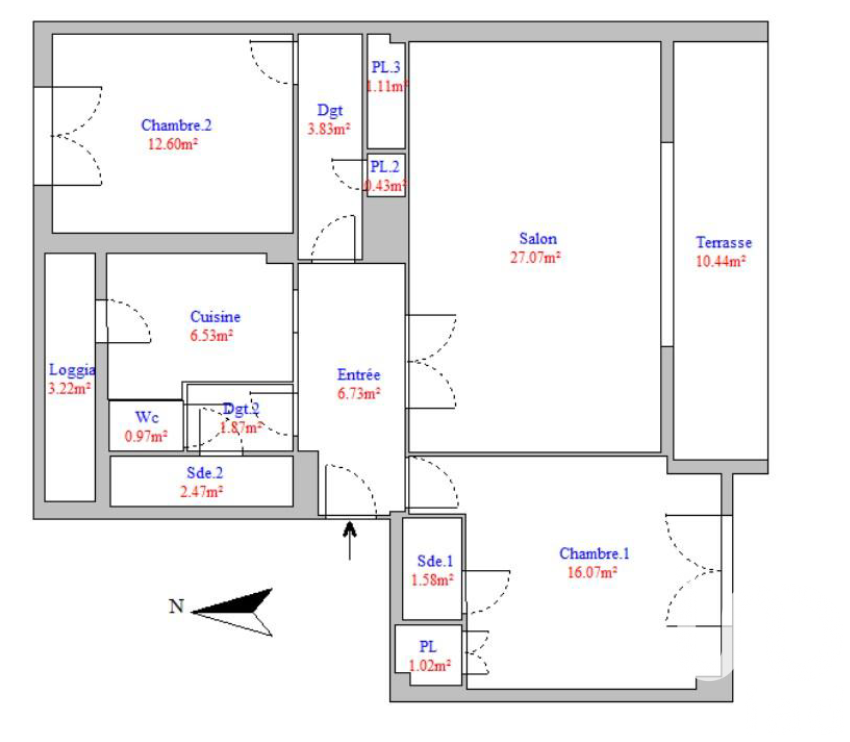
Vente Appartement 3 pièces

Iad France - Sandra DI MATTEO vous propose : PRODUIT RARE - Au clame, sans vis à vis, dans un quartier recherché, en colline sur les hauteurs de Chateaurenard. Appartement rénové de 82 m² habitable composé de 3 pièces avec terrasse de 10 m² et 2 places de stationnement. Le logement se compose, d'une entrée indépendante, un séjour de 28 m² avec accès à la terrasse, deux chambres (13 et 14 m²), une cuisine équipée, une buanderie, une salle d'eau, un toilette séparé, d'une loggia / buanderie et de nombreux placards. Des photos de home staging vous sont présentées pour vous aider à vous projeter avec de l'ameublement. Venez vous projeter dans cette résidence, composée de 5 lots maximum, située dans l'un des quartier les plus standing de Chateaurenard. À visiter sans tarder. Honoraires d'agence à la charge du vendeur. Bien non soumis au DPE. Les informations sur les risques auxquels ce bien est exposé, y compris l'obligation légale de débroussaillement, sont disponibles sur le site Géorisques : http://www.georisques.gouv.fr. La présente annonce immobilière a été rédigée sous la responsabilité éditoriale de Mme Sandra DI MATTEO mandataire indépendant en immobilier (sans détention de fonds), agent commercial de la SAS I@D France immatriculé au RSAC de TARASCON sous le numéro 828326355, titulaire de la carte de démarchage immobilier pour le compte de la société I@D France SAS.

Détails de l'annonce

Localisation

Ville
Châteaurenard
Pays
FR

Chauffage et diagnostics

Diagnostic de performance énergétique (DPE)
a
b
c
d
e
f
g
Indice d'émission de gaz à effet de serre (GES)
a
b
c
d
e
f
g
Rappelez-moi
Nos partenaires