Vente Appartement 3 pièces
Type
Bien immobilierTarif
350 000 €Chambres
2Salles de bain
0Vente Appartement 3 pièces
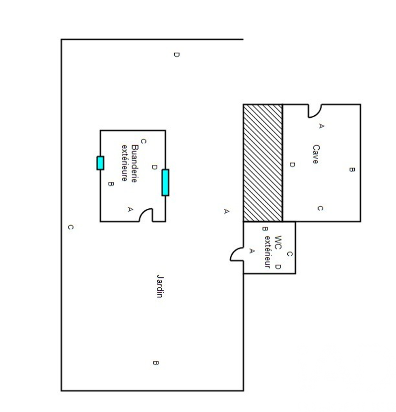
Iad France - Aurore Stenger vous propose : La Trinité : Havre de paix à deux pas du centre : charmant haut de maison 3 pièces avec entrée indépendante, terrasses et jardin privatif de 150 m². Situé dans un secteur calme de La Trinité, à proximité immédiate des commerces, des écoles, des transports et du futur tramway d'ici 3 ans. Dès l'entrée, vous serez accueillis par une jolie verrière accédant à l'intérieur de la maison comprenant un salon / séjour avec cuisine ouverte, 2 chambres, une salle de bain et un wc séparé. Ce qui fait la différence : Un jardin privatif verdoyant de 150 m², véritable bouffée d’oxygène avec une dépendance cadastrée actuellement aménagée en cuisine d’été pour partager des repas en plein air, une terrasse type patio à l’abri des regards pour une détente intimiste et une cave complètent le tout. Je ne vous en dis pas plus, venez découvrir ce bien aux multiples possibilités. Tranquillité assurée sans renoncer au confort urbain. Honoraires d'agence à la charge du vendeur. Information d'affichage énergétique sur ce bien : classe ENERGIE E indice 293 et classe CLIMAT E indice 64. Les informations sur les risques auxquels ce bien est exposé, y compris l'obligation légale de débroussaillement, sont disponibles sur le site Géorisques : http://www.georisques.gouv.fr. La présente annonce immobilière a été rédigée sous la responsabilité éditoriale de Mme Aurore Stenger mandataire indépendant en immobilier (sans détention de fonds), agent commercial de la SAS I@D France immatriculé au RSAC de NICE sous le numéro 804724839, titulaire de la carte de démarchage immobilier pour le compte de la société I@D France SAS.
Détails de l'annonce
Localisation
Ville
La Trinité
Pays
FR
Diagnostics / Énergie
Diagnostic DPE
293
Diagnostic GES
64
Chauffage et diagnostics
Diagnostic de performance énergétique (DPE)
a
b
c
d
e
f
g
Indice d'émission de gaz à effet de serre (GES)
a
b
c
d
e
f
g
