Vente Appartement 4 pièces
Type
Bien immobilierTarif
138 000 €Chambres
2Salles de bain
0Vente Appartement 4 pièces
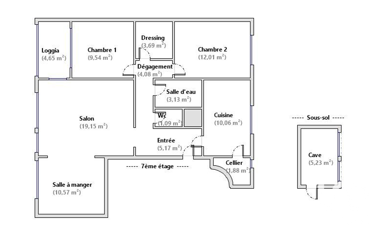
Iad France - Donovan Depoix vous propose : Quartier Victor Hugo, dans une résidence sécurisée avec gardien, venez découvrir ce superbe appartement LUMINEUX de 4 pièces de plus de 80 m² situé au 7ème étage avec ASCENCEUR. Une grande entrée donne accès d'un côté à un salon / salle à manger de 30 m² exposé sud avec un accès direct à la loggia et de l'autre, à une cuisine moderne aménagée et équipée. Vous disposez dans le prolongement de cette dernière d'un cellier / buanderie. L'espace nuit comprend deux chambres dont une avec un accès direct à la loggia, ainsi qu'une salle d'eau entièrement rénovée et des WC séparés Cet appartement a été bien entretenu au fil des ans et est en bon état général, prêt à accueillir ses nouveaux propriétaires. Les plus de ce bien : il est situé à proximité des commerces, écoles et au pied des transports permettant de relier le cOEur de ville en quelques minutes. Il dispose d'une PLACE DE PARKING PRIVATIVE et d'une CAVE. Possibilité d'une 3ème CHAMBRE par la pose d'une simple cloison. Ne manquez pas l'occasion de visiter ce magnifique appartement, un véritable bijou au cOEur de la ville ! La presente annonce immobiliere vise 4 lots situés dans une copropriété de 727 lots au total et ne faisant l'objet d'aucune procédure en cours citée à l'article L. 721-1 du code de la construction et de l'habitation. Montant moyen mensuel de charges déclaré par le vendeur : 200€ par mois (soit 2400 € annuel). Honoraires d'agence à la charge du vendeur. Information d'affichage énergétique sur ce bien : classe ENERGIE C indice 126 et classe CLIMAT C indice 26. Les informations sur les risques auxquels ce bien est exposé, y compris l'obligation légale de débroussaillement, sont disponibles sur le site Géorisques : http://www.georisques.gouv.fr. La présente annonce immobilière a été rédigée sous la responsabilité éditoriale de M Donovan Depoix mandataire indépendant en immobilier (sans détention de fonds), agent commercial de la SAS I@D France immatriculé au RSAC de ROMANS sous le numéro 933075376, titulaire de la carte de démarchage immobilier pour le compte de la société I@D France SAS.
Détails de l'annonce
Localisation
Ville
Valence
Pays
FR
Diagnostics / Énergie
Diagnostic DPE
126
Diagnostic GES
26
Surfaces / Pièces / Composition
Nombre d’étages
8
Étage
7
Chauffage et diagnostics
Diagnostic de performance énergétique (DPE)
a
b
c
d
e
f
g
Indice d'émission de gaz à effet de serre (GES)
a
b
c
d
e
f
g
