Trouver...

Language: FR

Devise: EUR

Type
Bien immobilier
Tarif
330 000 €
Chambres
2
Salles de bain
0

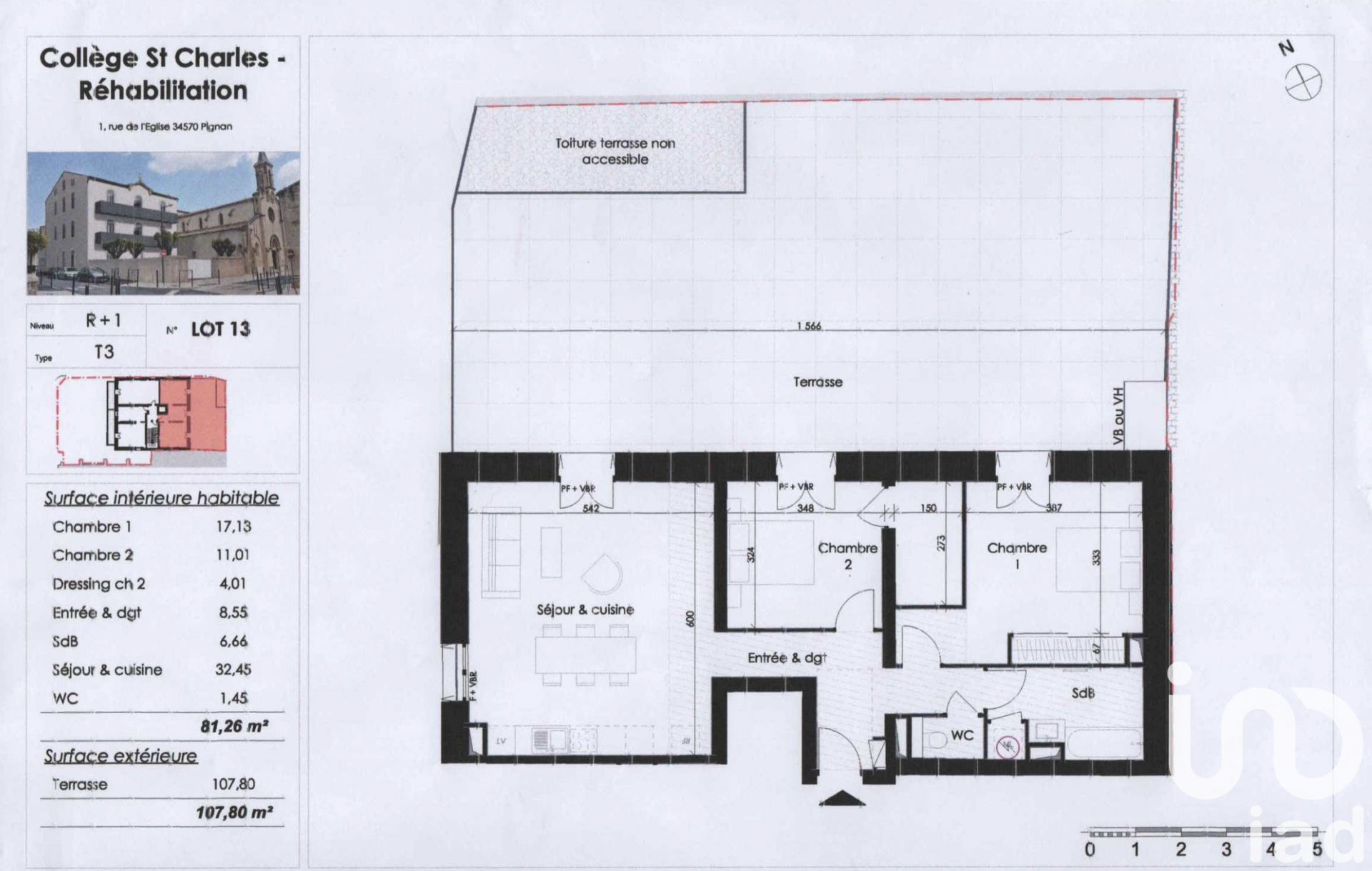
Vente Appartement 3 pièces

Iad France - Adrien Navarro vous propose : Au sein d'une superbe maison de maître, en plein cOEur du village de Pignan, pour les amateurs de vieilles pierres et d'histoire, ce grand T3 de 81 m² avec une hauteur sous plafond allant jusqu'à 3.5m sous plafond ainsi qu'une extraordinaire terrasse de 107 m². Le bien sera livré avec le gros OEuvre terminé, façade, huisseries double vitrage bois, terrasse, toiture. Il ne vous reste qu'à personnaliser votre intérieur. Pour cela, vous pouvez demander la réalisation des travaux suivant vos goûts, sols, peintures, salle d'eau, électricité, cuisine. prévoir un budget d'environ 65K€, devis disponible. Investissement locatif avec déficit foncier possible. Vous disposez également de deux emplacements de parking couvert ainsi que d'un local à vélo. Vous bénéficierez de la garantie décennale. La presente annonce immobiliere vise 3 lots situés dans une copropriété de 21 lots au total et ne faisant l'objet d'aucune procédure en cours citée à l'article L. 721-1 du code de la construction et de l'habitation. Montant moyen mensuel de charges déclaré par le vendeur : € par mois (soit € annuel). Honoraires d'agence à la charge du vendeur. Bien non soumis au DPE. Les informations sur les risques auxquels ce bien est exposé, y compris l'obligation légale de débroussaillement, sont disponibles sur le site Géorisques : http://www.georisques.gouv.fr. La présente annonce immobilière a été rédigée sous la responsabilité éditoriale de M Adrien Navarro mandataire indépendant en immobilier (sans détention de fonds), agent commercial de la SAS I@D France immatriculé au RSAC de MONTPELLIER sous le numéro 927590950, titulaire de la carte de démarchage immobilier pour le compte de la société I@D France SAS.

Détails de l'annonce

Localisation

Ville
Pignan
Pays
FR

Surfaces / Pièces / Composition

Nombre d’étages
3

Chauffage et diagnostics

Diagnostic de performance énergétique (DPE)
a
b
c
d
e
f
g
Indice d'émission de gaz à effet de serre (GES)
a
b
c
d
e
f
g
Rappelez-moi
Nos partenaires