Vente Maison traditionnelle 8 pièces
Type
Bien immobilierTarif
630 000 €Chambres
4Salles de bain
0Vente Maison traditionnelle 8 pièces
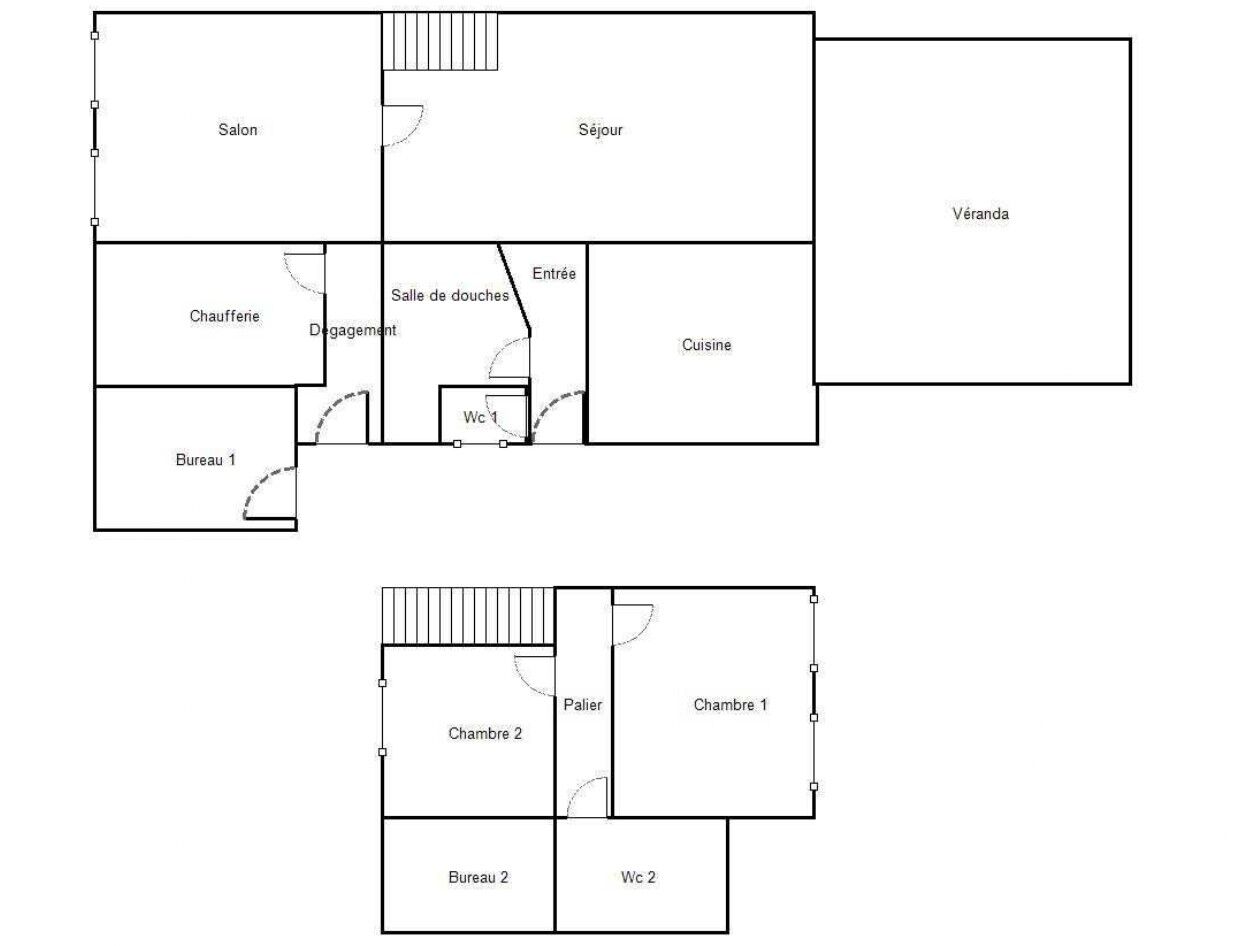
Iad France - Christine Gilles vous propose : RARE sur le secteur, découvrez cette belle et VASTE maison élevée sur SOUS-SOL TOTAL sur une parcelle paysagée de 1000 m². Au RDC, elle vous accueille par une entrée FONCTIONNELLE avec placard, une cuisine de qualité ACTUELLE ouverte aménagée et équipée, un séjour salon bénéficiant d'une BELLE EXPOSITION et équipé d'un POELE à granulés, un WC SUSPENDU avec lave mains et une CHAMBRE EN RDC avec sa SALLE DE DOUCHE attenante. Au premier étage : un palier avec ESPACE BUREAU distribue TROIS BELLES CHAMBRES, un DRESSING, un WC, et une SALLE DE BAINS plus DOUCHE avec grand PLACARD. Au SOUS-SOL, vous profiterez d'un espace BUANDERIE, d'une GRANDE PIECE CHAUFFEE et carrelée avec un ACCES EXTERIEUR, idéal pour une PROFESSION LIBERALE ou STUDIO INDEPENDANT ainsi qu'un GRAND GARAGE. À l'extérieur : une GRANDE TERRASSE, une PISCINE chauffée et enterrée, un POULAILLER, un ESPACE POTAGER et une CABANE de jardin pour enfants. Environnement CALME avec proximité des commodités tels que écoles, bus, gymnase et commerces. Envie d'en savoir plus, disponible 7j / 7 pour une visite ! Honoraires d'agence à la charge du vendeur. Information d'affichage énergétique sur ce bien : classe ENERGIE C indice 119 et classe CLIMAT C indice 15. Les informations sur les risques auxquels ce bien est exposé, y compris l'obligation légale de débroussaillement, sont disponibles sur le site Géorisques : http://www.georisques.gouv.fr. La présente annonce immobilière a été rédigée sous la responsabilité éditoriale de Mme Christine Gilles mandataire indépendant en immobilier (sans détention de fonds), agent commercial de la SAS I@D France immatriculé au RSAC de Melun sous le numéro 538 095 753, titulaire de la carte de démarchage immobilier pour le compte de la société I@D France SAS.
Détails de l'annonce
Localisation
Ville
Grisy-Suisnes
Pays
FR
Diagnostics / Énergie
Diagnostic DPE
119
Diagnostic GES
15
Surfaces / Pièces / Composition
Nombre d’étages
3
Chauffage et diagnostics
Diagnostic de performance énergétique (DPE)
a
b
c
d
e
f
g
Indice d'émission de gaz à effet de serre (GES)
a
b
c
d
e
f
g
