Vente Maison traditionnelle 5 pièces
Type
Bien immobilierTarif
299 000 €Chambres
3Salles de bain
0Vente Maison traditionnelle 5 pièces
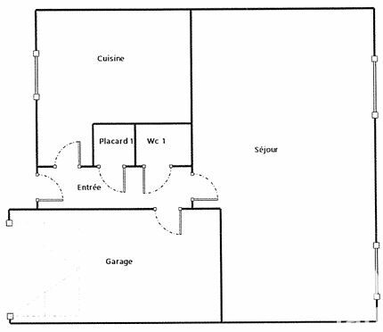
Iad france - mathieu giraudier vous propose : brie comte robert - exclusivité - très belle maison construite en 1997 de 5 pièces de 79,16 m² environ loi carrez (91,10 m² environ au sol ) - 3 chambres - garage - au calme - quartier résidentiel / pasteur - proche écoles - commerces. Elle comprend au rdc : une grande entrée avec placard - une cuisine séparée équipée et aménagée - un séjour très lumineux avec poêle a granulés donnant sur le jardin et terrasse avec store banne motorisé - un wc indépendant - un garage avec branchement buanderie. À l' étage : un beau palier - trois belles chambres - une salle d'eau avec meuble vasque - un wc indépendant. Espace jardin de 60 m² environ entièrement cloturé avec terrasse - une place de stationnement plus le garage. Les plus : volets roulants motorisés - pompe a chaleur air air - alarme - store banne motorisé - très belle prestation ! Très rare ! À visiter sans tarder ! Mandat exclusif iad france n°1875975. La presente annonce immobiliere vise 1 lot situé dans une copropriété de 22 lots au total et ne faisant l'objet d'aucune procédure en cours citée à l'article l. 721-1 du code de la construction et de l'habitation. Montant moyen mensuel de charges déclaré par le vendeur : 18.24€ par mois (soit 218.83 € annuel). Honoraires d'agence à la charge du vendeur. Information d'affichage énergétique sur ce bien : classe energie d indice 240 et classe climat b indice 7. Les informations sur les risques auxquels ce bien est exposé, y compris l'obligation légale de débroussaillement, sont disponibles sur le site géorisques : http://www.georisques.gouv.fr. la présente annonce immobilière a été rédigée sous la responsabilité éditoriale de m mathieu giraudier mandataire indépendant en immobilier (sans détention de fonds), agent commercial de la sas i@d france immatriculé au rsac de melun sous le numéro 840087860, titulaire de la carte de démarchage immobilier pour le compte de la société i@d france sas.
Détails de l'annonce
Localisation
Ville
Brie-Comte-Robert
Pays
FR
Diagnostics / Énergie
Diagnostic DPE
240
Diagnostic GES
7
Surfaces / Pièces / Composition
Nombre d’étages
2
Chauffage et diagnostics
Diagnostic de performance énergétique (DPE)
a
b
c
d
e
f
g
Indice d'émission de gaz à effet de serre (GES)
a
b
c
d
e
f
g
