Vente Appartement 3 pièces
Type
Bien immobilierTarif
215 000 €Chambres
2Salles de bain
0Vente Appartement 3 pièces
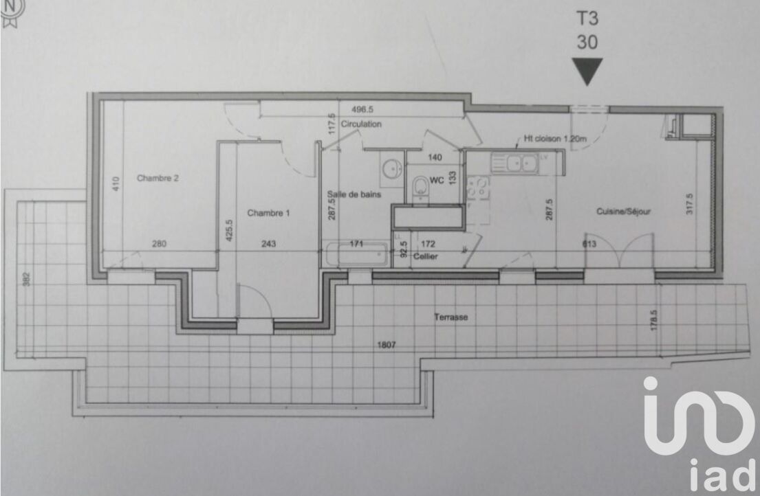
Iad France - Pauline Gleizal vous propose : T3 attique avec grande terrasse plein sud – Résidence récente – Centre Hôtel de Ville -St Priest En dernier étage d’une résidence récente (2016), sécurisée et bien tenue, à deux pas de la mairie de Saint-Priest, découvrez ce très bel appartement T3 de 61 m² en attique, offrant un cadre de vie lumineux, calme et confortable. Il se compose d’une belle pièce de vie avec cuisine ouverte de 23 m², d’un cellier, de deux chambres, d’une salle de bains et de WC séparés. L’espace de vie ainsi qu’une des chambres ouvrent sur une grande terrasse de 40 m² exposée plein sud, sans vis-à-vis, parfaitement exploitable pour les repas, détente ou aménagement paysager. Les atouts du bien : -Dernier étage / attique, calme et sans voisin au-dessus -Grande terrasse exposée sud, utilisable au quotidien -Résidence récente et sécurisée avec ascenseur -Climatisation + chauffage collectif au gaz -Box fermé en sous-sol en sus : 15 000 euros -Possibilité d’un second box fermé PMR en option -DPE C (bonne performance énergétique) Localisation idéale : Situé dans un quartier central et dynamique, l’appartement est à proximité immédiate de toutes les commodités : -À 2 minutes à pied du tram T2 (arrêt Hôtel de Ville) -Proximité immédiate de la mairie, des commerces, du marché et des écoles -Accès rapide aux grands axes routiers (A43 / Rocade Est) Ce bien conviendra aussi bien à un jeune couple, une petite famille, des actifs recherchant confort et accessibilité, qu’à un investisseur souhaitant sécuriser un placement patrimonial dans un secteur recherché et bien desservi. Ne manquez pas l'opportunité d’acquérir un attique moderne au cOEur de Saint-Priest ! Contactez-moi pour plus d’informations ou pour organiser une visite. La presente annonce immobiliere vise 2 lots situés dans une copropriété de 68 lots au total et ne faisant l'objet d'aucune procédure en cours citée à l'article L. 721-1 du code de la construction et de l'habitation. Montant moyen mensuel de charges déclaré par le vendeur : 140€ par mois (soit 1680 € annuel). Honoraires d'agence à la charge du vendeur. Information d'affichage énergétique sur ce bien : classe ENERGIE C indice 79 et classe CLIMAT C indice 14. Les informations sur les risques auxquels ce bien est exposé, y compris l'obligation légale de débroussaillement, sont disponibles sur le site Géorisques : http://www.georisques.gouv.fr. La présente annonce immobilière a été rédigée sous la responsabilité éditoriale de Mme Pauline Gleizal mandataire indépendant en immobilier (sans détention de fonds), agent commercial de la SAS I@D France immatriculé au RSAC de Lyon sous le numéro 980673115, titulaire de la carte de démarchage immobilier pour le compte de la société I@D France SAS.
Détails de l'annonce
Localisation
Ville
Saint-Priest
Pays
FR
Diagnostics / Énergie
Diagnostic DPE
79
Diagnostic GES
14
Surfaces / Pièces / Composition
Nombre d’étages
5
Étage
5
Chauffage et diagnostics
Diagnostic de performance énergétique (DPE)
a
b
c
d
e
f
g
Indice d'émission de gaz à effet de serre (GES)
a
b
c
d
e
f
g
