Adamville-Maison 5 pièces-3 chambres- Grande Terrasse-sous-sol-calme-proximité commerces, écoles, transports
Publié le 15 March 2026
Type
Bien immobilierTarif
695 000 €Chambres
3Salles de bain
1Adamville-Maison 5 pièces-3 chambres- Grande Terrasse-sous-sol-calme-proximité commerces, écoles, transports
Quartier d'Adamville, à 6mn à pied des commerces, du marché, à proximité des écoles, à 10 mn de la Mairie et 15 mn du RER A Le Parc De Saint-Maur, au calme d'une petite rue discrète, découvrez cette charmante maison offrant de beaux volumes et un cadre de vie privilégié, véritable cocon à l'abri des regards.
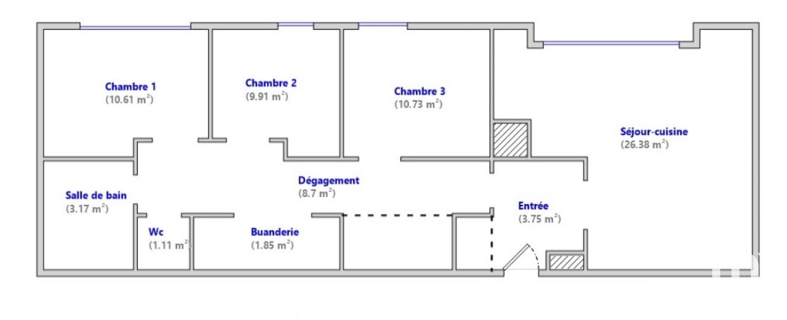
Édifiée sur trois niveaux, d'une surface de 130 m2 au sol, 116 m2 pondérés et 104 m2 habitables, la maison s'ouvre au rez-de-chaussée sur un superbe double séjour de 38 m², parfait pour recevoir.
Un espace douche avec wc complète ce niveau.
Quelques marches et se dévoile une spacieuse cuisine de 28 m², véritable lieu de convivialité.
Vous profiterez également d'un espace chambre avec dressing, à ce niveau.
Au premier étage, la maison vous offre un second espace nuit composé de deux chambres ainsi que d'une salle de bains avec WC.
A ce niveau, vous serez également séduits par une spacieuse terrasse de 23 m², véritable pièce de vie supplémentaire, offrant une vue totalement dégagée.
La maison bénéficie d'un sous-sol de 30 m2, comprenant un espace chaufferie et une pièce de 17 m² pouvant être aménagée selon vos besoins : chambre d'appoint, bureau, salle de jeux, atelier ou espace de stockage.
De véritables atouts pour cette demeure :
• Quartier très recherché
• Proximité des commerces, commodités, écoles, transports
• Grande terrasse avec vue dégagée
• Beaux volumes de réception
• Sous-sol offrant de nombreuses possibilités
• Environnement calme
Une maison coup de coeur, chaleureuse, idéale pour une famille à la recherche de calme, d'intimité, d'espace et de proximité avec toutes les commodités.
Je vous laisse découvrir en images et me contacter pour organiser votre venue.
A bientôt !
Les honoraires sont à la charge du vendeur.
Logement à consommation énergétique excessive : classe F
Les informations sur les risques auxquels ce bien est exposé sont disponibles sur le site Géorisques : www. georisques. gouv. fr.
Réseau Immobilier CAPIFRANCE - Votre agent commercial (RSAC N°504 529 082 - Greffe de CRETEIL) Virginie DE FRANCOLINI Entrepreneur Individuel 06 74 21 18 18 - Réf.944857
Cette semaine
Cette annonce est récente
À proximité
Recherche des commodités à proximité...
Détails de l'annonce
Finances / Mandat / Références
Charges
€
Localisation
Ville
Saint Maur Des Fosses
Pays
France
Surfaces / Pièces / Composition
Surface habitable
116 m²
Nombre de pièces
5
Nombre de chambres
3
Caractéristiques / Équipements
Ascenseur
Digicode
Interphone
Piscine
Diagnostics / Énergie
Diagnostic DPE
F
Diagnostic GES
F
Chauffage / Énergie
Type de chauffage
Énergie : gaz
Cuisine
Type de cuisine
aménagée
Chauffage et diagnostics
Diagnostic de performance énergétique (DPE)
a
b
c
d
e
f
g
Indice d'émission de gaz à effet de serre (GES)
a
b
c
d
e
f
g
