Maison à vendre 5 pièces proche de VARENNES SAINT SAUVEUR (71)
Publié le 16 March 2026
Type
Bien immobilierTarif
333 000 €Chambres
3Salles de bain
1Maison à vendre 5 pièces proche de VARENNES SAINT SAUVEUR (71)
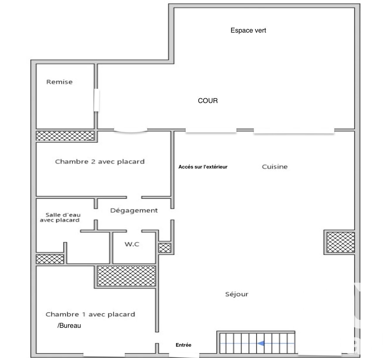
POTENTIEL ENORME pour ce corps de ferme rénové de 130 m2 habitables pour l'instant ! Parcelle 8000 m2
Avec 160 m2 de Grenier aménageable et son Garage de 40 m2
ET EN PLUS : un deuxième bâtiment vous attend avec 288 m2 d'espaces (dalles et toiture 4 ans)
Les possibilités sont multiples (GÎTES, CHAMBRES D'HÔTES, activité professionnelle, garages...)
PLUS DE PHOTOS SUR MON SITE :
https://xavier-nivault.capifrance.fr/fr
Idéalement située au CALME avec sa vue dégagée, à 5 minutes de VARENNES SAINT SAUVEUR, 7 minutes de SAINT AMOUR, 20 minutes de MONTREVEL EN BRESSE et LOUHANS, 30 minutes de BOURG EN BRESSE, et à 1h20 seulement de LYON, proche axe autoroute A 39.
Dès l'entrée, vous retrouvez le CHARME des poutres avec un séjour LUMINEUX agrémenté d'une belle cheminée ouverte et offrant une vue totalement dégagée sur le terrain. Vous trouverez aussi une cuisine entièrement équipée.
Vous disposez également de 3 chambres dont une Suite parentale avec dressing et salle d'eau ainsi qu'une salle de bain et d'une buanderie bien fonctionnelle.
A l'extérieur, vous êtes comblés par le CHARME et les ESPACES. Une belle cuisine d'été agrémente ces deux bâtiments, ainsi qu'un puit fonctionnel et un parc de 8000 m2, le tout sans vis-à-vis.
Vous bénéficiez également de tout le CONFORT : Isolation de qualité, Double Vitrage Argon, Volets roulants Solaires, Poêle à granulés avec diffuseur, Tafe foncière faible, ...
Pour en savoir plus, appelez moi au 06 48 32 69 00 Les honoraires sont à la charge du vendeur.
Les informations sur les risques auxquels ce bien est exposé sont disponibles sur le site Géorisques : www. georisques. gouv. fr.
Réseau Immobilier CAPIFRANCE - Votre agent commercial (RSAC N°885 384 198 - Greffe de BOURG EN BRESSE) Xavier NIVAULT Entrepreneur Individuel 06 48 32 69 00 - Réf.927638
Cette semaine
Cette annonce est récente
À proximité
Recherche des commodités à proximité...
Détails de l'annonce
Finances / Mandat / Références
Charges
€
Localisation
Ville
Varennes Saint Sauveur
Pays
France
Surfaces / Pièces / Composition
Surface habitable
130 m²
Nombre de pièces
5
Nombre de chambres
3
Caractéristiques / Équipements
Ascenseur
Digicode
Interphone
Piscine
Diagnostics / Énergie
Diagnostic DPE
C
Diagnostic GES
A
Chauffage / Énergie
Type de chauffage
Énergie : granulés
Cuisine
Type de cuisine
aménagée
Chauffage et diagnostics
Diagnostic de performance énergétique (DPE)
a
b
c
d
e
f
g
Indice d'émission de gaz à effet de serre (GES)
a
b
c
d
e
f
g
