Maison Gemozac - 115 m2 - 2 chb - studio - piscine - dépendance PRIX 228 778 HAI
Publié le 2 March 2026
Type
Bien immobilierTarif
228 778 €Chambres
3Salles de bain
1Maison Gemozac - 115 m2 - 2 chb - studio - piscine - dépendance PRIX 228 778 HAI
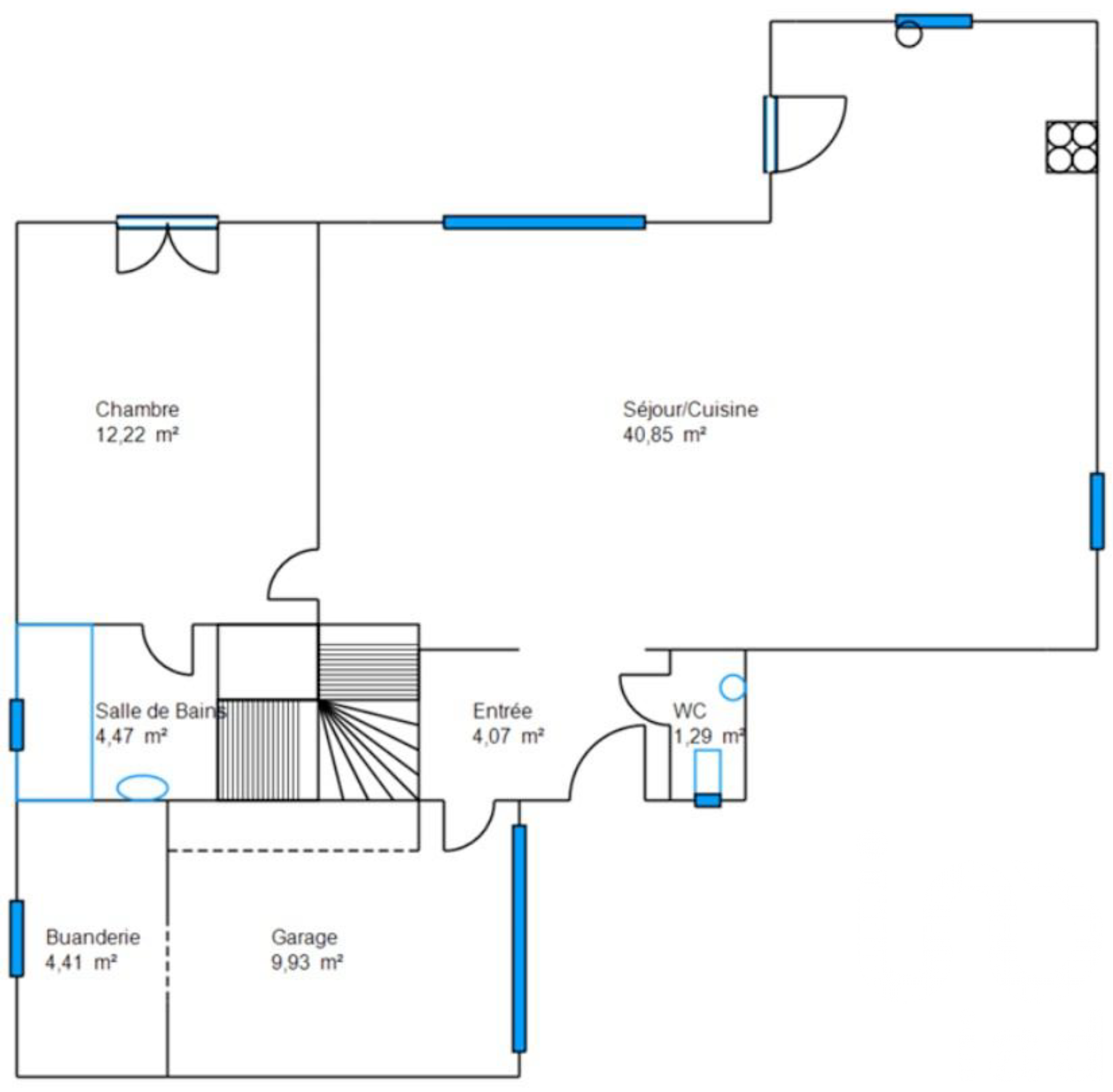
Situé proche de Gémozac dans une petite commune au calme avec école primaire.
Maison d'environ 115m2 comprenant au RDC une entrée sur une belle pièce de vie avec cuisine aménagée ouverte, une salle bains, WC.
Etage : palier desservant deux grandes chambres, une salle d'eau avec WC à rénovée.
Fenêtres PVC double vitrage, chauffage poêle à granulés, assainissement fosses toutes eaux de 2024 aux NORMES.
A l'extérieur : un studio neuf offrant une troisième chambre indépendante comprenant un espace de vie, une salle d'eau / WC, une buanderie.
Deux autres dépendances attenantes offres plusieurs possibilités d'agrandissement.
Un atelier de jardin avec local piscine vient compléter les dépendances.
Jardin d'environ 4005m2 dont 1700m2 environ clos et arboré offrant une terrasse, piscine clôturée de 5x10 à rénovée.
Venez visiter sans plus tarder
PRIX : 228 778 euros dont 3.99% d'honoraires inclus à la charge de l'acquéreur (soit 8 778euros), soir 220 000 euros hors honoraires.
DPE D GES B
Montant estimé des dépenses annuelles d'énergie pour un usage standard entre 2150 euros et 2930 euros indexées aux années 2021, 2022 et 2023 (ou 2021 uniquement) (si logement F ou G 'Logement à consommation énergétique excessive : classe F ou G')
Les informations sur les risques auxquels ce bien est exposé sont disponibles sur le site Géorisques : www.georisques.gouv.fr
Pour visiter et vous accompagner dans votre projet, contactez Romain SCLISSON, au 0667824812 ou, par courriel à r.sclisson@proprietes-privees.com.
Selon l'article L.561.5 du Code Monétaire et Financier, pour l'organisation de la visite, la présentation d'une pièce d'identité vous sera demandée.
Cette présente annonce a été rédigée sous la responsabilité éditoriale de Romain SCLISSON agissant sous le statut d'agent commercial immatriculé au RSAC 881433098 RSAC Saintes auprès de SAS PROPRIETES PRIVEES, au capital de 44 920 euros, ZAC LE CHÊNE FERRÉ - 44 ALLÉE DES CINQ CONTINENTS 44120 VERTOU; SIRET 487 624 777 00040, RCS Nantes. Carte Professionnelle Transactions sur immeubles et fonds de commerce (T) et Gestion immobilière (G) n°CPI 4401 2016 000 010 388 délivrée par la CCI Nantes - Saint Nazaire. Compte séquestre n°30932508467 BPA SAINT-SEBASTIEN-SUR-LOIRE (44230). Garantie GALIAN-SMABTP - 89 rue de la Boétie, 75008 Paris - n°28137 J pour 2 000 000 euros pour T et 120 000 euros pour G. Assurance responsabilité civile professionnelle par GALIAN-SMABTP n° de police 28137.J
Mandat réf : 440237 RSCL- Le professionnel garantit et sécurise votre projet immobilier. (3.99 % honoraires TTC à la charge de l'acquéreur.)
Romain SCLISSON (EI) Agent Commercial - Numéro RSAC : 881433098 RSAC Saintes - .
Ce mois
Cette annonce est récente
À proximité
Recherche des commodités à proximité...
Détails de l'annonce
Finances / Mandat / Références
Charges
€
Localisation
Ville
Gemozac
Pays
France
Surfaces / Pièces / Composition
Surface habitable
115 m²
Nombre de pièces
4
Nombre de chambres
3
Caractéristiques / Équipements
Ascenseur
Digicode
Interphone
Meublé
Nombre de parkings
Gardien
Aménagement handicapés
Diagnostics / Énergie
Diagnostic DPE
D
Diagnostic GES
B
Chauffage / Énergie
Type de chauffage
Type : individuel
Cuisine
Type de cuisine
aménagée
Chauffage et diagnostics
Diagnostic de performance énergétique (DPE)
a
b
c
d
e
f
g
Indice d'émission de gaz à effet de serre (GES)
a
b
c
d
e
f
g
