Vente Maison/villa 7 pièces
Type
Bien immobilierTarif
239 000 €Chambres
5Salles de bain
0Vente Maison/villa 7 pièces
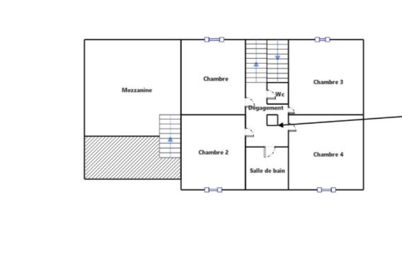
Iad France - Nathalie ANQUET vous propose : Maison à Saint-Alban – 5 chambres Proche commerces à pied, environnement calme. Située dans un quartier paisible de Saint-Alban, à deux pas des commerces, cette maison offre un cadre de vie pratique et serein. Édifiée sur un terrain clos, elle se compose au rez-de-chaussée d’une entrée desservant un séjour chaleureux équipé d’un poêle à granulés, une cuisine aménagée, une chambre, une pièce atelier, une salle d’eau et des WC. À l’étage, un palier dessert quatre chambres confortables, une seconde salle d’eau ainsi que des toilettes séparées. La toiture a été refaite en 2016 et les fenêtres changées en 2012, vous garantissant une bonne performance énergétique et un confort optimal. Une maison fonctionnelle, idéale pour accueillir votre famille, dans un environnement calme tout en étant proche des commodités à pied. Pour organiser une visite ou obtenir plus d’informations, contactez-moi directement par téléphone. Honoraires d'agence à la charge du vendeur. Information d'affichage énergétique sur ce bien : classe ENERGIE D indice 228 et classe CLIMAT D indice 38. Les informations sur les risques auxquels ce bien est exposé, y compris l'obligation légale de débroussaillement, sont disponibles sur le site Géorisques : http://www.georisques.gouv.fr. La présente annonce immobilière a été rédigée sous la responsabilité éditoriale de Mme Nathalie ANQUET mandataire indépendant en immobilier (sans détention de fonds), agent commercial de la SAS I@D France immatriculé au RSAC de SAINT BRIEUC sous le numéro 413164591, titulaire de la carte de démarchage immobilier pour le compte de la société I@D France SAS.
Détails de l'annonce
Localisation
Ville
Saint-Alban
Pays
FR
Diagnostics / Énergie
Diagnostic DPE
228
Diagnostic GES
38
Chauffage et diagnostics
Diagnostic de performance énergétique (DPE)
a
b
c
d
e
f
g
Indice d'émission de gaz à effet de serre (GES)
a
b
c
d
e
f
g
