Vente Terrain à bâtir 679 m²
Type
Bien immobilierTarif
235 000 €Chambres
0Salles de bain
0Vente Terrain à bâtir 679 m²
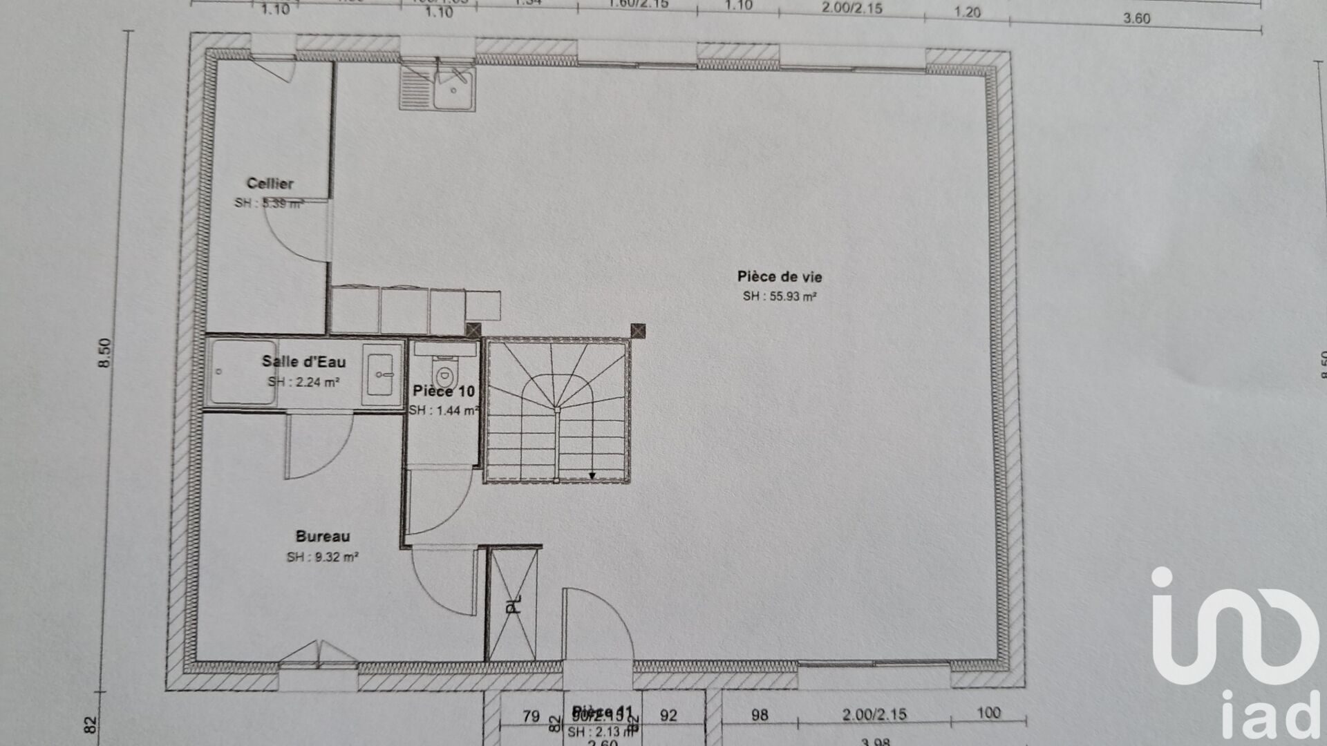
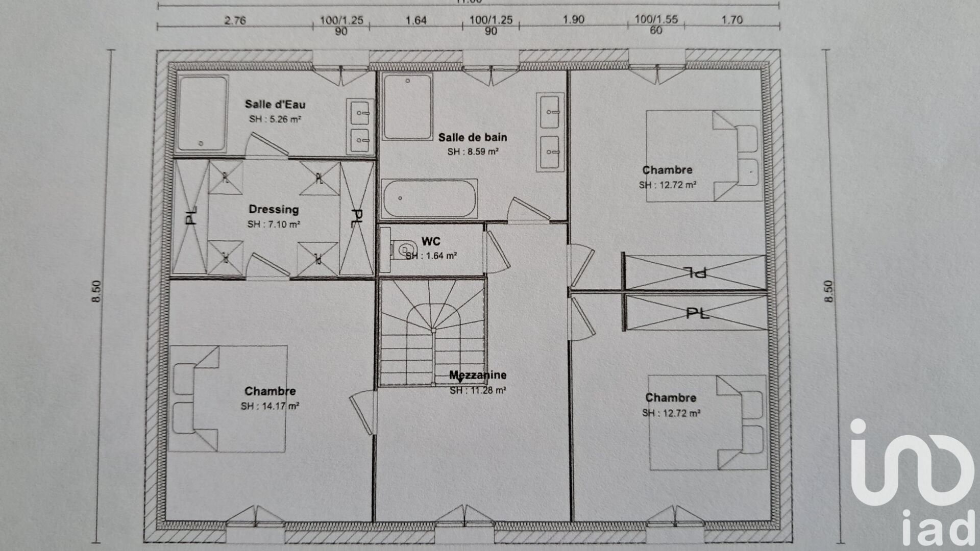
Iad France - Frédéric Auvray vous propose : Terrain constructible d'environ 680 m² dans un quartier prisé de Gometz le chatel avec une vue à couper le souffle. Vous pourrez profiter d'une vue sur la vallée sans vis à vis. À 15 minutes à pied de la gare 'La Hacquinière'. Possibilité de construction de 147 m² habitable, R + R+1 + un sous-sol total de 80 m²). Projet vraiment pour toutes ambitions. Je vous joins des plans crédibles d'une projection d'aménagement des 3 niveaux. Construisez votre avenir où le cadre de vie y est paisible. Pour plus d'informations, votre conseiller est joignable 7 jours / 7 pour toutes questions et prises de rendez-vous. Honoraires d'agence à la charge du vendeur. Bien non soumis au DPE. Les informations sur les risques auxquels ce bien est exposé, y compris l'obligation légale de débroussaillement, sont disponibles sur le site Géorisques : http://www.georisques.gouv.fr. La présente annonce immobilière a été rédigée sous la responsabilité éditoriale de M Frédéric Auvray mandataire indépendant en immobilier (sans détention de fonds), agent commercial de la SAS I@D France immatriculé au RSAC de EVRY sous le numéro 820 192 953, titulaire de la carte de démarchage immobilier pour le compte de la société I@D France SAS.
Détails de l'annonce
Localisation
Ville
Gometz-le-Châtel
Pays
FR
Surfaces / Pièces / Composition
Nombre d’étages
Chauffage et diagnostics
Diagnostic de performance énergétique (DPE)
a
b
c
d
e
f
g
Indice d'émission de gaz à effet de serre (GES)
a
b
c
d
e
f
g
