Maison 5 pièces 140 m2
Type
Bien immobilierTarif
168 000 €Chambres
4Salles de bain
2Maison 5 pièces 140 m2
-- OPPORTUNITE A SAISIR ! --
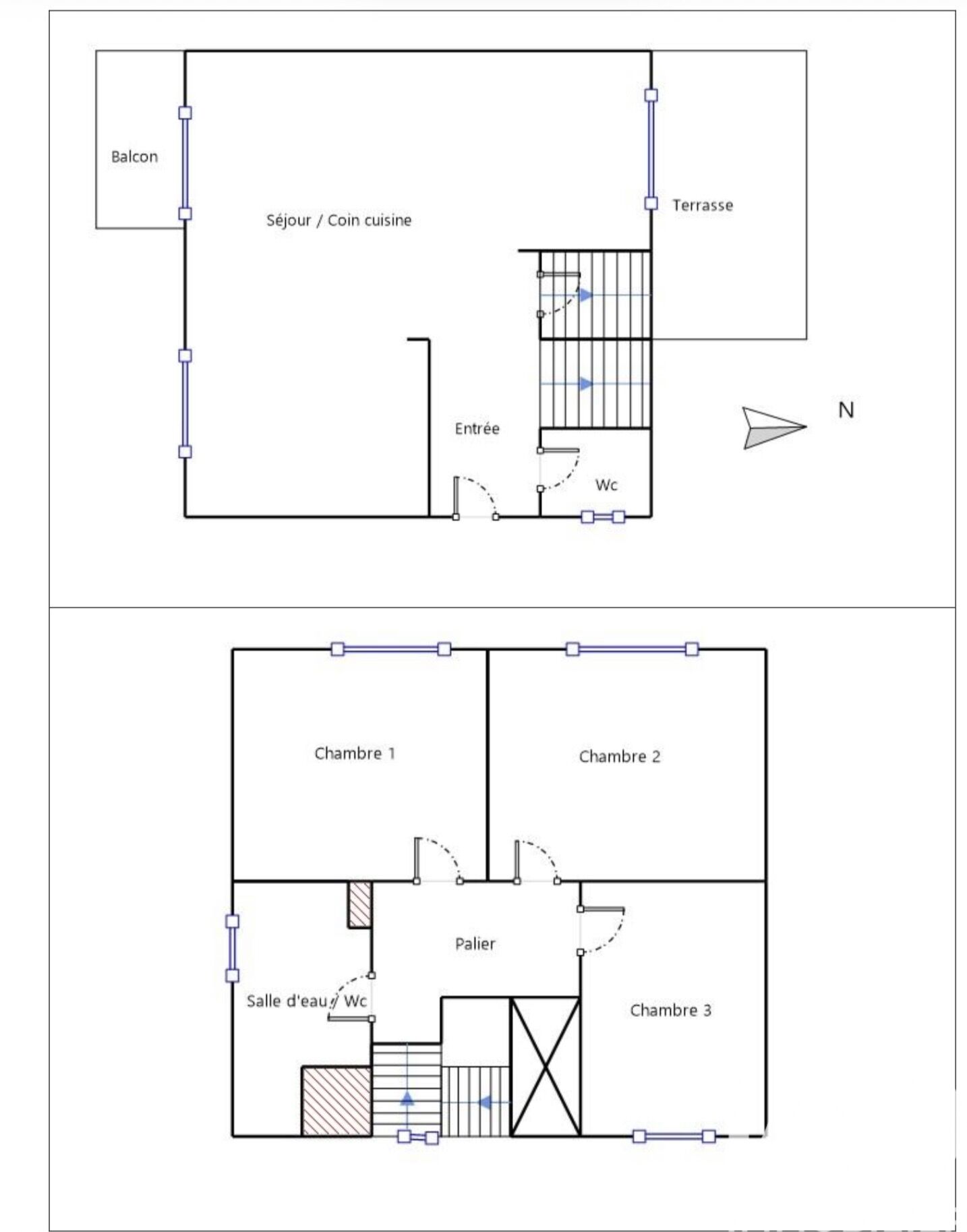
A proximité du centre ville de Bais, à 36 minutes du centre Alma de Rennes et à 12 minutes de la 4 voies Rennes / Angers, venez découvrir cette maison à étage d'une surface habitable d'environ 140 m2 composée au rez-de-chaussée , d'une entrée desservant un beau salon d'environ 30 m², avec sa cheminée à insert, une cuisine attenante, un cellier, un wc ainsi que deux belles chambres dont une de plus de 20 m² et une salle de bain.
L'étage vous propose deux superbes chambres lumineuses d'environ 20m², une salle d'eau avec wc intégré.
L'extérieur cloturé vous propose, un jardin avec sa terrasse pour des repas en famille ou entre amis ainsi qu'une dépendance.
Deux emplacements pour voitures sont également à votre disposition.
ATOUTS :
- Volumes généreux
- 4 Chambres spacieuses
- 2 Salles de bains
- Proche des commodités
- Idéal pour primo accédant
- Proche de l'entrée de Rennes
Une visite s'impose, Contactez moi !
Pour visiter et vous accompagner dans votre projet, contactez Nadia LAVENNE, au 0627605851 ou, par courriel à n.lavenne@proprietes-privees.com.
Selon l'article L.561.5 du Code Monétaire et Financier, pour l'organisation de la visite, la présentation d'une pièce d'identité vous sera demandée.
Cette présente annonce a été rédigée sous la responsabilité éditoriale de Nadia LAVENNE agissant sous le statut d'agent commercial immatriculé au RSAC NANTES 414 870 204 auprès de SAS PROPRIETES PRIVEES, au capital de 44 920 euros, ZAC LE CHÊNE FERRÉ - 44 ALLÉE DES CINQ CONTINENTS 44120 VERTOU; SIRET 487 624 777 00040, RCS Nantes. Carte Professionnelle Transactions sur immeubles et fonds de commerce (T) et Gestion immobilière (G) n°CPI 4401 2016 000 010 388 délivrée par la CCI Nantes - Saint Nazaire. Compte séquestre n°30932508467 BPA SAINT-SEBASTIEN-SUR-LOIRE (44230). Garantie GALIAN-SMABTP - 89 rue de la Boétie, 75008 Paris - n°28137 J pour 2 000 000 euros pour T et 120 000 euros pour G. Assurance responsabilité civile professionnelle par GALIAN-SMABTP n° de police 28137.
DPE : E GES : B
Montant estimé des dépenses annuelles d'énergie pour un usage standard : entre 2140 euros et 2960 euros par an. Prix moyens des énergies indexés sur l'année 2021 (abonnements compris)
Le prix indiqué comprend les honoraires à la charge de l'acheteur : 5% TTC du prix du bien hors honoraires soit 8 000 euros
Prix hors honoraires : 160 000 euros
Les informations sur les risques auxquels ce bien est exposé sont disponibles sur le site Géorisques : www. georisques. gouv. fr (5.00 % honoraires TTC à la charge de l'acquéreur.)
Nadia LAVENNE (EI) Agent Commercial - Numéro RSAC : NANTES 414 870 204 - .
Détails de l'annonce
Finances / Mandat / Références
Charges
€
Localisation
Ville
Bais
Pays
France
Surfaces / Pièces / Composition
Surface habitable
140 m²
Caractéristiques / Équipements
Ascenseur
Digicode
Interphone
Diagnostics / Énergie
Diagnostic DPE
E
Diagnostic GES
B
Chauffage et diagnostics
Diagnostic de performance énergétique (DPE)
a
b
c
d
e
f
g
Indice d'émission de gaz à effet de serre (GES)
a
b
c
d
e
f
g
