SANARY SUR MER - Les Genêts d'or - A 12 Minutes à pied de la plage de la Gorguette - Au calme absolu - Villa coup de coeur 5 pièces
Publié le 14 March 2026
Type
Bien immobilierTarif
859 000 €Chambres
3Salles de bain
0SANARY SUR MER - Les Genêts d'or - A 12 Minutes à pied de la plage de la Gorguette - Au calme absolu - Villa coup de coeur 5 pièces
Découvrez une opportunité unique au coeur d'un quartier résidentiel de Sanary sur mer "les Genêts d'or". Cette maison située au fond d'impasse et au calme absolu offre un cadre de vie paisible et agréable.
Emplacement idéal, à 12 minutes à pied de la plage de la Gorguette et à 5 minutes en voiture du centre ville de Sanary sur Mer et de Bandol.
Votre conseillère en immobilier Karine Garcia a le plaisir de vous présenter cette villa parfaitement entretenue par les Maîtres des lieux, travaux récents effectués pour un maximum de confort à vous offrir.
LA VILLA :
Construction de 1993 d'une superficie d'environ 176 M2 habitables sur sous-sol ( 35 M2) / vide sanitaire (65 M²) et cave, édifiée sur un terrain de 524 M2, arboré d'essences méditerranéennes avec pelouse synthétique nécessitant très peu d'entretien.
Un coin intime avec un jacuzzi vous attend également pour profiter des moments de détente en famille et amis.
Dès l'entrée vous serez séduits par les volumes des pièces de vie, baignées de lumière grâce à de larges ouvertures sur l'extérieur.
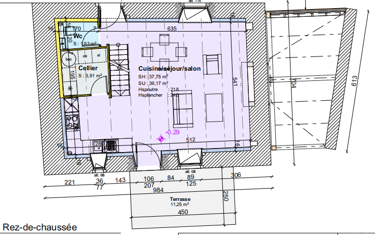
Le salon, la salle à manger et la cuisine forment un ensemble convivial où chacun peut profiter d'un réel confort, avec des espaces généreux et une atmosphère chaleureuse, parfaite pour ceux qui aiment recevoir.
Cet espace de vie se distingue par un vaste salon d'une superficie d'environ 45 M² , une cuisine américaine moderne entièrement aménagée et équipée, et une véranda d'une superficie de 33 M² le tout ouvrant par des grandes baies vitrées sur une terrasse en bois sans aucun vis à vis et exposée Sud-Est.
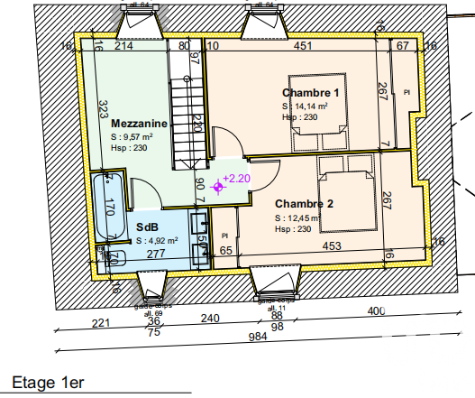
Toujours au Rez de Chaussée, vous y trouverez 2 grandes chambres, 1 salle d'eau, 1 WC indépendant, un coin bureau ainsi que de nombreux rangements.
A l' étage, l'espace nuit se compose d'1 chambre avec son bureau attenant le tout d'une superficie d'environ 27 M2, avec une vue extrêmement dégagée, aperçu mer. Cet étage bénéficie également d'une salle d'eau et un WC indépendant.
Avec ses nombreuses chambres et ses espaces, cette maison permet d'héberger famille et amis sans le moindre compromis sur l'intimité et le bien-être.
Un lieu rare, idéal pour ceux qui recherchent à la fois la tranquillité, la proximité de la mer et de grands espaces.
A découvrir sans tarder !
Le plus de cette maison :
- Pour vos véhicules, grande allée avec au moins quatre places de parking à l'intérieur de la propriété. - Portail et portillon à fermeture électrique avec visiophone
- climatisation réversible dans toute la maison, ainsi qu'un poêle à granule installé en Novembre 2025 dans la pièce de vie.
- peintures neuves faites par un professionnel
- le jardin avec pelouse synthétique, terrasse en bois exotique et palissades neuves. (2023) - Grands stores bannes neufs de 2023
- Jacuzzi neuf de 2022 (6 personnes)
Disponible 7J/7, je reste à votre disposition pour vous apporter plus de renseignements sur ce bien et programmer une visite.
DPE C : (132) GES (4)
Montant estimé des dépenses annuelles d'énergie pour un usage standard entre .1710 euros et 2380 euros indexées aux années 2021, 2022 et 2023 .
Pour visiter et vous accompagner dans votre projet, contactez Karine GARCIA, au 0628562608 ou, par courriel à k.garcia@proprietes-privees.com.
Selon l'article L.561.5 du Code Monétaire et Financier, pour l'organisation de la visite, la présentation d'une pièce d'identité vous sera demandée.
Cette présente annonce a été rédigée sous la responsabilité éditoriale de Karine GARCIA agissant sous le statut d'agent commercial immatriculé au RSAC TOULON 898 858 543 auprès de SAS PROPRIETES PRIVEES, au capital de 44 920 euros, ZAC LE CHÊNE FERRÉ - 44 ALLÉE DES CINQ CONTINENTS 44120 VERTOU; SIRET 487 624 777 00040, RCS Nantes. Carte Professionnelle Transactions sur immeubles et fonds de commerce (T) et Gestion immobilière (G) n°CPI 4401 2016 000 010 388 délivrée par la CCI Nantes - Saint Nazaire. Compte séquestre n°30932508467 BPA SAINT-SEBASTIEN-SUR-LOIRE (44230). Garantie GALIAN-SMABTP - 89 rue de la Boétie, 75008 Paris - n°28137 J pour 2 000 000 euros pour T et 120 000 euros pour G. Assurance responsabilité civile professionnelle par GALIAN-SMABTP n° de police 28137.J
Mandat réf : 431890 - Le professionnel garantit et sécurise votre projet immobilier.
Karine GARCIA (EI) Agent Commercial - Numéro RSAC : TOULON 898 858 543 - .
Les informations sur les risques auxquels ce bien est exposé sont disponibles sur le site Géorisques : www. georisques. gouv. fr
Cette semaine
Cette annonce est récente
À proximité
Recherche des commodités à proximité...
Détails de l'annonce
Finances / Mandat / Références
Charges
€
Localisation
Ville
Sanary Sur Mer
Pays
France
Surfaces / Pièces / Composition
Surface habitable
176 m²
Caractéristiques / Équipements
Ascenseur
Digicode
Interphone
Diagnostics / Énergie
Diagnostic DPE
C
Diagnostic GES
A
Chauffage et diagnostics
Diagnostic de performance énergétique (DPE)
a
b
c
d
e
f
g
Indice d'émission de gaz à effet de serre (GES)
a
b
c
d
e
f
g
