Vente Appartement 2 pièces
Type
Bien immobilierTarif
76 500 €Chambres
1Salles de bain
0Vente Appartement 2 pièces
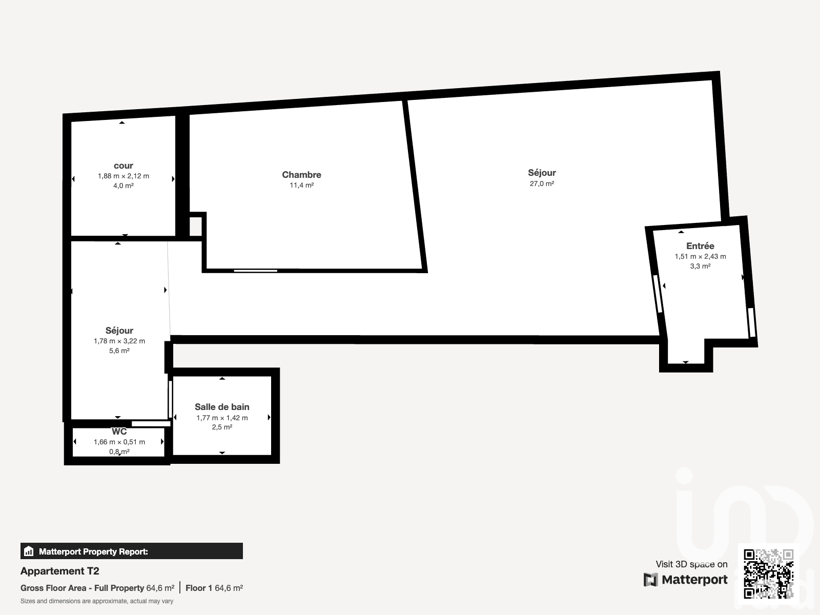
Iad France - Amandine Carroué vous propose : Idéalement situé au cOEur du centre-ville d’Auxerre, ce bel appartement, anciennement utilisé à des fins commerciales, vous séduira par son caractère et son emplacement privilégié. Accessible de plain-pied via une entrée privative, il se compose d’un spacieux séjour lumineux agrémenté d’un parquet en chêne, d’une chambre avec dressing donnant accès directement à une charmante cour intérieure sans vis-à-vis, ainsi que d’une cuisine aménagée ouverte sur l’extérieur. Vous trouverez également une salle d’eau équipée d’un meuble vasque, ainsi qu’un WC séparé. Proche de tous les commerces, services et parkings publics, ce bien rare en centre-ville conviendra aussi bien à une résidence principale qu’à un investissement locatif. Visite virtuelle disponible Étude locative clé en main possible sur demande, après échange téléphonique Pour plus d’informations ou pour organiser une visite, n’hésitez pas à me contacter. La presente annonce immobiliere vise 1 lot situé dans une copropriété de 66 lots au total et ne faisant l'objet d'aucune procédure en cours citée à l'article L. 721-1 du code de la construction et de l'habitation. Montant moyen mensuel de charges déclaré par le vendeur : 45€ par mois (soit 540 € annuel). Honoraires d'agence à la charge du vendeur. Information d'affichage énergétique sur ce bien : classe ENERGIE F indice 354 et classe CLIMAT C indice 11. Les informations sur les risques auxquels ce bien est exposé, y compris l'obligation légale de débroussaillement, sont disponibles sur le site Géorisques : http://www.georisques.gouv.fr. La présente annonce immobilière a été rédigée sous la responsabilité éditoriale de Mme Amandine Carroué mandataire indépendant en immobilier (sans détention de fonds), agent commercial de la SAS I@D France immatriculé au RSAC de AUXERRE sous le numéro 988140711, titulaire de la carte de démarchage immobilier pour le compte de la société I@D France SAS.
Détails de l'annonce
Localisation
Ville
Auxerre
Pays
FR
Diagnostics / Énergie
Diagnostic DPE
354
Diagnostic GES
11
Surfaces / Pièces / Composition
Nombre d’étages
4
Chauffage et diagnostics
Diagnostic de performance énergétique (DPE)
a
b
c
d
e
f
g
Indice d'émission de gaz à effet de serre (GES)
a
b
c
d
e
f
g
