Trouver...

Language: FR

Devise: EUR

Type
Bien immobilier
Tarif
2 150 000 €
Chambres
6
Salles de bain
0

Vente Maison/villa 10 pièces

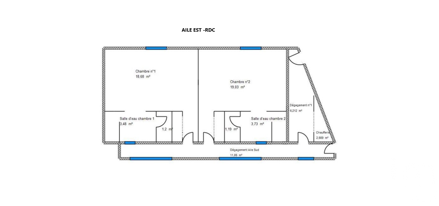
Iad france - katia labat vous propose : et si ce que vous cherchiez, ce n’était pas une maison… mais un art de vivre a la provençale, entre collines, lumière et douceur du sud ? À 30 minutes de l’aéroport de nice ou 35 min de la croisette, à 20 minutes d’antibes, ou à 1h de monaco… bienvenue là où la côte d’azur flirte avec la nature et où chaque jour ressemble à des vacances. Ici, vous ne trouverez pas simplement une maison, mais un lieu de vie généreux de 332 m², sans vis-à-vis, où l’on savoure l’espace, et le calme absolu. Toutes les pièces s’ouvrent sur un jardin lumineux et une magnifique piscine exposés plein sud. Ambiance hôtel 5 étoiles assurée ! Mais ici, le seul réveil, c’est le chant des oiseaux. Et parce que le vrai luxe, c’est aussi l’autonomie : chacune des 6 chambres est équipée de sa salle de bains / douche privée. Laissez-vous guider. Le bâtiment principal accueille un vaste espace semi-ouvert de près de 100 m² baigné de lumière, entre l’entrée, le salon, la salle à manger et la cuisine. À l’étage, place au confort avec une chambre de 25 m², une suite parentale de 65 m² avec salon-bureau, et un dressing qui ferait pâlir d’envie julia roberts ! C’est un tres bel espace, où il fait bon commencer ou finir ses journées en douceur, avec un oeil qu’on aime glisser vers l’eau transparente de la piscine. Les deux ailes symétriques, composées de deux chambres de 19 m² chacune, avec salle de douche et wc privés, disposent d’une entrée indépendante possible et assurent une totale autonomie à leurs occupants. Cette magnifique propriété a eu plusieurs vies, dont celle de maison d’hôtes et on comprend facilement pourquoi : l’intimité de chacun est respectée, et la maison respire la convivialité. Cette distribution est également idéale, pour une famille nombreuse, envisager de la location saisonnière, ou une résidence secondaire. Côté confort & prestations : toutes les pièces sont climatisées, les fenêtres en double vitrage, et c’est une construction anti-sismique, une façade sans fissure, ça rassure ! Et pour dormir sur ses deux oreilles : une alarme veille pendant que vous rêvez. Que vous rouliez en cabriolet, en suv ou en silence : garage fermé (65 + 35 m²) pour 6 voitures, carport pour 2, et borne de recharge électrique pour les plus branchés. Au niveau des extérieurs ? Tout est prévu pour que la vie soit douce… et un peu sportive aussi. Au coeur des 7000 m² de terrain, vous profiterez : -d’une piscine au sel chauffée de 5m x 10 m, pour enchaîner les longueurs le matin… ou faire la planche, bercé par le chant des cigales, chacun son rythme. -d’un putting green synthétique et d’une cage de practice, pour s’entraîner avant de filer au golf. Le prestigieux golf de la grande bastide est à moins d’une minute en voiture, et celui d’opio / valbonne à 5 min ! -d’un terrain de pétanque avec son coin bar, pour refaire le monde autour d’un rosé bien frais. D’un potager, d’un poulailler, de cerisiers, oliviers, figuier à figues blanches et raisin-framboise sur la pergola, parce que l’élégance passe aussi par les plaisirs simples. Ah j’oubliais, même les tortues ont leur espace. Et pour finir la journée en beauté (ou la prolonger jusqu’à très tard. ), découvrez le pool house de 30 m² ultra convivial, avec salon, cuisine d’été, four à pizzas, le tout ouvert sur une grande terrasse avec une vue magnifique sur la piscine, le jardin et la maison. L’endroit idéal pour préparer un barbecue en plein air, et profiter des lueurs dorées du soleil couchant qui dansent à travers les arbres. J’ai un secret à vous confier ! Cette maison n’est pas seulement accueillante, elle donne envie de rester. Elle est conçue pour recevoir, mais aussi pour retenir. Résultat : vos invités prolongeront la soirée… et parfois même leur séjour. C’est une maison coup de cœur, généreuse, lumineuse, ultra fonctionnelle, et prête à accueillir vos futurs projets ! Ici, tout est en place. Il ne manque que vous. Envie de nature, d’espace, de soleil, d’un peu de magie, et même de visiter ? Laissez moi vous la présenter. Je vous invite à cliquer sur la 'visite virtuelle', quand elle est proposée, même si ce n'en est pas une, c'est une vraie vidéo, diffusée en short sur la plateforme you tube. Les bureaux sont fermés ? Pas moi ! Indépendante, je suis dispo 7j / 7, appelez-moi, je vous confierais tout ce que j'ai découvert sur cette jolie propriété. Honoraires d'agence à la charge du vendeur. Information d'affichage énergétique sur ce bien : classe energie c indice 101 et classe climat c indice 20. Les informations sur les risques auxquels ce bien est exposé, y compris l'obligation légale de débroussaillement, sont disponibles sur le site géorisques : http://www.georisques.gouv.fr. la présente annonce immobilière a été rédigée sous la responsabilité éditoriale de mme katia labat mandataire indépendant en immobilier (sans détention de fonds), agent commercial de la sas i@d france immatriculé au rsac de antibes sous le numéro 532103868, titulaire de la carte de démarchage immobilier pour le compte de la société i@d france sas.

Détails de l'annonce

Localisation

Ville
Châteauneuf-Grasse
Pays
FR

Diagnostics / Énergie

Diagnostic DPE
101
Diagnostic GES
20

Chauffage et diagnostics

Diagnostic de performance énergétique (DPE)
a
b
c
d
e
f
g
Indice d'émission de gaz à effet de serre (GES)
a
b
c
d
e
f
g
Rappelez-moi
Nos partenaires