Trouver...

Language: FR

Devise: EUR

Type
Bien immobilier
Tarif
204 000 €
Chambres
2
Salles de bain
0

Vente Appartement 3 pièces

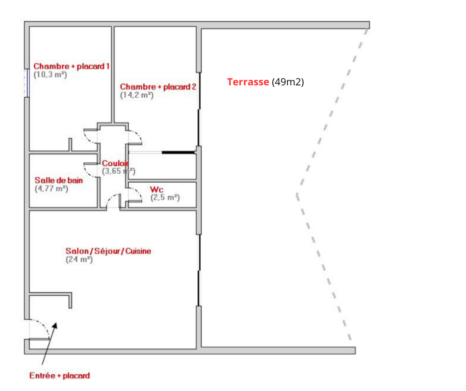
Iad France - Aurélie Nicolas vous propose : *EXCLUSIVITÉ * Appartement T3 – Terrasse de 49 m² à Agroparc Montfavet D’une surface de 61,22 m² cet appartement LUMINEUX avec son exposition sud, offre un bel espace de vie avec cuisine salon et salle à manger de 25 m² ouvert par une grande baie vitrée donnant sur une superbe terrasse de 49 m² avec VUE DÉGAGÉE. L’espace nuit comprend deux chambres avec rangements, la principale avec accès terrasse. Une salle de bain et un WC séparé pouvant accueillir une machine à laver et du rangement supplémentaire. L’agencement a été pensé pour optimiser chaque mètre carré et offrir un confort quotidien appréciable. La résidence SÉCURISÉE avec digicode et interphone propose un cadre paisible et agréable, deux places de parking dont une en sous-sol ainsi qu’une cave complètent ce bien. Contactez-moi dès maintenant pour organiser une visite et découvrir tout le charme de cet appartement rare sur le secteur. La presente annonce immobiliere vise 4 lots situés dans une copropriété de 260 lots au total et ne faisant l'objet d'aucune procédure en cours citée à l'article L. 721-1 du code de la construction et de l'habitation. Montant moyen mensuel de charges déclaré par le vendeur : 88.42€ par mois (soit 1061 € annuel). Honoraires d'agence à la charge du vendeur. Information d'affichage énergétique sur ce bien : classe ENERGIE C indice 159 et classe CLIMAT A indice 4. Les informations sur les risques auxquels ce bien est exposé, y compris l'obligation légale de débroussaillement, sont disponibles sur le site Géorisques : http://www.georisques.gouv.fr. La présente annonce immobilière a été rédigée sous la responsabilité éditoriale de Mme Aurélie Nicolas mandataire indépendant en immobilier (sans détention de fonds), agent commercial de la SAS I@D France immatriculé au RSAC de AVIGNON sous le numéro 941692386, titulaire de la carte de démarchage immobilier pour le compte de la société I@D France SAS.

Détails de l'annonce

Localisation

Ville
Avignon
Pays
FR

Diagnostics / Énergie

Diagnostic DPE
159
Diagnostic GES
4

Surfaces / Pièces / Composition

Nombre d’étages
2

Chauffage et diagnostics

Diagnostic de performance énergétique (DPE)
a
b
c
d
e
f
g
Indice d'émission de gaz à effet de serre (GES)
a
b
c
d
e
f
g
Rappelez-moi
Nos partenaires