Vente Maison/villa 4 pièces
Type
Bien immobilierTarif
299 000 €Chambres
2Salles de bain
0Vente Maison/villa 4 pièces
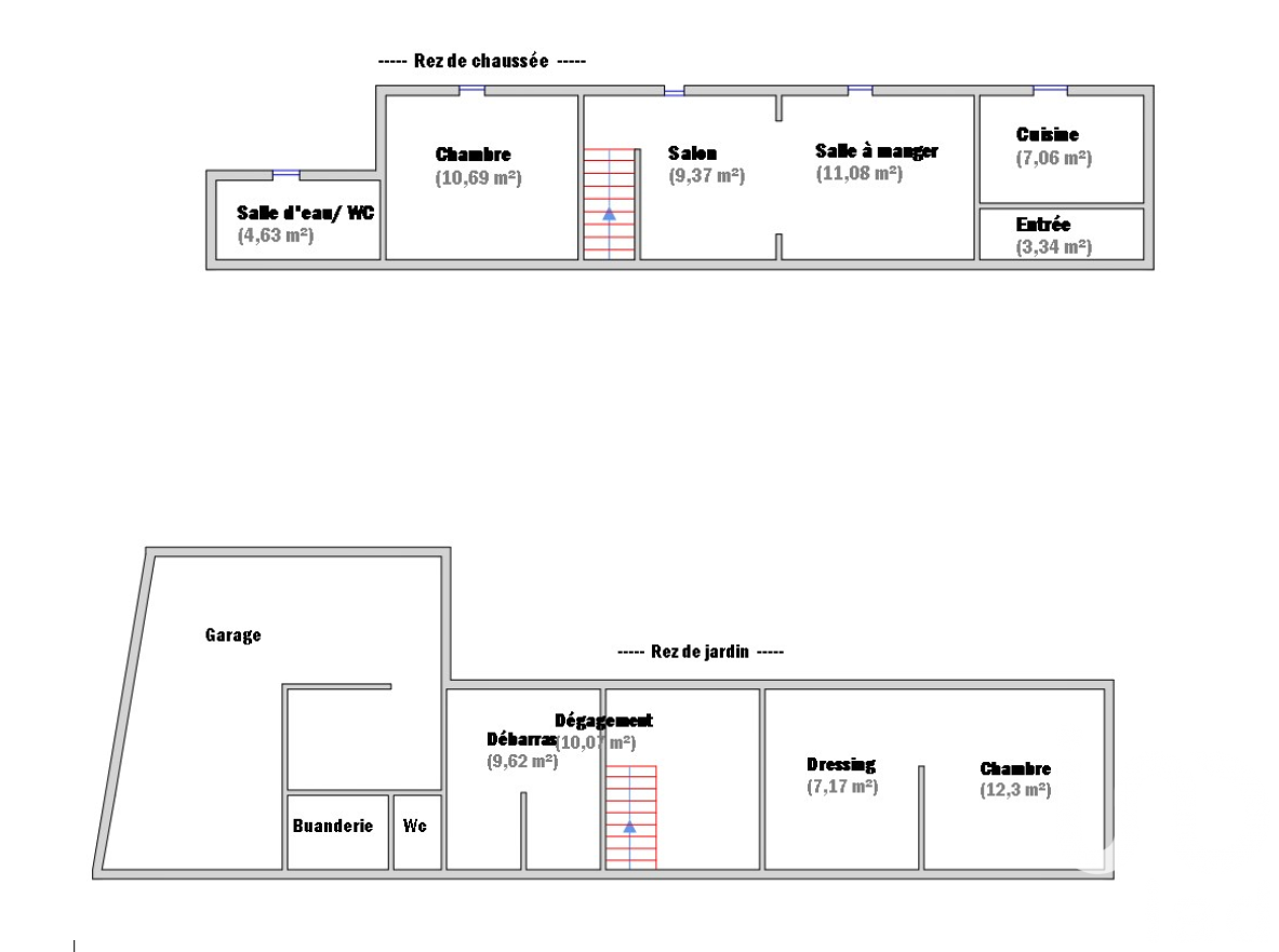
Iad France - Henri Dupin vous propose : Maison avec entrepôt et potentiel pour activité artisanale ou deux logements à Bonneuil-sur-Marne À Bonneuil-sur-Marne, découvrez cette maison de 75 m² offrant un cadre de vie agréable et de nombreuses possibilités d’aménagement. Idéalement située dans un quartier calme et recherché, elle se trouve à proximité immédiate des commerces, écoles, transports, parcs et équipements culturels. Cette maison se compose d’un séjour lumineux, d’une salle à manger conviviale, d’une cuisine et de deux chambres. Elle comprend également une salle d’eau avec WC, un WC séparé, une buanderie, un dressing et un débarras, offrant de nombreux espaces de rangement. Un atout majeur de ce bien réside dans son grand garage-entrepôt d’environ 60 m² avec point d’eau et WC, parfait pour développer une activité artisanale ou de stockage. Cet espace peut également être aménagé selon vos besoins professionnels. Le bien offre en outre un fort potentiel de division : il est possible d’aménager deux logements distincts, l’un au rez-de-chaussée et l’autre au rez-de-jardin, idéal pour un investissement locatif ou une activité mixte habitation et professionnelle. Cette maison représente une opportunité rare à Bonneuil-sur-Marne pour les artisans, entrepreneurs ou investisseurs recherchant un bien polyvalent alliant confort de vie et fonctionnalité professionnelle. Pour plus d’informations ou pour organiser une visite, contactez dès aujourd’hui votre conseiller immobilier. Honoraires d'agence à la charge du vendeur. Information d'affichage énergétique sur ce bien : classe ENERGIE G indice 406 et classe CLIMAT G indice 127. Les informations sur les risques auxquels ce bien est exposé, y compris l'obligation légale de débroussaillement, sont disponibles sur le site Géorisques : http://www.georisques.gouv.fr. La présente annonce immobilière a été rédigée sous la responsabilité éditoriale de M Henri Dupin mandataire indépendant en immobilier (sans détention de fonds), agent commercial de la SAS I@D France immatriculé au RSAC de CRETEIL sous le numéro 418169611, titulaire de la carte de démarchage immobilier pour le compte de la société I@D France SAS.
Détails de l'annonce
Localisation
Ville
Bonneuil-sur-Marne
Pays
FR
Diagnostics / Énergie
Diagnostic DPE
406
Diagnostic GES
127
Surfaces / Pièces / Composition
Nombre d’étages
2
Chauffage et diagnostics
Diagnostic de performance énergétique (DPE)
a
b
c
d
e
f
g
Indice d'émission de gaz à effet de serre (GES)
a
b
c
d
e
f
g
