T93270 SEVRAN - Terrain à bâtir à Sevran (93) petit immeuble, avec permis purgé
Publié le 27 September 2025
Type
Bien immobilierTarif
624 000 €Chambres
0Salles de bain
0T93270 SEVRAN - Terrain à bâtir à Sevran (93) petit immeuble, avec permis purgé
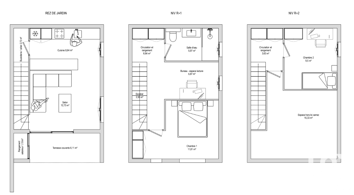
A vendre : 624 000 euros à Sevran (93) : Terrain de 490m² pour bâtir un petit immeuble R+2 de 521m², avec un permis de construire accordé et purgé .
Projet à fort potentiel.
- 7 logements + 12 places de parking en sous-sol et 2 places de parking au RDC dont 1 pour Personne à Mobilité Réduite.
Pour visiter et vous accompagner dans votre projet, contactez William FITOUSSI, au 0749444964 ou, par courriel à w.fitoussi@proprietes-privees.com.
Selon l'article L.561.5 du Code Monétaire et Financier, pour l'organisation de la visite, la présentation d'une pièce d'identité vous sera demandée.
Cette présente annonce a été rédigée sous la responsabilité éditoriale de William FITOUSSI agissant sous le statut d'agent commercial immatriculé au RSAC VERSAILLES 490382041 auprès de SAS PROPRIETES PRIVEES, au capital de 44 920 euros, ZAC LE CHÊNE FERRÉ - 44 ALLÉE DES CINQ CONTINENTS 44120 VERTOU; SIRET 487 624 777 00040, RCS Nantes. Carte Professionnelle Transactions sur immeubles et fonds de commerce (T) et Gestion immobilière (G) N°CPI 4401 2016 000 010 388 délivrée par la CCI Nantes - Saint Nazaire. Compte séquestre n°30932508467 BPA SAINT-SEBASTIEN-SUR-LOIRE (44230). Garantie GALIAN-SMABTP - 89 rue de la Boétie, 75008 Paris - n°28137 J pour 2 000 000 euros pour T et 120 000 euros pour G. Assurance responsabilité civile professionnelle par GALIAN-SMABTP n° de police 28137.J
Mandat réf : 421882. - Le professionnel garantit et sécurise votre projet immobilier.
William FITOUSSI (EI) Agent Commercial - Numéro RSAC : VERSAILLES 490382041 - .
À proximité
Recherche des commodités à proximité...
Détails de l'annonce
Finances / Mandat / Références
Charges
€
Localisation
Ville
Sevran
Pays
France
Surfaces / Pièces / Composition
Surface habitable
m²
Caractéristiques / Équipements
Ascenseur
Digicode
Interphone
Chauffage et diagnostics
Diagnostic de performance énergétique (DPE)
a
b
c
d
e
f
g
Indice d'émission de gaz à effet de serre (GES)
a
b
c
d
e
f
g
