Vente Maison/villa 5 pièces
Type
Bien immobilierTarif
60 000 €Chambres
2Salles de bain
0Vente Maison/villa 5 pièces
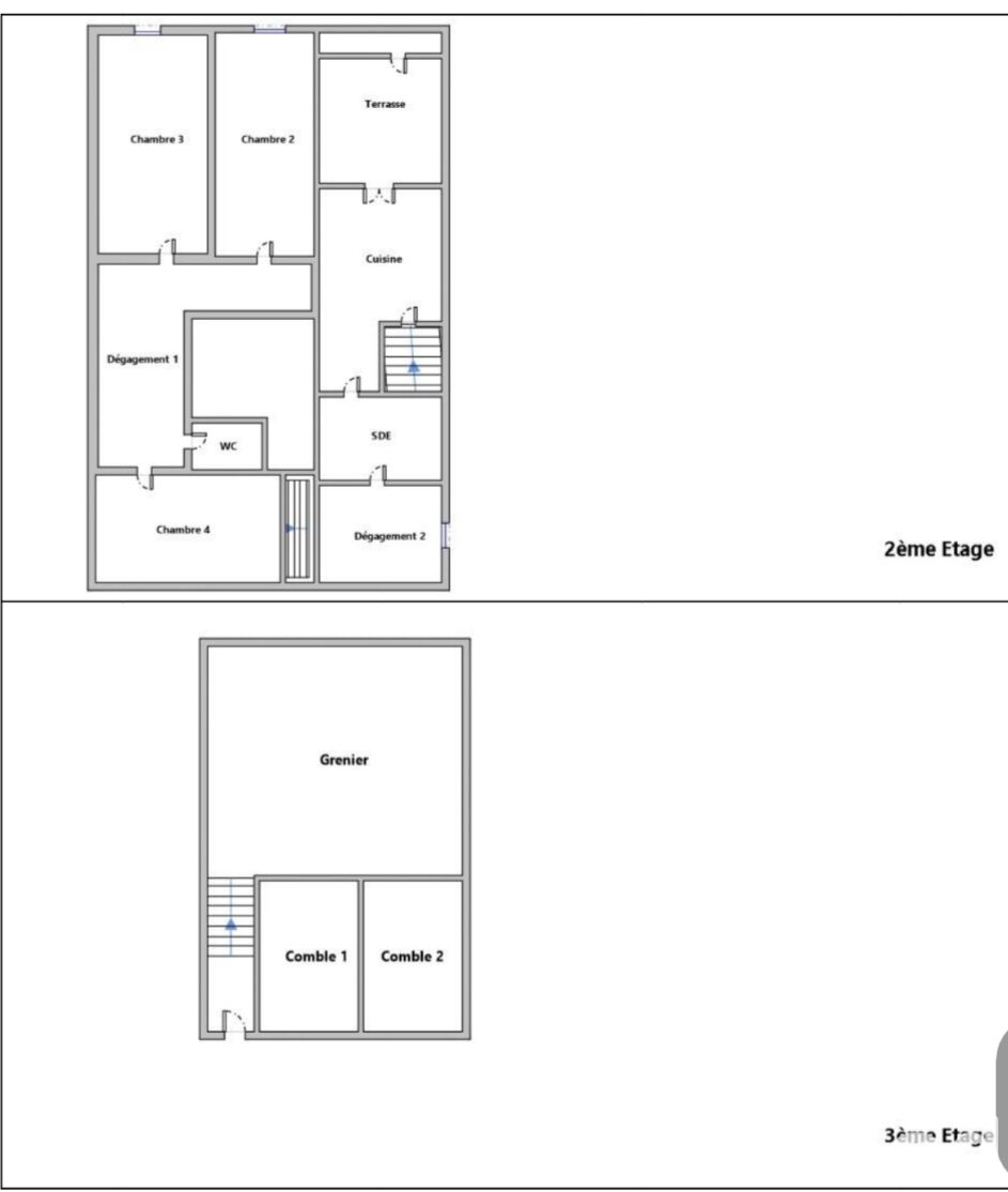
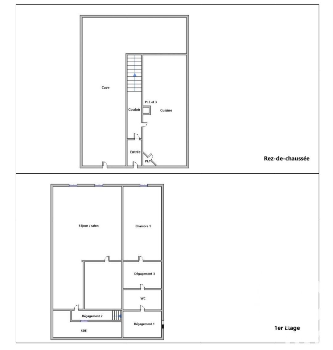
Iad France - Guillaume Michel vous propose : Située dans la paisible commune de Pont-la-Ville, à 6 km de Châteauvillain et 23 km de Chaumont, cette maison individuelle offre un potentiel de rénovation exceptionnel pour créer le bien de vos rêves. Implantée sur un vaste terrain de 1130 m² environ, cette propriété offre un cadre de vie bucolique, idéal pour les amateurs de tranquillité et de nature. Vous trouverez au rez-de-chaussée un espace de vie lumineux comprenant un salon, une salle à manger, une cuisine, une salle de bain et un WC. À l'étage, un bureau (ou chambre d’appoint) ainsi que deux chambres en enfilade. Côté extérieur, une terrasse, plusieurs dépendances et un grand jardin sont à votre disposition pour profiter des beaux jours en toute quiétude. Amoureux de jardinage, cet espace vert vous permettra de laisser libre cours à votre passion. La maison bénéficie d'une orientation idéale, avec des expositions est et ouest. De plus, avec sa vaste grange, vous pouurez stationner aisément votre véhicule, stocker votre matériel ou agrandir la surface habitable de la maison. Laissez libre cours à votre créativité et concevez le lieu de vie qui vous ressemble vraiment. N'attendez plus pour concrétiser votre projet immobilier. Une visite s'impose pour découvrir tout son potentiel ! Honoraires d'agence à la charge du vendeur. Information d'affichage énergétique sur ce bien : classe ENERGIE G indice 537 et classe CLIMAT C indice 16. Les informations sur les risques auxquels ce bien est exposé, y compris l'obligation légale de débroussaillement, sont disponibles sur le site Géorisques : http://www.georisques.gouv.fr. La présente annonce immobilière a été rédigée sous la responsabilité éditoriale de M Guillaume Michel mandataire indépendant en immobilier (sans détention de fonds), agent commercial de la SAS I@D France immatriculé au RSAC de CHAUMONT sous le numéro 792 851 214, titulaire de la carte de démarchage immobilier pour le compte de la société I@D France SAS.
Détails de l'annonce
Localisation
Ville
Pont-la-Ville
Pays
FR
Diagnostics / Énergie
Diagnostic DPE
537
Diagnostic GES
16
Surfaces / Pièces / Composition
Nombre d’étages
2
Chauffage et diagnostics
Diagnostic de performance énergétique (DPE)
a
b
c
d
e
f
g
Indice d'émission de gaz à effet de serre (GES)
a
b
c
d
e
f
g
