Maison - appartement de charme, en hyper centre, au calme, avec terrasse
Publié le 19 January 2026
Type
Bien immobilierTarif
395 000 €Chambres
4Salles de bain
1Maison - appartement de charme, en hyper centre, au calme, avec terrasse
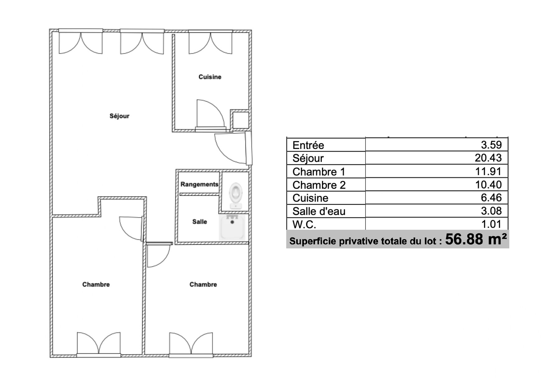
Maison - appartement de type "angevine" datant de 1860, située face au kiosque du jardin du Mail, en fond de cour, donnant sur une terrasse pavée et arborée d'environ 30m2. En rez de chaussée, une grande entrée baignée de lumière vous accueille, desservant une cuisine-salle à manger et un salon. Au 1er étage, 2 grandes chambres avec cheminée, 1 salle de bain et 1 WC indépendant. Au 2ème étage : 2 chambres, 1 salle d'eau et 1 bureau. Une cave et deux cagibis extérieurs complètent l'ensemble.
Les plus de cette maison :
- un havre de calme en plein coeur de ville,
- le charme de l'ancien (carreaux de ciments, 3.10 m de hauteur sous plafonds, parquets, moulures, boiseries, vieilles pierres)
- accès vélo et poussettes de plain pied,
- gros oeuvre récemment refait (cheminées, chéneaux, enduit extérieur, fenêtres, volets, velux).
Prévoir travaux de rafraichissement, d'électricité et de plomberie.
DPE du 01/01/2024. Consommation énergétique E : 241 kWh/m²/an. Emission de gaz à effet de serre E : 53 kgCO2/m²/an
Réf mandat : 4387BONF
Prix FAI : 395 000 euros. Honoraires TTC de 20 000 euros à la charge de l'acquéreur, soit 5.3% TTC du montant hors honoraires.
Pour visiter et vous accompagner dans votre projet, contactez Florence BONIFACE au 0608926377, ou par mail à l'adresse suivante : f.boniface@proprietes-privees.com.
Selon l'article L.561.5 du Code Monétaire et Financier, pour l'organisation de la visite, la présentation d'une pièce d'identité vous sera demandée.
Cette présente annonce a été rédigée sous la responsabilité éditoriale de Florence BONIFACE agissant sous le statut d'agent commercial auprès de SAS NUNKI, CENTRE COMMERCIAL L'HORLOGE - 2 SQUARE DE LA PENTHIERE 49000 ANGERS - Agence immobilière - Concessionnaire PROPRIETES PRIVEES, au capital de 4.000 euros, SIRET 798 297 917 00022, RCS Angers. Carte professionnelle Transactions sur immeubles et fonds de commerce'n° CPI49012018000031356. délivrée par la CCI du Maine et Loire. Notre agence ne détient aucun fonds pour le compte de ses clients. Garantie GALIAN, 89 rue de la Boétie, PARIS-8E-ARRONDISSEMENT - n°46210 D - montant de 120 000 euros. Assurance responsabilité civile professionnelle par GALIAN n° police 46210.D.
(5.33 % honoraires TTC à la charge de l'acquéreur.)
Florence BONIFACE (EI) Agent Commercial - Numéro RSAC : 519276737 RSCA Angers - .
Les informations sur les risques auxquels ce bien est exposé sont disponibles sur le site Géorisques : www. georisques. gouv. fr
Ce mois
Cette annonce est récente
À proximité
Recherche des commodités à proximité...
Détails de l'annonce
Finances / Mandat / Références
Charges
€
Localisation
Ville
Angers
Pays
France
Surfaces / Pièces / Composition
Surface habitable
128 m²
Nombre d’étages
2
Caractéristiques / Équipements
Ascenseur
Digicode
Diagnostics / Énergie
Diagnostic DPE
E
Diagnostic GES
E
Chauffage et diagnostics
Diagnostic de performance énergétique (DPE)
a
b
c
d
e
f
g
Indice d'émission de gaz à effet de serre (GES)
a
b
c
d
e
f
g
