Vente Appartement 4 pièces
Type
Bien immobilierTarif
265 000 €Chambres
3Salles de bain
0Vente Appartement 4 pièces
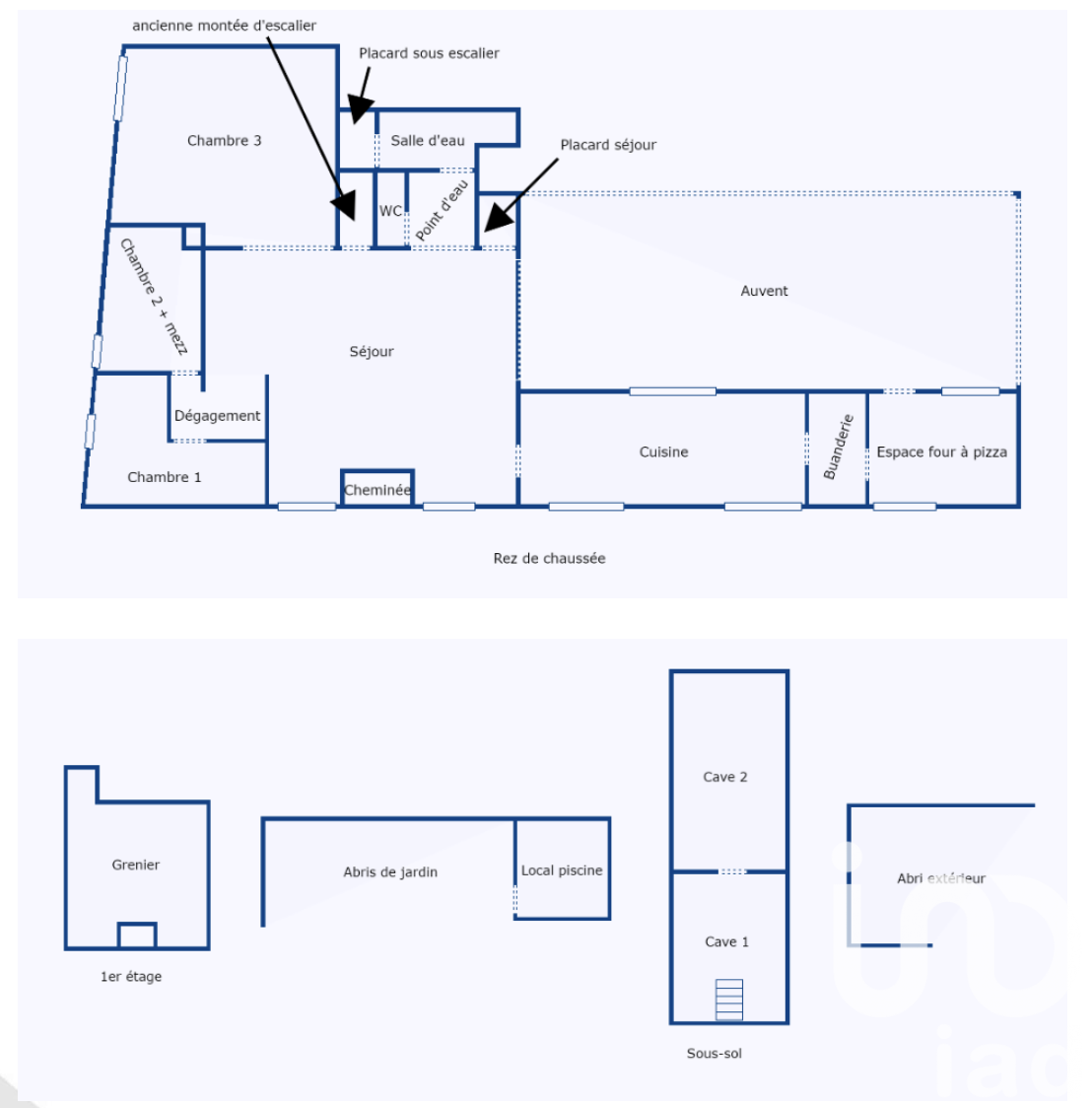
Iad France - Vanessa Marboeuf vous propose : EN EXCLUSIVITÉ- Ancien atelier de quincaillerie réhabilité en loft de caractère avec jardin et piscine – Montagnieu Sur la route de Saint-Victor, une bâtisse singulière raconte encore son histoire d’artisanat. Cet ancien atelier de quincaillerie, transformé en habitation atypique, mêle aujourd’hui charme industriel, confort moderne et potentiel d’évolution, dans une copropriété confidentielle de trois lots. Derrière son allure discrète, ce loft de près de 147 m² s’ouvre sur une pièce de vie centrale de plus de 57 m², aux volumes généreux, baignée de lumière naturelle. Les matériaux choisis, l’agencement fluide et le lien constant entre l’intérieur et l’extérieur donnent à ce lieu une vraie âme. L’espace intérieur est complété par trois chambres, une salle d’eau, un WC séparé, une cuisine indépendante et équipée, ainsi que de nombreux rangements. Un extérieur propice à la convivialité… ou à l’entrepreneuriat Côté jardin, la terrasse couverte de 95 m² permet d’imaginer des grandes tablées, une cuisine d’été ou même un espace semi-professionnel. Elle accueille déjà un four à bois traditionnel, idéal pour les soirées en famille ou les projets gourmands. À quelques mètres, une piscine creusée de 7,80 m x 4 m, à traitement chlore, vous attend pour des moments de fraîcheur dès les beaux jours. Elle est déclarée en mairie. Le terrain de 891 m² est plat, arboré, clôturé, et bénéficie d’un bon ensoleillement. Il reste encore de la place pour aménager un espace potager, une aire de jeux, ou simplement préserver la tranquillité du lieu. Confort moderne et équipements techniques Le bien dispose de plusieurs installations récentes et performantes : Plancher chauffant électrique à résistances pour un confort doux et homogène Cheminée à insert moderne pour réchauffer vos soirées d’hiver Chauffe-eau thermodynamique 300L, économe en énergie Isolation extérieure sur la façade nord, renforçant la performance thermique Système de vidéosurveillance en place, pour plus de sérénité Fibre optique disponible pour le télétravail ou le streaming haute qualité Une localisation bien connectée Située à moins de 10 minutes de la Gare de Cessieu, à proximité des axes autoroutiers A43 / A48, cette maison atypique offre un cadre de vie paisible sans renoncer à l’accessibilité : Bourgoin-Jallieu à 20 min La Tour-du-Pin à 10 min Lyon à 50 min / Aéroport Saint-Exupéry à 34 min Écoles, commerces et services sont facilement accessibles. Un bien à vivre… ou à réinventer Entre loft et maison, entre lieu de vie et lieu d’activité, ce bien s’adresse à ceux qui aiment penser autrement leur habitat. Il conviendra tout autant à une famille recherchant de l’espace qu’à un couple d’entrepreneurs ou d’artisans souhaitant s’installer dans un lieu chargé d’histoire. Curieux ? Inspiré ? Ce lieu vous attend. Envie de le découvrir ? Je vous accompagne pour une visite… mais pas seulement. Je vous aide à vous projeter dans cet espace unique et à sécuriser chaque étape de votre projet avec un accompagnement professionnel, engagé et profondément humain. La presente annonce immobiliere vise 4 lots situés dans une copropriété de 11 lots au total et ne faisant l'objet d'aucune procédure en cours citée à l'article L. 721-1 du code de la construction et de l'habitation. Montant moyen mensuel de charges déclaré par le vendeur : 50€ par mois (soit 600 € annuel). Honoraires d'agence à la charge du vendeur. Information d'affichage énergétique sur ce bien : classe ENERGIE D indice 199 et classe CLIMAT B indice 6. Les informations sur les risques auxquels ce bien est exposé, y compris l'obligation légale de débroussaillement, sont disponibles sur le site Géorisques : http://www.georisques.gouv.fr. La présente annonce immobilière a été rédigée sous la responsabilité éditoriale de Mme Vanessa Marboeuf mandataire indépendant en immobilier (sans détention de fonds), agent commercial de la SAS I@D France immatriculé au RSAC de VIENNE sous le numéro 752122523, titulaire de la carte de démarchage immobilier pour le compte de la société I@D France SAS.
Détails de l'annonce
Localisation
Ville
Montagnieu
Pays
FR
Diagnostics / Énergie
Diagnostic DPE
199
Diagnostic GES
6
Chauffage et diagnostics
Diagnostic de performance énergétique (DPE)
a
b
c
d
e
f
g
Indice d'émission de gaz à effet de serre (GES)
a
b
c
d
e
f
g
