Vente Maison/villa 5 pièces
Type
Bien immobilierTarif
116 000 €Chambres
5Salles de bain
0Vente Maison/villa 5 pièces
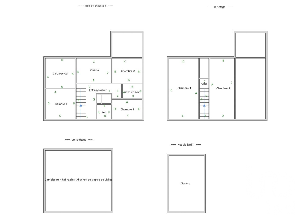
Iad France - Pierre-Yves Burban vous propose : NOUVEAUTE - EXCMUSIVITE iad - REDON - MAISON - 5 CHAMBRES - GARAGE - JARDIN Découvrez cette maison à rénover de 75 m² Située dans le quartier du châtelet à Redon, elle est composée au rez-de-chaussée d'une entrée avec placards, d'un salon de 11 m², d'une cuisine de 10 m², de trois chambres de 7,9 et 10 m², d'une salle de bain et d'un WC séparé. À l'étage un palier dessert deux chambres de 8 et 10 m² environ. Un garage non attenant de 19 m² et un atelier de 19 m² viennent compléter ce bien. Le tout sur une parcelle de 1036 m². Honoraires d'agence à la charge du vendeur. Bien non soumis au DPE. Les informations sur les risques auxquels ce bien est exposé, y compris l'obligation légale de débroussaillement, sont disponibles sur le site Géorisques : http://www.georisques.gouv.fr. La présente annonce immobilière a été rédigée sous la responsabilité éditoriale de M Pierre-Yves Burban mandataire indépendant en immobilier (sans détention de fonds), agent commercial de la SAS I@D France immatriculé au RSAC de SAINT NAZAIRE sous le numéro 952112514, titulaire de la carte de démarchage immobilier pour le compte de la société I@D France SAS.
Détails de l'annonce
Localisation
Ville
Redon
Pays
FR
Chauffage et diagnostics
Diagnostic de performance énergétique (DPE)
a
b
c
d
e
f
g
Indice d'émission de gaz à effet de serre (GES)
a
b
c
d
e
f
g
